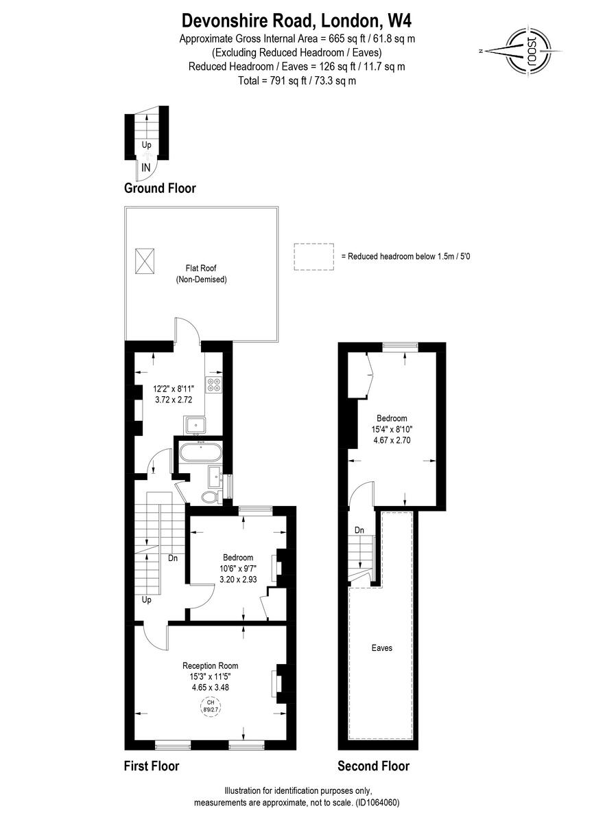
Devonshire Road, London, W4
By Core London Property Advisors
£ 575,000
Reviews
2 out of 5 stars
Core London Property Advisors says ..
A well presented two bedroom split level maisonette with no onward chain. With excellent proportions throughout, this property is situated on the desirable Devonshire Road, known for its Michelin star restaurant, cafes and boutique shops
Property Oracle says ..
This two-bedroom maisonette on Devonshire Road, Turnham Green, presents a mixed bag. Its location in a desirable area of West London with excellent amenities and transport links is a significant plus. The proximity to good schools further enhances its family-friendly appeal. However, the property’s current condition requires attention. The interior looks dated, with the kitchen and bathroom appearing in particular need of modernisation. The absence of a garden is a considerable drawback, especially given the property’s price point. While the £575,000 list price appears generally in line with the surrounding market, a potential buyer should factor in the costs of renovation and the limited outdoor space. A thorough survey and a comprehensive comparison with other recently sold similar properties in the area are recommended to determine the true value of the property and to assess if it represents good value for money.
Therefore, we give this property 5 / 10. *Disclaimer: This is our option and does constitute a recommendation or financial advice. Do your own research. *
- Price
- 7
- Condition
- 5
- Location
- 8
- Land
- 1
- Bedrooms
- 2
- Bathrooms
- 1
- Sqft (est)
- 788.99
The heatmap indicates the level of crime in the area. The color of the heatmap indicates the crime severity and recency.
Metrics Year-on-Year
- Average area value
- 796,000.00 £Decreased by 10.17 %
- Est sale value
- 993,338.41 £Increased by 44.71 %
- Average area rental value
- 2,086.00 £/moDecreased by 12.02 %
- Est letting value
- 2,366.97 £/moIncreased by 50.00 %
- Est rental Yield
- 3.14 %Decreased by 2.18 %
- Crime Rate
- 18.00 %Unchanged by 0.00 %
Agent Activity
Core London Property Advisors created the listing.
Nearby Schools
| Name | Type | Ofsted | Distance |
|---|---|---|---|
| The William Hogarth Primary School | Community School | Good | 0.37 KM |
| Chiswick Children'S Centre | Children's Centre Linked Site | 0.42 KM | |
| St Mary'S Catholic Primary School ,Chiswick | Voluntary Aided School | Good | 0.45 KM |
| Chiswick And Bedford Park Preparatory School | Other Independent School | 0.57 KM | |
| Artsed Day School And Sixth Form | Other Independent School | 0.60 KM |
Images
Nearby Streets
| Name | Average Price | Average Sqft | Distance |
|---|---|---|---|
| Ingress Street | £ 0 | 0 | 0.00 KM |
| Elliott Road | £ 0 | 0 | 0.00 KM |
| Alkerden Road | £ 0 | 0 | 0.00 KM |
| Turnham Green Terrace | £ 0 | 0 | 0.00 KM |
| Wood Street | £ 0 | 0 | 0.00 KM |
Nearby Transport
| Name | NLC | TLC | Distance |
|---|---|---|---|
| Chiswick | 5583 | CHK | 1.78 KM |
| South Acton | 1452 | SAT | 1.84 KM |
| Acton Central | 1404 | ACC | 2.07 KM |
| Gunnersbury | 5588 | GUN | 2.17 KM |
| Barnes Bridge | 5580 | BNI | 2.21 KM |
Nearby Listings
| Address | Price | Type | Score | Distance |
|---|---|---|---|---|
| Devonshire Road, London, W4 | £ 575,000 | BUY | 5 / 10 | 0.00 KM |
| Devonshire Road, Turnham Green, Chiswick, W4 | £ 700,000 | BUY | 6 / 10 | 0.02 KM |
| Devonshire Road, Turnham Green, Chiswick, W4 | £ 660,000 | BUY | 6 / 10 | 0.02 KM |
| Annandale Road, London, W4 | £ 1,599,000 | BUY | Unknown | 0.04 KM |
| Devonshire Road, Chiswick, London, W4 | £ 1,450,000 | BUY | Unknown | 0.05 KM |
Nearby Properties
| Address | Price | Distance |
|---|---|---|
| 27 Annandale Road | £ 385,000 | 0.02 KM |
| 11 Annandale Road | £ 953,000 | 0.02 KM |
| 1 Annandale Road | £ 127,000 | 0.02 KM |
| 3 Annandale Road | £ 325,000 | 0.02 KM |
| 41b Annandale Road | £ 350,000 | 0.02 KM |