Haglane Copse, Pennington, Lymington
By St Quintin Estate Agents
£ 575,000
Reviews
4 out of 5 stars
St Quintin Estate Agents says ..
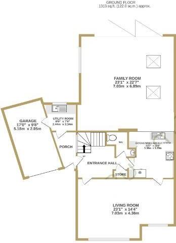
In the tranquil cul-de-sac of Haglane Copse, Pennington, this beautifully refurbished four-bedroom family home offers an impressive living space of approximately 2000 square feet. The property is presented with no forward chain, making it an ideal choice for those looking to move in without delay...
Property Oracle says ..
The property is located in Pennington, New Forest, which is a desirable area known for its proximity to the coast and countryside. The nearby schools are rated as good or better, and there are several train stations within a reasonable distance. The property itself appears to be in good condition, having undergone some modernisation. It benefits from a good-sized garden. While the average price per square foot in the area is £451, this property is listed at a slightly higher price per square foot. However, given the recent renovations and the desirable location, the list price may be justified. More information on the specifics of the renovations would help to solidify this assessment.
Therefore, we give this property 8 / 10. *Disclaimer: This is our option and does constitute a recommendation or financial advice. Do your own research. *
- Price
- 7
- Condition
- 9
- Location
- 9
- Land
- 7
- Bedrooms
- 4
- Bathrooms
- 1
- Sqft (est)
- 582.00
- Lot (est)
- 702.00
The heatmap indicates the level of crime in the area. The color of the heatmap indicates the crime severity and recency.
Metrics Year-on-Year
- Average area value
- 517,475.00 £Decreased by 7.77 %
- Est sale value
- 313,698.00 £Increased by 11.59 %
- Average area rental value
- 3,500.00 £/moIncreased by 193.62 %
- Est letting value
- 1,746.00 £/moIncreased by 200.00 %
- Est rental Yield
- 8.12 %Increased by 218.43 %
- Crime Rate
- 8.00 %Unchanged by 0.00 %
Agent Activity
St Quintin Estate Agents created the listing.
Nearby Schools
| Name | Type | Ofsted | Distance |
|---|---|---|---|
| Pennington Church Of England Junior School | Voluntary Controlled School | Requires improvement | 0.67 KM |
| All Seasons And Seedlings Children'S Centre | Children's Centre | 0.67 KM | |
| Pennington Infant School | Community School | Good | 0.67 KM |
| Priestlands School | Academy Converter | Good | 0.95 KM |
| Our Lady And St Joseph Catholic Primary School | Voluntary Aided School | Good | 1.41 KM |
Images
Nearby Streets
| Name | Average Price | Average Sqft | Distance |
|---|---|---|---|
| Meadow Road | £ 315,000 | 0 | 0.00 KM |
| Priestlands Walk | £ 700,000 | 0 | 0.00 KM |
| West Close | £ 0 | 0 | 0.00 KM |
| Elm Avenue | £ 0 | 0 | 0.00 KM |
| Bays Court | £ 0 | 0 | 0.00 KM |
Nearby Transport
| Name | NLC | TLC | Distance |
|---|---|---|---|
| Lymington Town | 5887 | LYT | 2.98 KM |
| Lymington Pier | 5892 | LYP | 3.71 KM |
| Sway | 5884 | SWY | 6.49 KM |
| Brockenhurst | 5886 | BCU | 7.44 KM |
Nearby Listings
| Address | Price | Type | Score | Distance |
|---|---|---|---|---|
| Haglane Copse, Pennington, Lymington | £ 575,000 | BUY | 8 / 10 | 0.00 KM |
| Haglane Copse, Pennington, Lymington, SO41 | £ 495,000 | BUY | Unknown | 0.10 KM |
| Little Dene Copse, Pennington, Lymington, Hampshire, SO41 | £ 325,000 | BUY | 5 / 10 | 0.10 KM |
| Little Dene Copse, Pennington, Lymington, Hampshire, SO41 | £ 350,000 | BUY | 6 / 10 | 0.14 KM |
| Little Dene Copse, Pennington, Lymington, Hampshire, SO41 | £ 339,000 | BUY | 6 / 10 | 0.15 KM |
Nearby Properties
| Address | Price | Distance |
|---|---|---|
| 37 Haglane Copse | £ 420,000 | 0.04 KM |
| 34 Haglane Copse | £ 355,000 | 0.04 KM |
| 29 Haglane Copse | £ 419,950 | 0.04 KM |
| 30 Haglane Copse | £ 366,000 | 0.04 KM |
| 22 Haglane Copse | £ 735,000 | 0.04 KM |