HE
Rufford Road, Milnsbridge, Huddersfield, HD3
By Henry James
£ 175,000
Reviews
3 out of 5 stars
Henry James says ..
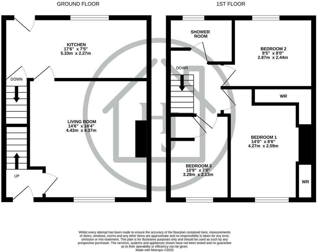
** GUIDE PRICE £175000-£180,000 ** Henry James are proud to offer this three bedroom mid terraced family home which is offered for sale in exceptional decorative order with outstanding accommodation!!!! There is a good size garden to the rear and its well situated. The propert...
Property Oracle says ..
Therefore, we give this property 7 / 10. *Disclaimer: This is our option and does constitute a recommendation or financial advice. Do your own research. *
- Price
- 6
- Condition
- 8
- Location
- 7
- Land
- 7
- Bedrooms
- 3
- Bathrooms
- 1
- Sqft (est)
- 608.45
The heatmap indicates the level of crime in the area. The color of the heatmap indicates the crime severity and recency.
Metrics Year-on-Year
- Average area value
- 217,722.00 £Decreased by 2.66 %
- Est sale value
- 150,895.60 £Increased by 6.90 %
- Average area rental value
- 802.00 £/moIncreased by 8.82 %
- Est letting value
- 0.00 £/mo
- Est rental Yield
- 4.42 %Increased by 11.90 %
- Crime Rate
- 13.00 %Unchanged by 0.00 %
from 223,681.00 £
from 141,160.40 £
from 737.00 £/mo
from 0.00 £/mo
from 3.95 %
from 13.00 %
Agent Activity
Henry James marked this listing as sold.
Henry James created the listing.
Nearby Schools
| Name | Type | Ofsted | Distance |
|---|---|---|---|
| Crow Lane Primary And Foundation Stage School | Foundation School | Requires improvement | 0.71 KM |
| Golcar, Cowlersley And Milnsbridge Children'S Centre | Children's Centre | 0.76 KM | |
| Woodside Green, A Share Primary Academy | Academy Sponsor Led | Requires improvement | 1.00 KM |
| Salendine Nook High School Academy | Academy Converter | Good | 1.38 KM |
| Huddersfield New College | Further Education | Outstanding | 1.41 KM |
Images
Nearby Streets
| Name | Average Price | Average Sqft | Distance |
|---|---|---|---|
| Tintern Avenue | £ 0 | 0 | 0.00 KM |
| Laburnum Grove | £ 0 | 0 | 0.00 KM |
| Mill Rise | £ 236,650 | 0 | 0.00 KM |
| Windsor Road | £ 0 | 0 | 0.00 KM |
| Beryl Street | £ 450,000 | 0 | 0.00 KM |
Nearby Transport
| Name | NLC | TLC | Distance |
|---|---|---|---|
| Lockwood | 8443 | LCK | 4.03 KM |
| Berry Brow | 8431 | BBW | 5.29 KM |
| Slaithwaite | 8450 | SWT | 5.35 KM |
| Huddersfield | 8437 | HUD | 5.79 KM |
| Honley | 8436 | HOY | 7.18 KM |
Nearby Listings
| Address | Price | Type | Score | Distance |
|---|---|---|---|---|
| Rufford Road, Milnsbridge, Huddersfield, HD3 | £ 175,000 | BUY | 7 / 10 | 0.00 KM |
| Rufford Road, Huddersfield, West Yorkshire, HD3 | £ 150,000 | BUY | 6 / 10 | 0.00 KM |
| Rufford Road, Huddersfield | £ 150,000 | BUY | 6 / 10 | 0.00 KM |
| Botham Hall Road, Huddersfield, HD3 | £ 220,000 | BUY | Unknown | 0.06 KM |
| Rufford Road, Huddersfield | £ 140,000 | BUY | 6 / 10 | 0.07 KM |
Nearby Properties
| Address | Price | Distance |
|---|---|---|
| 46 Rufford Road | £ 165,000 | 0.00 KM |
| 22 Rufford Road | £ 115,000 | 0.00 KM |
| 42 Rufford Road | £ 137,500 | 0.00 KM |
| 48 Rufford Road | £ 124,000 | 0.00 KM |
| 32 Rufford Road | £ 77,000 | 0.01 KM |