Appleby Grove, Bromborough
Brennan Ayre O'Neill logo

Appleby Grove, Bromborough

By Brennan Ayre O'Neill

£ 625,000

Reviews

3 out of 5 stars

Brennan Ayre O'Neill says ..

We introduce you to the unique, modernised family home which is situated in the highly sought-after Appleby Grove, just off Plymyard Avenue in Bromborough. The current owners have thoughtfully improved and extended their home over the years, creating a warm and inviting family atmosphere for over...

Property Oracle says ..

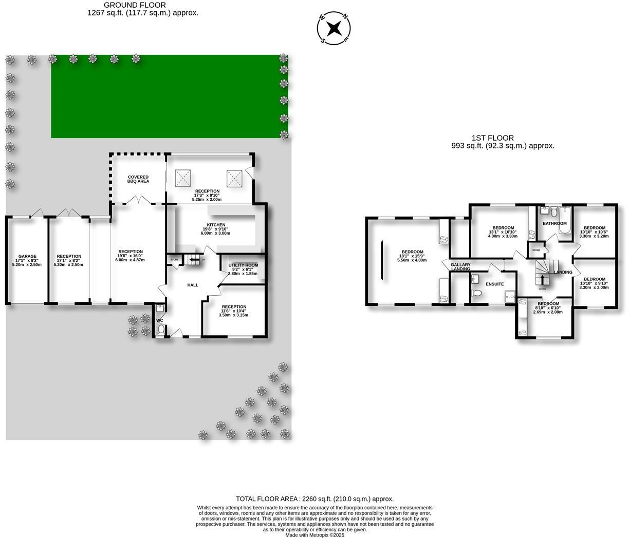
Appleby Grove is located in the Bromborough area of Wirral, Merseyside. The property is a detached house with five bedrooms and two bathrooms, offering 1,856.80 sqft of living space and a 2,260 sqft plot. The area benefits from relatively close proximity to several Merseyrail stations, including Bromborough, Bromborough Rake, and Eastham Rake, providing convenient access to public transportation. Good and Requires improvement Ofsted-rated primary and secondary schools are also within a reasonable distance.

Based on the provided images, the property appears to be in excellent condition. It has undergone recent modernisation and extension, resulting in a contemporary and well-maintained interior. The kitchen and conservatory are particularly noteworthy, showcasing high-quality fixtures and finishes. The garden is also well-maintained, with artificial turf and landscaping features.

The list price of £625,000 is significantly higher than the average house price in the area (£249,309). However, considering the property’s size (1,856.80 sqft), superior condition, and the inclusion of a substantial garden, the price may be justifiable. The average price per sqft in the area is £258, while this property’s price per sqft is approximately £337. This is higher than average, but given the property’s condition and amenities, it may still represent good value for money. Further analysis of comparable properties in the immediate vicinity would be beneficial to fully assess the list price.

The property includes a garage and a well-maintained garden.

Therefore, we give this property 7 / 10. *Disclaimer: This is our option and does constitute a recommendation or financial advice. Do your own research. *

Price
6
Condition
9
Location
7
Land
8
Bedrooms
5
Bathrooms
2
Sqft (est)
1,856.80
Lot (est)
2,260.00

The heatmap indicates the level of crime in the area. The color of the heatmap indicates the crime severity and recency.

Metrics Year-on-Year

Average area value
264,090.00 £
Increased by 9.78 %
from 240,568.00 £
Est sale value
497,622.40 £
Increased by 12.61 %
from 441,918.40 £
Average area rental value
795.00 £/mo
Decreased by 30.93 %
from 1,151.00 £/mo
Est letting value
0.00 £/mo
Decreased by 100.00 %
from 1,856.80 £/mo
Est rental Yield
3.61 %
Decreased by 37.11 %
from 5.74 %
Crime Rate
3.00 %
Unchanged by 0.00 %
from 3.00 %

Agent Activity

  • Brennan Ayre O'Neill created the listing.

Nearby Schools

NameTypeOfstedDistance
Brookhurst Primary SchoolCommunity SchoolGood0.41 KM
Raeburn Primary SchoolCommunity SchoolGood0.43 KM
South Wirral High SchoolFoundation SchoolRequires improvement1.10 KM
Mendell Primary SchoolCommunity SchoolRequires improvement1.23 KM
Heygarth Primary SchoolCommunity SchoolGood1.31 KM

Images

8 Appleby (62).jpg DSC_0061.jpg DSC_0030.jpg DSC_0014.jpg DSC_0005.jpg DSC_0068.jpg DSC_0045.jpg DSC_0050.jpg DSC_0077.jpg DSC_0072.jpg DSC_0069.jpg DSC_0081.jpg DSC_0087.jpg DSC_0099.jpg 8 Appleby (60).jpg DSC_0006.jpg DSC_0073.jpg DSC_0095.jpg DSC_0094.jpg DSC_0096.jpg DSC_0097.jpg DSC_0093.jpg DSC_0065.jpg DSC_0064.jpg DSC_0051.jpg DSC_0058.jpg DSC_0054.jpg DSC_0018.jpg DSC_0071.jpg DSC_0088.jpg DSC_0089.jpg DSC_0091.jpg DSC_0074.jpg DSC_0002-2.jpg DSC_0002.jpg DSC_0004.jpg DSC_0003.jpg DSC_0002.jpg DSC_0006.jpg DSC_0005.jpg DSC_0001.jpg DSC_0007.jpg DSC_0008.jpg

Nearby Streets

NameAverage PriceAverage SqftDistance
Rose Croft £ 000.00 KM
West House Close £ 379,95000.00 KM
Birkdale Avenue £ 000.00 KM
Briscoe Grove £ 425,00000.00 KM
Freestone Drive £ 260,00000.00 KM

Nearby Transport

NameNLCTLCDistance
Bromborough2190BOM0.39 KM
Bromborough Rake2191BMR1.32 KM
Eastham Rake2128ERA1.33 KM
Spital2199SPI2.54 KM
Hooton2193HOO2.57 KM

Nearby Listings

AddressPriceTypeScoreDistance
Appleby Grove, Bromborough £ 625,000BUY7 / 100.00 KM
Alistair Drive, Wirral, Merseyside, CH63 £ 350,000BUY6 / 100.15 KM
Rosecroft, Wirral, Merseyside, CH62 £ 425,000BUY7 / 100.18 KM
Alistair Drive, Bromborough, Wirral £ 350,000BUY6 / 100.20 KM
Limehurst Grove, Bromborough £ 450,000BUY7 / 100.22 KM

Nearby Properties

AddressPriceDistance
2 Appleby Grove £ 197,5000.05 KM
5 Appleby Grove £ 324,0000.05 KM
4 Appleby Grove £ 320,0000.05 KM
22 Brunsborough Close £ 300,0000.10 KM
28 Plymyard Avenue £ 303,0000.14 KM