Freder says ..
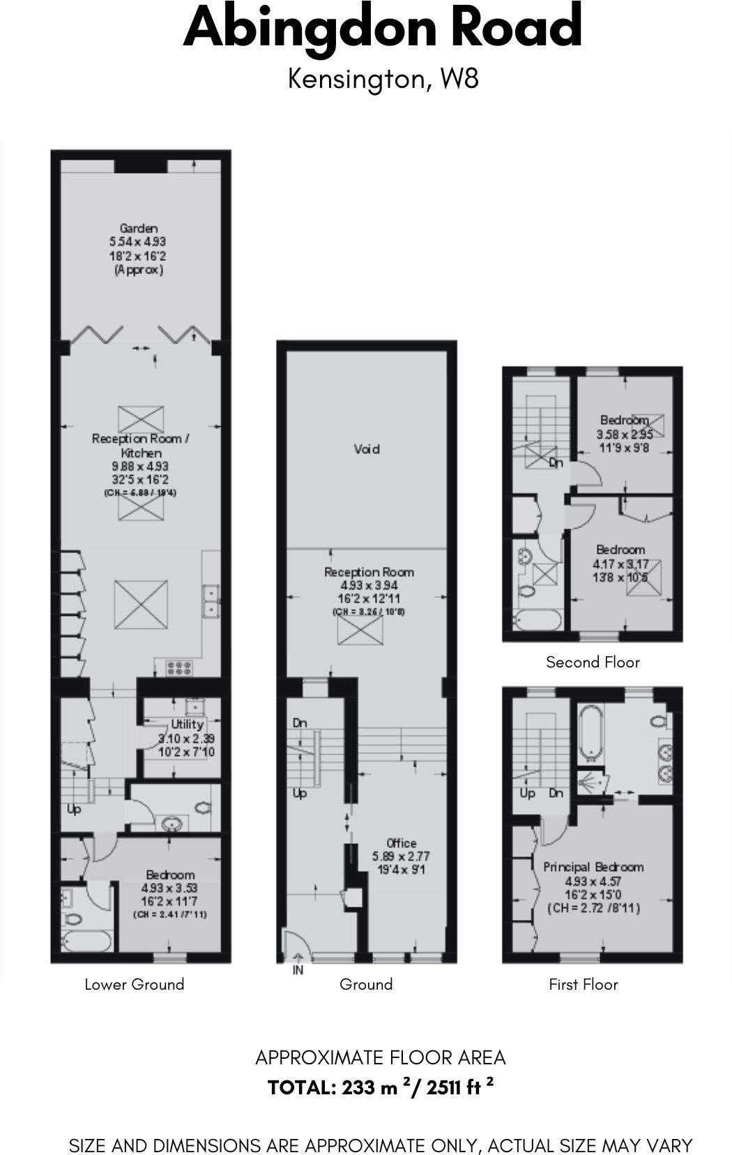
A beautifully extended Victorian house on Abingdon Road, offering 4 bedrooms, 3 bathrooms, 3 receptions, a spectacular vaulted living space, private garden and courtyard. Ideally located near Kensington High Street.
Property Oracle says ..
The property is a terraced house located on Abingdon Road in Kensington and Chelsea. It has 4 bedrooms and 3 bathrooms. The property is 2,507.99 sqft. The property is listed for £3,400,000. The property is located in a desirable area of London, close to local shops and amenities. The area has good schools and transport links. Based on the image provided, the property appears to be in need of some renovation.
Therefore, we give this property 5 / 10. *Disclaimer: This is our option and does constitute a recommendation or financial advice. Do your own research. *
- Price
- 6
- Condition
- 5
- Location
- 8
- Land
- 3
- Bedrooms
- 4
- Bathrooms
- 3
- Sqft (est)
- 2,507.99
The heatmap indicates the level of crime in the area. The color of the heatmap indicates the crime severity and recency.
Metrics Year-on-Year
- Average area value
- 1,716,071.00 £Decreased by 29.21 %
- Est sale value
- 4,501,842.05 £Decreased by 1.64 %
- Average area rental value
- 3,757.00 £/moIncreased by 47.28 %
- Est letting value
- 7,523.97 £/moIncreased by 200.00 %
- Est rental Yield
- 2.63 %Increased by 108.73 %
- Crime Rate
- 8.00 %Unchanged by 0.00 %
Agent Activity
Freder created the listing.
Nearby Schools
| Name | Type | Ofsted | Distance |
|---|---|---|---|
| St Barnabas And St Philip'S Cofe Primary School | Voluntary Aided School | Outstanding | 0.21 KM |
| Snowflake School | Other Independent Special School | Outstanding | 0.62 KM |
| St Mary Abbots Cofe Primary School | Voluntary Aided School | Good | 0.65 KM |
| Holland Park School | Academy Converter | Outstanding | 0.77 KM |
| Hawkesdown House School | Other Independent School | 0.92 KM |
Images
Nearby Streets
| Name | Average Price | Average Sqft | Distance |
|---|---|---|---|
| Melbury Court | £ 5,500,000 | 0 | 0.00 KM |
| Kensington High Street | £ 775,000 | 0 | 0.00 KM |
| Avonmore Road | £ 4,000,000 | 0 | 0.00 KM |
| Napier Close | £ 0 | 0 | 0.00 KM |
| Holland Road | £ 0 | 0 | 0.00 KM |
Nearby Transport
| Name | NLC | TLC | Distance |
|---|---|---|---|
| West Brompton | 8875 | WBP | 1.34 KM |
| Kensington (Olympia) | 3092 | KPA | 1.46 KM |
| Shepherd'S Bush | 9587 | SPB | 2.37 KM |
| Paddington | 3087 | PAD | 3.00 KM |
| Imperial Wharf | 9586 | IMW | 3.11 KM |
Nearby Listings
| Address | Price | Type | Score | Distance |
|---|---|---|---|---|
| Abingdon Road, London | £ 3,400,000 | BUY | 5 / 10 | 0.00 KM |
| Abingdon Road, London, W8 | £ 3,400,000 | BUY | 7 / 10 | 0.00 KM |
| Abingdon Road, London, W8 | £ 1,425,000 | BUY | 6 / 10 | 0.01 KM |
| Abingdon Road, LONDON, W8 | £ 1,595,000 | BUY | 6 / 10 | 0.05 KM |
| Ilchester Mansions, Abingdon Road, Kensington, London, W8 | £ 900,000 | BUY | 5 / 10 | 0.05 KM |
Nearby Properties
| Address | Price | Distance |
|---|---|---|
| 29 Abingdon Road | £ 5,500,000 | 0.06 KM |
| 33 Abingdon Road | £ 1,850,000 | 0.07 KM |
| 50 Wynnstay Gardens | £ 3,000,000 | 0.07 KM |
| 37 Wynnstay Gardens | £ 3,750,000 | 0.07 KM |
| 43 Wynnstay Gardens | £ 3,500,000 | 0.07 KM |