Winkworth says ..
A stunning four bedroom family home with a sunny private garden at the rear.
Property Oracle says ..
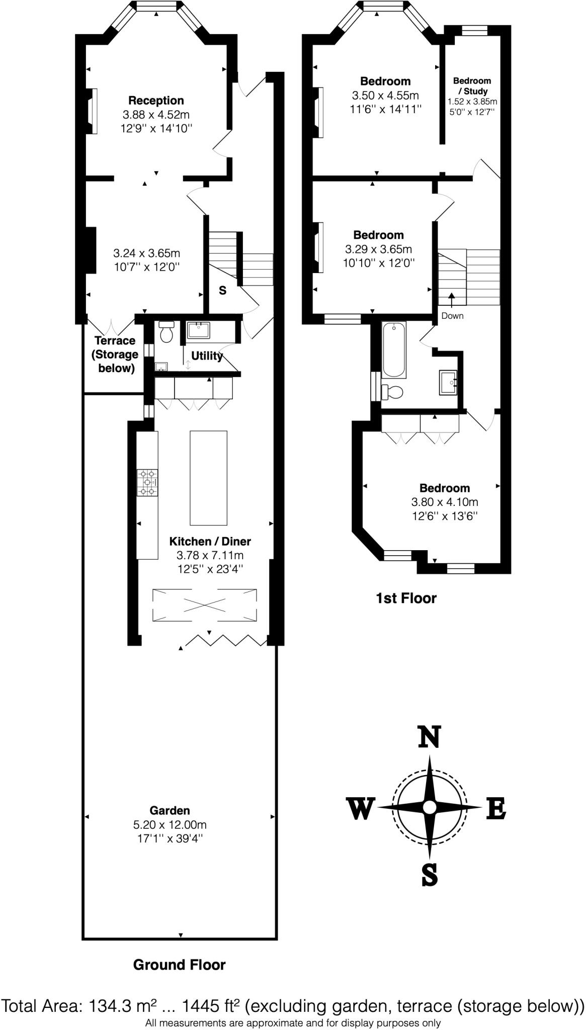
This four-bedroom terraced house in Crownhill Road, Harlesden, is presented in good condition based on available images. The property boasts a modern kitchen extension that leads to a substantial private garden with a deck, which would be an especially attractive feature given the limited outdoor space typical of London properties. The location in Harlesden offers relatively easy access to transportation via Willesden Junction and nearby schools receive good Ofsted ratings, creating family-friendly appeal. While Harlesden is a diverse area with pockets of varying desirability, the house’s presentation suggests it would attract a good range of potential buyers. A more comprehensive analysis would require a full structural survey and a more detailed comparison with recently sold comparable properties in the immediate vicinity to more accurately assess its value in relation to the asking price. The lack of plot size data for the subject property, and many others, makes detailed square foot price analysis unreliable. The images also don’t fully showcase the property’s overall condition, though the parts shown appear to be well-maintained and recently updated.
Therefore, we give this property 7 / 10. *Disclaimer: This is our option and does constitute a recommendation or financial advice. Do your own research. *
- Price
- 7
- Condition
- 8
- Location
- 7
- Land
- 7
- Bedrooms
- 4
- Bathrooms
- 1
- Sqft (est)
- 1,445.00
The heatmap indicates the level of crime in the area. The color of the heatmap indicates the crime severity and recency.
Metrics Year-on-Year
- Average area value
- 485,429.00 £Decreased by 0.78 %
- Est sale value
- 1,067,855.00 £Increased by 17.68 %
- Average area rental value
- 1,687.00 £/moDecreased by 16.49 %
- Est letting value
- 2,890.00 £/moUnchanged by 0.00 %
- Est rental Yield
- 4.17 %Decreased by 15.76 %
- Crime Rate
- 7.00 %Unchanged by 0.00 %
Agent Activity
Winkworth created the listing.
Nearby Schools
| Name | Type | Ofsted | Distance |
|---|---|---|---|
| Maple Walk School | Other Independent School | 0.05 KM | |
| Saint Claudine'S Catholic School For Girls | Academy Converter | Good | 0.10 KM |
| John Keble Cofe Primary School | Voluntary Aided School | Good | 0.16 KM |
| Newfield Primary School | Community School | Good | 0.40 KM |
| Roundwood School And Community Centre | Free Schools Alternative Provision | 0.59 KM |
Images
Nearby Streets
| Name | Average Price | Average Sqft | Distance |
|---|---|---|---|
| Harlesden Plaza | £ 3,350,000 | 0 | 0.00 KM |
| Rucklidge Passage | £ 0 | 0 | 0.00 KM |
| The Drive | £ 0 | 0 | 0.00 KM |
| Fawcett Road | £ 900,000 | 0 | 0.00 KM |
| Station Road | £ 0 | 0 | 0.00 KM |
Nearby Transport
| Name | NLC | TLC | Distance |
|---|---|---|---|
| Willesden Junction | 1457 | WIJ | 0.73 KM |
| Harlesden | 1521 | HDN | 1.33 KM |
| Kensal Green | 1447 | KNL | 2.49 KM |
| Kensal Rise | 1448 | KNR | 2.92 KM |
| Acton Main Line | 3000 | AML | 3.34 KM |
Nearby Listings
| Address | Price | Type | Score | Distance |
|---|---|---|---|---|
| Crownhill Road, London, NW10 | £ 975,000 | BUY | 7 / 10 | 0.00 KM |
| Crownhill Road, London, NW10 | £ 975,000 | BUY | Unknown | 0.01 KM |
| Crownhill Road, London NW10 | £ 425,000 | BUY | 7 / 10 | 0.05 KM |
| Harlesden Gardens, Harlesden, London, NW10 | £ 1,000,000 | BUY | Unknown | 0.06 KM |
| Harlesden Gardens, Harlesden, NW10 | £ 825,000 | BUY | 6 / 10 | 0.08 KM |
Nearby Properties
| Address | Price | Distance |
|---|---|---|
| 40 Crownhill Road | £ 100,000 | 0.01 KM |
| 52 Crownhill Road | £ 140,000 | 0.01 KM |
| 62 Crownhill Road | £ 270,000 | 0.01 KM |
| 46 Crownhill Road | £ 750,000 | 0.01 KM |
| 56a Crownhill Road | £ 365,000 | 0.01 KM |