Combe Martin, Ilfracombe
By Bond Oxborough Phillips
£ 287,000
Reviews
2 out of 5 stars
Bond Oxborough Phillips says ..
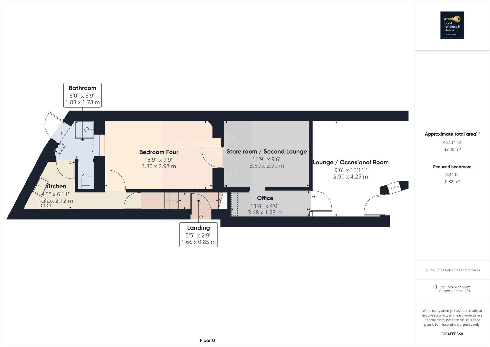
This Terraced property in the centre of a village offers spacious accommodation split into three flats with high ceilings, large windows, a well-maintained garden, and convenient access to local amenities and schools.
Property Oracle says ..
This property in Combe Martin, North Devon, presents a mixed bag of features. It’s a five-bedroom, three-bathroom terraced house situated in a coastal village setting. The proximity to several primary schools could make it attractive to families, although the distance to some schools is considerable. The photos reveal a property requiring some updating and maintenance. Some rooms appear reasonably well-kept with recently painted walls, yet the kitchen and bathrooms show signs of age and may require renovations. The outside space is limited, presenting a small garden that appears overgrown and in need of attention. The absence of information on the property’s exact square footage and the plot size makes a conclusive judgment on value difficult. However, comparing the asking price against other properties in the locality, while considering the property’s need for some improvements, suggests the listing price may be in the reasonable range of market value for similar properties in the area. The property’s ultimate value will greatly depend upon the buyer’s plans for potential refurbishment and their personal priorities for location and amenity access. Prospective buyers should factor in renovation costs into their purchasing decisions. Potential buyers should prioritize obtaining a full structural survey before committing to the purchase.
Therefore, we give this property 5 / 10. *Disclaimer: This is our option and does constitute a recommendation or financial advice. Do your own research. *
- Price
- 7
- Condition
- 5
- Location
- 7
- Land
- 4
- Bedrooms
- 5
- Bathrooms
- 3
- Sqft (est)
- 467.15
The heatmap indicates the level of crime in the area. The color of the heatmap indicates the crime severity and recency.
Metrics Year-on-Year
- Average area value
- 661,000.00 £Increased by 29.29 %
- Est sale value
- 253,195.30 £Increased by 47.28 %
- Average area rental value
- 2,410.00 £/moIncreased by 120.90 %
- Est letting value
- 467.15 £/mo
- Est rental Yield
- 4.38 %Increased by 71.09 %
- Crime Rate
- 43.00 %Unchanged by 0.00 %
Agent Activity
Bond Oxborough Phillips created the listing.
Nearby Schools
| Name | Type | Ofsted | Distance |
|---|---|---|---|
| Combe Martin Primary School | Academy Converter | 1.13 KM | |
| Berrynarbor Church Of England Primary School | Voluntary Controlled School | Outstanding | 3.89 KM |
| Kentisbury Primary School | Community School | Good | 6.48 KM |
| Marwood School | Foundation School | Outstanding | 9.38 KM |
| Shirwell Community Primary School | Community School | Good | 9.48 KM |
Images
Nearby Streets
| Name | Average Price | Average Sqft | Distance |
|---|---|---|---|
| Pound Lane | £ 0 | 0 | 0.00 KM |
| Rock Lane | £ 0 | 0 | 0.00 KM |
| Park View Close | £ 354,875 | 0 | 0.00 KM |
| Kiln Lane | £ 0 | 0 | 0.00 KM |
| Libra Gardens | £ 380,000 | 0 | 0.00 KM |
Nearby Listings
| Address | Price | Type | Score | Distance |
|---|---|---|---|---|
| Combe Martin, Ilfracombe | £ 287,000 | BUY | 5 / 10 | 0.00 KM |
| Westbourne Terrace, Combe Martin, Ilfracombe, Devon, EX34 | £ 275,000 | BUY | 5 / 10 | 0.08 KM |
| Kingsley Terrace, Combe Martin, Devon, EX34 | £ 285,000 | BUY | 6 / 10 | 0.16 KM |
| Kingsley Terrace, Combe Martin, Ilfracombe, Devon, EX34 | £ 214,500 | BUY | 7 / 10 | 0.17 KM |
| Kingsley Terrace, Combe Martin, Ilfracombe, Devon, EX34 | £ 320,000 | BUY | 6 / 10 | 0.18 KM |
Nearby Properties
| Address | Price | Distance |
|---|---|---|
| 31 High Street | £ 30,000 | 0.03 KM |
| Ellacombe Cottage | £ 125,000 | 0.06 KM |
| Lime Tree Cottage | £ 120,000 | 0.06 KM |
| Ellacombe House | £ 210,000 | 0.10 KM |
| Primrose Stores | £ 197,000 | 0.10 KM |