AU
38 Barrett Road, Norwich, Norfolk NR1 2HZ
By Auction House
£ 160,000
Reviews
3 out of 5 stars
Auction House says ..
FOR SALE BY LIVESTREAM AUCTION ON WEDNESDAY 18TH JUNE 2025 AT 10:00AM. TO REGISTER FOR LEGAL PACKS AND BIDDING INSTRUCTIONS PLEASE VISIT OUR WEBSITE
Property Oracle says ..
Therefore, we give this property 7 / 10. *Disclaimer: This is our option and does constitute a recommendation or financial advice. Do your own research. *
- Price
- 8
- Condition
- 6
- Location
- 7
- Land
- 7
- Bedrooms
- 3
- Bathrooms
- 0
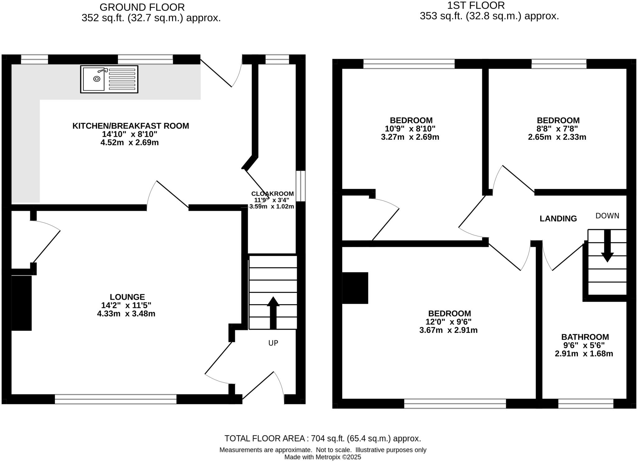
- Sqft (est)
- 655.75
The heatmap indicates the level of crime in the area. The color of the heatmap indicates the crime severity and recency.
Metrics Year-on-Year
- Average area value
- 286,250.00 £Increased by 20.30 %
- Est sale value
- 208,528.50 £Increased by 16.48 %
- Average area rental value
- 1,063.00 £/moIncreased by 3.30 %
- Est letting value
- 655.75 £/moUnchanged by 0.00 %
- Est rental Yield
- 4.46 %Decreased by 14.07 %
- Crime Rate
- 8.00 %Unchanged by 0.00 %
from 237,951.00 £
from 179,019.75 £
from 1,029.00 £/mo
from 655.75 £/mo
from 5.19 %
from 8.00 %
Agent Activity
Auction House created the listing.
Nearby Schools
| Name | Type | Ofsted | Distance |
|---|---|---|---|
| Lakenham Primary School | Foundation School | Good | 0.71 KM |
| East City And Framingham Earl Area Children'S Centre | Children's Centre | 0.83 KM | |
| Norwich Steiner School | Other Independent School | Good | 0.86 KM |
| Edith Cavell Academy And Nursery | Academy Sponsor Led | Good | 0.95 KM |
| The Wherry School | Free Schools Special | 1.38 KM |
Images
Nearby Streets
| Name | Average Price | Average Sqft | Distance |
|---|---|---|---|
| Broom Close | £ 0 | 0 | 0.00 KM |
| Old School Court | £ 180,000 | 0 | 0.00 KM |
| Saint Johns Close | £ 0 | 0 | 0.00 KM |
| The Paddock | £ 0 | 0 | 0.00 KM |
| Winkles Row | £ 0 | 0 | 0.00 KM |
Nearby Transport
| Name | NLC | TLC | Distance |
|---|---|---|---|
| Norwich | 7309 | NRW | 1.85 KM |
Nearby Listings
| Address | Price | Type | Score | Distance |
|---|---|---|---|---|
| 38 Barrett Road, Norwich, Norfolk NR1 2HZ | £ 160,000 | BUY | 7 / 10 | 0.00 KM |
| Barrett Road, Norwich | £ 180,000 | BUY | 5 / 10 | 0.06 KM |
| Arnold Miller Road, Norwich, Norfolk, NR1 | £ 425,000 | BUY | 7 / 10 | 0.08 KM |
| Martineau Lane, Norwich, Norfolk, NR1 | £ 350,000 | BUY | 6 / 10 | 0.12 KM |
| Martineau Lane, Norwich | £ 325,000 | BUY | 6 / 10 | 0.15 KM |
Nearby Properties
| Address | Price | Distance |
|---|---|---|
| 32 Barrett Road | £ 102,000 | 0.01 KM |
| 38 Barrett Road | £ 131,000 | 0.01 KM |
| 34 Barrett Road | £ 124,500 | 0.01 KM |
| 18 Barrett Road | £ 149,950 | 0.01 KM |
| 44 Arnold Miller Road | £ 340,000 | 0.12 KM |