Sycamore Road, Chapel-En-Le-Frith, High Peak
By Gascoigne Halman
£ 340,000
Reviews
3 out of 5 stars
Gascoigne Halman says ..
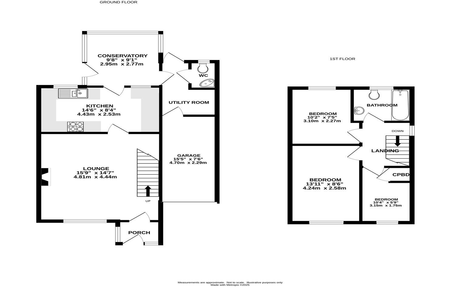
A well presented and extended three bedroom detached home in a popular location on the edge of the town. The property offers generous living accommodation with the addition of a solid, insulated roof conservatory to the rear and a utility and WC at the rear of the garage. The bedrooms are well pr...
Property Oracle says ..
This property is a 3-bedroom, 1-bathroom detached house located in Chapel-en-le-Frith, Derbyshire. It benefits from a good-sized garden with a patio area, greenhouse, and shed. The interior is presented in good order and benefits from modern amenities such as a conservatory and a garage. The property is conveniently located near local amenities, schools, and transport links. While the average price per square foot in the area is £301, this property is listed at £340,000, which is slightly above average but may be justified given its condition, location, and additional features. The nearby properties show a range of prices, with some significantly lower and some higher, suggesting there is some variability in pricing in the area.
Therefore, we give this property 7 / 10. *Disclaimer: This is our option and does constitute a recommendation or financial advice. Do your own research. *
- Price
- 7
- Condition
- 8
- Location
- 8
- Land
- 7
- Bedrooms
- 3
- Bathrooms
- 1
- Sqft (est)
- 1,060.68
The heatmap indicates the level of crime in the area. The color of the heatmap indicates the crime severity and recency.
Metrics Year-on-Year
- Average area value
- 334,167.00 £Increased by 24.23 %
- Est sale value
- 272,594.76 £Decreased by 19.44 %
- Average area rental value
- 1,252.00 £/moIncreased by 4.33 %
- Est letting value
- 0.00 £/moDecreased by 100.00 %
- Est rental Yield
- 4.50 %Decreased by 15.89 %
- Crime Rate
- 3.00 %Unchanged by 0.00 %
Agent Activity
Gascoigne Halman created the listing.
Nearby Schools
| Name | Type | Ofsted | Distance |
|---|---|---|---|
| Chapel-En-Le-Frith High School | Community School | Good | 0.88 KM |
| Chapel-En-Le-Frith Cofe Vc Primary School | Voluntary Controlled School | Good | 1.07 KM |
| Chinley Primary School | Foundation School | Good | 2.91 KM |
| Combs Infant School | Community School | Outstanding | 3.14 KM |
| Peak School | Academy Special Converter | 3.33 KM |
Images
Nearby Streets
| Name | Average Price | Average Sqft | Distance |
|---|---|---|---|
| Sycamore Road | £ 0 | 0 | 0.00 KM |
| The Hawthorns | £ 264,950 | 0 | 0.00 KM |
| The Rushes | £ 252,498 | 0 | 0.00 KM |
| Brookside Path | £ 420,000 | 0 | 0.00 KM |
| Station Road | £ 0 | 0 | 0.00 KM |
Nearby Transport
| Name | NLC | TLC | Distance |
|---|---|---|---|
| Chapel-En-Le-Frith | 2762 | CEF | 0.61 KM |
| Dove Holes | 2766 | DVH | 3.28 KM |
| Chinley | 2823 | CLY | 4.22 KM |
| Buxton | 2946 | BUX | 6.15 KM |
| Whaley Bridge | 2772 | WBR | 7.89 KM |
Nearby Listings
| Address | Price | Type | Score | Distance |
|---|---|---|---|---|
| Sycamore Road, Chapel-En-Le-Frith, High Peak | £ 340,000 | BUY | 7 / 10 | 0.00 KM |
| Woodlands Road, Chapel-En-Le-Frith, High Peak | £ 329,500 | BUY | 7 / 10 | 0.11 KM |
| Woodlands Road, Chapel-En-Le-Frith, SK23 | £ 325,000 | BUY | 6 / 10 | 0.13 KM |
| Longmeade Drive, Chapel-En-Le-Frith, High Peak | £ 250,000 | BUY | 6 / 10 | 0.14 KM |
| Woodlands Road, Chapel-En-Le-Frith, SK23 | £ 235,000 | BUY | Unknown | 0.14 KM |
Nearby Properties
| Address | Price | Distance |
|---|---|---|
| 6 Longmeade Drive | £ 137,000 | 0.07 KM |
| 14 Longmeade Drive | £ 151,000 | 0.07 KM |
| 19 Longmeade Drive | £ 199,995 | 0.07 KM |
| 16 Longmeade Drive | £ 119,500 | 0.07 KM |
| 17 Longmeade Drive | £ 50,000 | 0.07 KM |