Soane Property Group says ..
Welcone to Nancy Road, a third floor apartment located in central Fratton. A spacious lounge, separate kitchen, white bathroom suite, double glazing, gas central heating. Close to Fratton train station, shops and restaurants. Please contact Soane Group today to arrange a viewing.
Property Oracle says ..
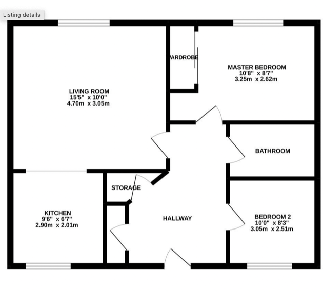
This two-bedroom flat in Fratton, Portsmouth, offers a potentially appealing option for first-time buyers or investors. Its key strengths lie in its convenient location near Fratton train station, shops, restaurants, and several schools. The proximity to transportation links would make commuting effortless for those who work in Portsmouth or further afield. The flat’s layout includes a spacious lounge, separate kitchen, and bathroom. However, the provided photographs reveal a property that may require some modernisation and cosmetic work to make it fully move-in ready. While the flat’s condition is adequate, potential buyers may wish to factor in costs associated with refurbishing and updating parts of the property. The overall price appears to fall within the typical range for similar properties listed in the area. It’s worth noting that precise square footage is missing from the listing, making precise price-per-square-foot comparisons challenging. Nevertheless, based on available data, this property seems to represent reasonable value, particularly given its location, provided potential buyers are aware that some maintenance and improvement may be necessary.
Therefore, we give this property 5 / 10. *Disclaimer: This is our option and does constitute a recommendation or financial advice. Do your own research. *
- Price
- 7
- Condition
- 5
- Location
- 7
- Land
- 1
- Bedrooms
- 2
- Bathrooms
- 1
- Sqft (est)
- 720.86
The heatmap indicates the level of crime in the area. The color of the heatmap indicates the crime severity and recency.
Metrics Year-on-Year
- Average area value
- 239,983.00 £Increased by 16.47 %
- Est sale value
- 278,972.82 £Increased by 8.40 %
- Average area rental value
- 1,437.00 £/moIncreased by 29.23 %
- Est letting value
- 1,441.72 £/moIncreased by 100.00 %
- Est rental Yield
- 7.19 %Increased by 10.96 %
- Crime Rate
- 7.00 %Unchanged by 0.00 %
Agent Activity
Soane Property Group created the listing.
Nearby Schools
| Name | Type | Ofsted | Distance |
|---|---|---|---|
| Penhale Infant School & Nursery | Academy Converter | 0.28 KM | |
| Fratton Children'S Centre | Children's Centre | 0.28 KM | |
| Priory School | Academy Sponsor Led | Good | 0.44 KM |
| The Portsmouth Academy | Academy Sponsor Led | Good | 0.61 KM |
| Arundel Court Primary Academy And Nursery | Academy Converter | 0.65 KM |
Images
Nearby Streets
| Name | Average Price | Average Sqft | Distance |
|---|---|---|---|
| Trafalgar Place | £ 0 | 0 | 0.00 KM |
| Common Street | £ 0 | 0 | 0.00 KM |
| Proctor Lane | £ 0 | 0 | 0.00 KM |
| Northam Street | £ 0 | 0 | 0.00 KM |
| Fourth Street | £ 0 | 0 | 0.00 KM |
Nearby Transport
| Name | NLC | TLC | Distance |
|---|---|---|---|
| Fratton | 5509 | FTN | 0.41 KM |
| Portsmouth And Southsea | 5537 | PMS | 1.59 KM |
| Portsmouth Harbour | 5540 | PMH | 3.46 KM |
| Hilsea | 5539 | HLS | 3.81 KM |
| Cosham | 5896 | CSA | 4.88 KM |
Nearby Listings
| Address | Price | Type | Score | Distance |
|---|---|---|---|---|
| Nancy Road, Fratton, Portsmouth, PO1 | £ 130,000 | BUY | 5 / 10 | 0.01 KM |
| Nancy Road, Portsmouth, Hampshire, PO1 | £ 120,000 | BUY | Unknown | 0.01 KM |
| Nancy Road, Portsmouth, Hampshire, PO1 | £ 140,000 | BUY | Unknown | 0.01 KM |
| Nancy Road, Portsmouth | £ 120,000 | BUY | 5 / 10 | 0.01 KM |
| Nancy Road, Portsmouth, Hampshire | £ 110,000 | BUY | Unknown | 0.01 KM |
Nearby Properties
| Address | Price | Distance |
|---|---|---|
| 7 Penhale Road | £ 154,200 | 0.06 KM |
| 5 Penhale Road | £ 162,000 | 0.06 KM |
| 3 Penhale Road | £ 152,000 | 0.06 KM |
| 13 Penhale Road | £ 215,250 | 0.06 KM |
| 10 Penhale Road | £ 168,000 | 0.06 KM |