Crescent Grove, Clapham Common, SW4
By Story of Home
£ 4,000,000
Reviews
3 out of 5 stars
Story of Home says ..
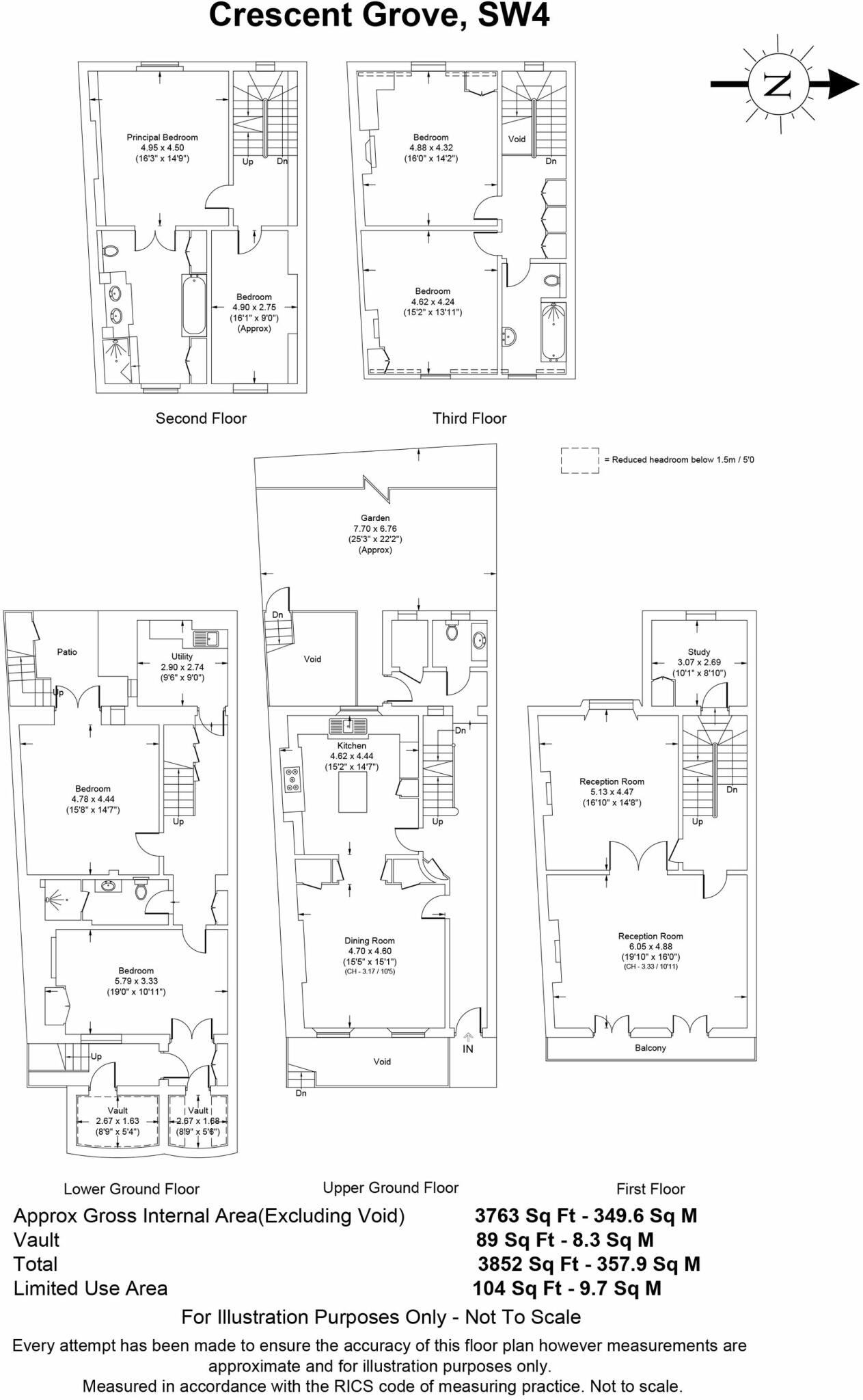
Located within the private estate of Crescent Grove, this mid-terraced Regency townhouse is arranged over five floors, showcasing an array of period features throughout.
Property Oracle says ..
This six-bedroom, three-bathroom townhouse located on Crescent Grove in Clapham Common, SW4, presents a compelling offering in a highly sought-after area of London. The property boasts period features throughout, which are evident in the architectural details and interior design shown in the photographs. The interior is well-presented and offers ample living space, suitable for a large family. The presence of multiple reception rooms, a well-equipped kitchen, and numerous bedrooms provides considerable versatility. The location is a significant strength, situated near Clapham Common, offering green space and recreational opportunities. The proximity to highly-rated primary schools and various transport links enhances its convenience and desirability. While the provided images show a well-maintained interior, the exterior and garden may benefit from some landscaping and maintenance to fully realize its potential. Ultimately, this property presents a luxurious family home in a prime location, though prospective buyers should carefully consider the total cost of ownership and assess the required upkeep to fully optimize the property’s condition and value. The lack of precise plot size information is a notable omission in the provided details.
Therefore, we give this property 6 / 10. *Disclaimer: This is our option and does constitute a recommendation or financial advice. Do your own research. *
- Price
- 7
- Condition
- 7
- Location
- 9
- Land
- 4
- Bedrooms
- 6
- Bathrooms
- 3
- Sqft (est)
- 3,852.00
The heatmap indicates the level of crime in the area. The color of the heatmap indicates the crime severity and recency.
Metrics Year-on-Year
- Average area value
- 868,170.00 £Decreased by 7.78 %
- Est sale value
- 3,555,396.00 £Increased by 9.23 %
- Average area rental value
- 3,274.00 £/moIncreased by 7.73 %
- Est letting value
- 11,556.00 £/moIncreased by 50.00 %
- Est rental Yield
- 4.53 %Increased by 17.05 %
- Crime Rate
- 2.00 %Unchanged by 0.00 %
Agent Activity
Story of Home created the listing.
Nearby Schools
| Name | Type | Ofsted | Distance |
|---|---|---|---|
| St Mary'S Roman Catholic Primary School | Voluntary Aided School | Outstanding | 0.17 KM |
| Lambeth College | Further Education | Requires improvement | 0.25 KM |
| Lambeth Academy | Academy Sponsor Led | Good | 0.38 KM |
| Clapham Manor Primary School | Community School | Outstanding | 0.50 KM |
| Clapham Manor Primary School And Children'S Centre | Children's Centre | 0.60 KM |
Images
Nearby Streets
| Name | Average Price | Average Sqft | Distance |
|---|---|---|---|
| Long Road | £ 575,000 | 0 | 0.00 KM |
| Nelson's Row | £ 0 | 0 | 0.00 KM |
| Bowlands Road | £ 0 | 0 | 0.00 KM |
| Clapham Manor Court | £ 0 | 0 | 0.00 KM |
| North Street Mews | £ 695,000 | 0 | 0.00 KM |
Nearby Transport
| Name | NLC | TLC | Distance |
|---|---|---|---|
| Clapham High Street | 5301 | CLP | 0.94 KM |
| Wandsworth Road | 5372 | WWR | 1.12 KM |
| Queenstown Road (Battersea) | 5596 | QRB | 1.84 KM |
| Battersea Park | 5420 | BAK | 2.08 KM |
| Balham | 5399 | BAL | 2.39 KM |
Nearby Listings
| Address | Price | Type | Score | Distance |
|---|---|---|---|---|
| Crescent Grove, Clapham Common, SW4 | £ 4,000,000 | BUY | 6 / 10 | 0.00 KM |
| Crescent Grove, Clapham Common South Side, London, SW4 | £ 450,000 | BUY | 6 / 10 | 0.03 KM |
| Crescent Grove, London SW4 | £ 310,000 | BUY | 5 / 10 | 0.05 KM |
| 2 Denmark Lodge, Crescent Grove, Clapham, London, SW4 7AG | £ 260,000 | BUY | 6 / 10 | 0.05 KM |
| Crescent Grove, London, SW4. | £ 3,650,000 | BUY | 8 / 10 | 0.07 KM |
Nearby Properties
| Address | Price | Distance |
|---|---|---|
| 29 Clapham Common South Side | £ 625,000 | 0.05 KM |
| 4 Crescent Grove | £ 2,450,000 | 0.07 KM |
| 32a Crescent Grove | £ 2,790,000 | 0.07 KM |
| 14 Crescent Grove | £ 1,650,000 | 0.07 KM |
| 23 Clapham Common | £ 245,000 | 0.08 KM |