Keatons says ..
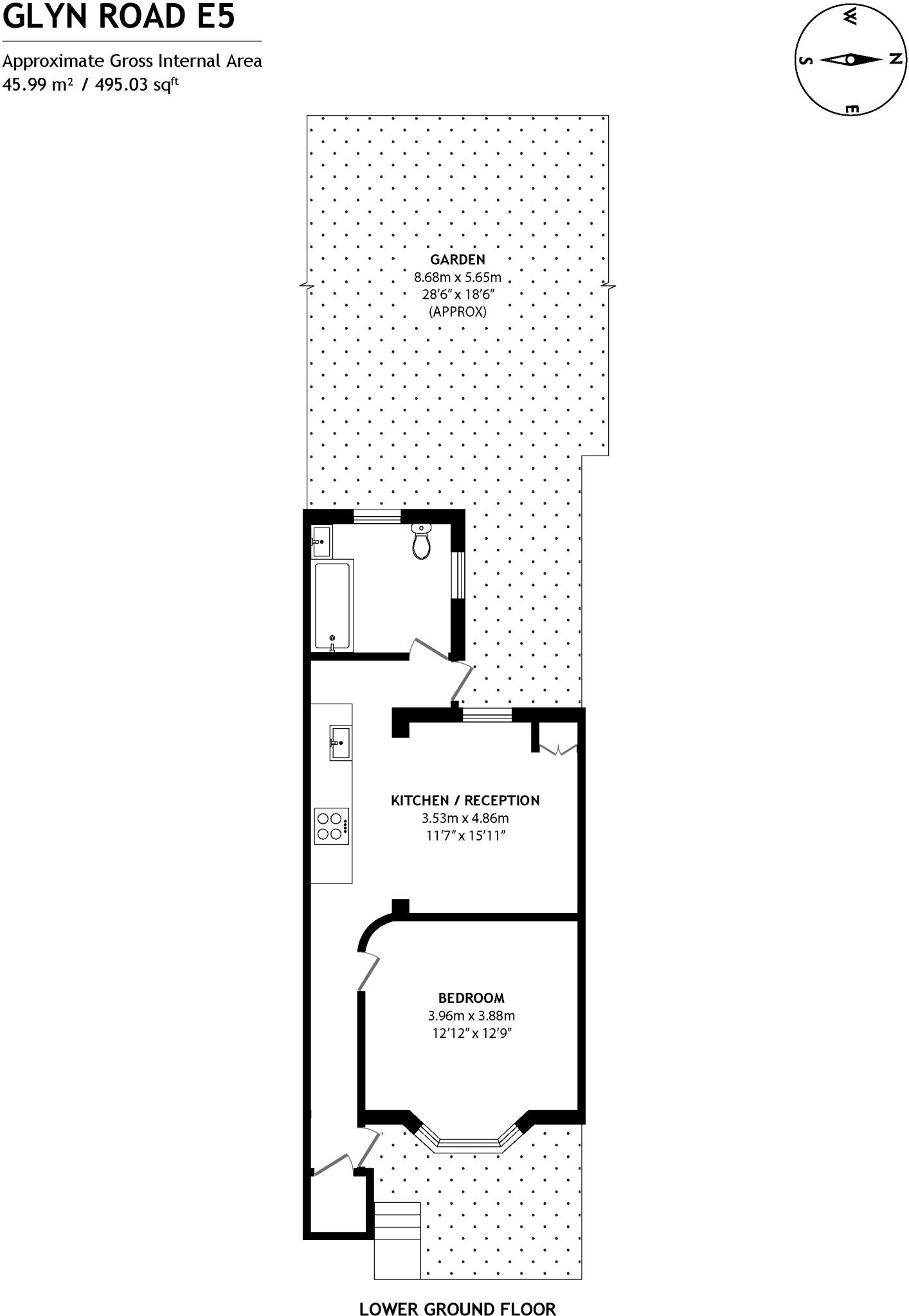
Situated on the lower ground floor of a glorious three storey Victorian residence is this superb one bedroom flat. Accomodation comprising of a large bay fronted bedroom, chic bathroom, modern kitchen open plan to a gorgeous bright living room and a West facing private garden. Further benefitting...
Property Oracle says ..
Therefore, we give this property 7 / 10. *Disclaimer: This is our option and does constitute a recommendation or financial advice. Do your own research. *
- Price
- 8
- Condition
- 7
- Location
- 8
- Land
- 7
- Bedrooms
- 1
- Bathrooms
- 1
- Sqft (est)
- 495.03
The heatmap indicates the level of crime in the area. The color of the heatmap indicates the crime severity and recency.
Metrics Year-on-Year
- Average area value
- 786,667.00 £Decreased by 0.96 %
- Est sale value
- 373,252.62 £Decreased by 11.29 %
- Average area rental value
- 2,720.00 £/moDecreased by 8.48 %
- Est letting value
- 990.06 £/moDecreased by 33.33 %
- Est rental Yield
- 4.15 %Decreased by 7.57 %
- Crime Rate
- 3.00 %Unchanged by 0.00 %
from 794,286.00 £
from 420,775.50 £
from 2,972.00 £/mo
from 1,485.09 £/mo
from 4.49 %
from 3.00 %
Agent Activity
Keatons created the listing.
Nearby Schools
| Name | Type | Ofsted | Distance |
|---|---|---|---|
| Daubeney Primary School | Community School | Requires improvement | 0.40 KM |
| Daubeney Children'S Centre | Children's Centre | 0.42 KM | |
| Mandeville Primary School | Community School | Good | 0.50 KM |
| Clapton Park Children'S Centre | Children's Centre Linked Site | 0.60 KM | |
| Rushmore Primary School | Community School | Good | 0.63 KM |
Images
Nearby Streets
| Name | Average Price | Average Sqft | Distance |
|---|---|---|---|
| Thyme Walk | £ 0 | 0 | 0.00 KM |
| Fisher Close | £ 0 | 0 | 0.00 KM |
| Chowdhury Walk | £ 625,000 | 0 | 0.00 KM |
| Crozier Terrace | £ 0 | 0 | 0.00 KM |
| Banister House | £ 415,000 | 0 | 0.00 KM |
Nearby Transport
| Name | NLC | TLC | Distance |
|---|---|---|---|
| Homerton | 6979 | HMN | 0.68 KM |
| Lea Bridge | 6927 | LEB | 1.59 KM |
| Hackney Central | 6977 | HKC | 1.73 KM |
| Clapton | 6926 | CPT | 1.95 KM |
| Hackney Wick | 6978 | HKW | 2.14 KM |
Nearby Listings
| Address | Price | Type | Score | Distance |
|---|---|---|---|---|
| Glyn Road, Homerton, London, E5 | £ 475,000 | BUY | 7 / 10 | 0.00 KM |
| Glyn Road, LONDON E5 | £ 850,000 | BUY | Unknown | 0.07 KM |
| George Court, 171 Glyn Road, London, E5 | £ 800,000 | BUY | 6 / 10 | 0.08 KM |
| Glenarm Road, London, E5 | £ 1,150,000 | BUY | 6 / 10 | 0.08 KM |
| Glenarm Road, Hackney | £ 1,100,000 | BUY | 6 / 10 | 0.08 KM |
Nearby Properties
| Address | Price | Distance |
|---|---|---|
| 135 Glyn Road | £ 208,000 | 0.01 KM |
| 147 Glyn Road | £ 325,000 | 0.01 KM |
| 169 Glyn Road | £ 205,000 | 0.01 KM |
| 131 Glyn Road | £ 800,000 | 0.01 KM |
| 161 Glyn Road | £ 1,018,688 | 0.01 KM |