Hunters says ..
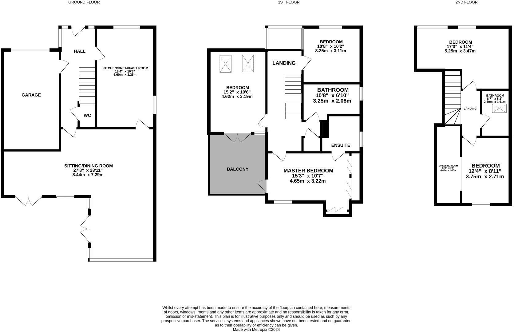
A well presented five bedroom detached home home with an impressive open plan reception room, kitchen/dining room, roof terrace, enclosed rear garden and situated in a highly desirable location within easy access to countryside. The spacious accommodation offers a stylish entrance hall w...
Property Oracle says ..
This five-bedroom, three-bathroom detached house in Hawkinge, Kent is presented in excellent condition. The property boasts a modern interior design with spacious living areas including an open-plan kitchen/dining room and a large living area with an extension. The interior features modern fixtures and fittings, creating a contemporary feel throughout. The house benefits from a garden offering some outdoor space. The location of the property provides ease of access to several well-regarded primary and secondary schools within reasonable distance, making it a suitable option for families. The property is located near two railway stations, Folkestone West and Folkestone Central. Both are situated a short distance from the property, providing reasonable links to other areas and the South East. Overall, this property presents itself as a substantial family home in a desirable location with a modern and well-maintained interior, making it an attractive option for those seeking a comfortable and convenient place to live. Further investigation into the precise plot size and more detailed information about the local average price per square foot would aid in achieving a more comprehensive analysis.
Therefore, we give this property 7 / 10. *Disclaimer: This is our option and does constitute a recommendation or financial advice. Do your own research. *
- Price
- 7
- Condition
- 8
- Location
- 7
- Land
- 6
- Bedrooms
- 5
- Bathrooms
- 3
- Sqft (est)
- 1,913.39
The heatmap indicates the level of crime in the area. The color of the heatmap indicates the crime severity and recency.
Metrics Year-on-Year
- Average area value
- 418,333.00 £Decreased by 7.14 %
- Est sale value
- 763,442.61 £Increased by 18.05 %
- Average area rental value
- 1,400.00 £/moDecreased by 26.55 %
- Est letting value
- 1,913.39 £/moUnchanged by 0.00 %
- Est rental Yield
- 4.02 %Decreased by 20.87 %
- Crime Rate
- 26.00 %Unchanged by 0.00 %
Agent Activity
Hunters created the listing.
Nearby Schools
| Name | Type | Ofsted | Distance |
|---|---|---|---|
| The Churchill School | Foundation School | Good | 0.63 KM |
| Hawkinge And Rural Children'S Centre | Children's Centre | 1.20 KM | |
| Hawkinge Primary School | Foundation School | Outstanding | 1.26 KM |
| Folkestone Academy | Academy Sponsor Led | 2.05 KM | |
| Folkestone Primary | Academy Sponsor Led | 2.05 KM |
Images
Nearby Streets
| Name | Average Price | Average Sqft | Distance |
|---|---|---|---|
| Rose Walk | £ 407,500 | 0 | 0.00 KM |
| Littlewood Road | £ 0 | 0 | 0.00 KM |
| Connigsby Road | £ 0 | 0 | 0.00 KM |
| Merlin Court | £ 0 | 0 | 0.00 KM |
| (Poppy Fields Estate) | £ 0 | 0 | 0.00 KM |
Nearby Transport
| Name | NLC | TLC | Distance |
|---|---|---|---|
| Folkestone West | 5027 | FKW | 2.60 KM |
| Folkestone Central | 5035 | FKC | 3.08 KM |
Nearby Listings
| Address | Price | Type | Score | Distance |
|---|---|---|---|---|
| Paxton Avenue, Hawkinge | £ 600,000 | BUY | 7 / 10 | 0.00 KM |
| Paxton Avenue, Hawkinge, Folkestone, Kent, CT18 | £ 600,000 | BUY | 7 / 10 | 0.00 KM |
| Redwing Close, Hawkinge, CT18 | £ 600,000 | BUY | 7 / 10 | 0.05 KM |
| Redwing Close, Hawkinge, Folkestone, Kent, CT18 | £ 190,000 | BUY | 5 / 10 | 0.06 KM |
| Paxton Avenue, Hawkinge, Folkestone, CT18 | £ 425,000 | BUY | 7 / 10 | 0.06 KM |
Nearby Properties
| Address | Price | Distance |
|---|---|---|
| 3 Redwing Close | £ 180,000 | 0.05 KM |
| 5 Redwing Close | £ 169,000 | 0.05 KM |
| 1 Redwing Close | £ 165,000 | 0.05 KM |
| 6 Redwing Close | £ 460,000 | 0.05 KM |
| 9 Redwing Close | £ 440,000 | 0.05 KM |