NORWOOD ROAD, EFFINGHAM, KT24
By Patrick Gardner
£ 280,000
Reviews
3 out of 5 stars
Patrick Gardner says ..
No summary available.
Property Oracle says ..
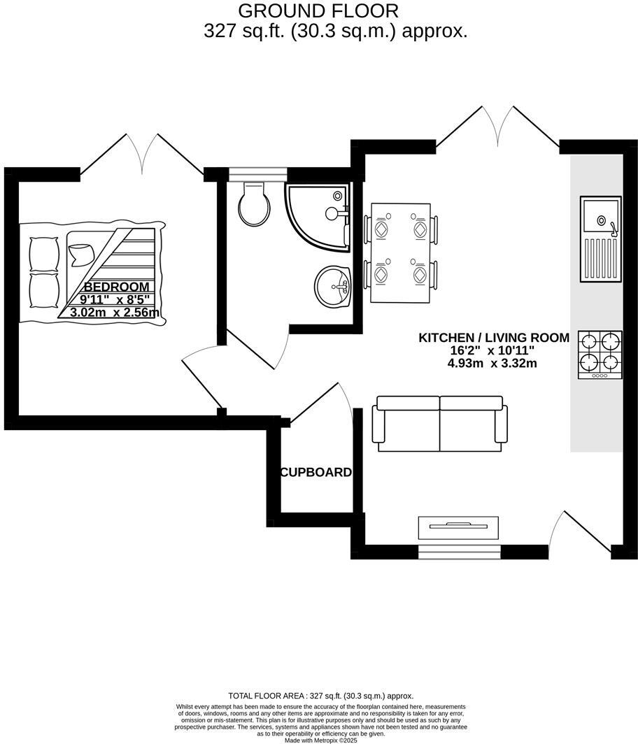
The property is a maisonette located in Effingham, Surrey. It benefits from being close to several highly-rated schools, including Howard of Effingham School and St Lawrence Primary School, both rated ‘Good’ by Ofsted. The proximity to Bookham, Effingham Junction and other train stations provides convenient access to commuting routes. The property itself appears modern and well-maintained, based on the provided images. It includes a small, paved rear garden, offering some outdoor space. However, the plot size is very small.
The list price of £280,000 is significantly lower than the average house price in the area (£976,470). While this might initially seem attractive, it’s crucial to consider that this property is a maisonette, a smaller property type compared to the average detached or semi-detached houses in the area. The average price per square foot in the area is £638, while this property’s size is considerably smaller, at 326.15 sqft. The significantly lower price may reflect the smaller size and the fact that it is a maisonette. Further investigation into comparable properties of similar size and type in the area would be beneficial to definitively assess the value.
Therefore, we give this property 7 / 10. *Disclaimer: This is our option and does constitute a recommendation or financial advice. Do your own research. *
- Price
- 7
- Condition
- 10
- Location
- 9
- Land
- 3
- Bedrooms
- 1
- Bathrooms
- 1
- Sqft (est)
- 326.15
The heatmap indicates the level of crime in the area. The color of the heatmap indicates the crime severity and recency.
Metrics Year-on-Year
- Average area value
- 724,950.00 £Decreased by 15.84 %
- Est sale value
- 215,259.00 £Increased by 43.17 %
- Average area rental value
- 2,900.00 £/moDecreased by 58.57 %
- Est letting value
- 652.30 £/moDecreased by 33.33 %
- Est rental Yield
- 4.80 %Decreased by 50.77 %
- Crime Rate
- 18.00 %Unchanged by 0.00 %
Agent Activity
Patrick Gardner created the listing.
Nearby Schools
| Name | Type | Ofsted | Distance |
|---|---|---|---|
| Howard Of Effingham School | Academy Converter | Good | 0.51 KM |
| Manor House School | Other Independent School | 0.63 KM | |
| St Lawrence Primary School | Academy Sponsor Led | Good | 0.81 KM |
| Wellspring Sure Start Children'S Centre | Children's Centre Linked Site | 2.19 KM | |
| The Dawnay School | Community School | Requires improvement | 2.28 KM |
Images
Nearby Streets
| Name | Average Price | Average Sqft | Distance |
|---|---|---|---|
| Browns Lane | £ 0 | 0 | 0.00 KM |
| Lower Road | £ 885,833 | 0 | 0.00 KM |
| FP 123 | £ 3,950,000 | 0 | 0.00 KM |
| FP 122 | £ 0 | 0 | 0.00 KM |
| Oaks View | £ 0 | 0 | 0.00 KM |
Nearby Transport
| Name | NLC | TLC | Distance |
|---|---|---|---|
| Bookham | 5626 | BKA | 2.48 KM |
| Effingham Junction | 5642 | EFF | 3.80 KM |
| Horsley | 5562 | HSY | 4.70 KM |
| Cobham And Stoke D'Abernon | 5557 | CSD | 5.50 KM |
| Dorking West | 5297 | DKT | 7.01 KM |
Nearby Listings
| Address | Price | Type | Score | Distance |
|---|---|---|---|---|
| NORWOOD ROAD, EFFINGHAM, KT24 | £ 280,000 | BUY | 7 / 10 | 0.00 KM |
| Victory Cottages, Effingham | £ 575,000 | BUY | Unknown | 0.03 KM |
| Three Bedroom Semi-Detached House Guildford Road, Effingham | £ 575,000 | BUY | 6 / 10 | 0.10 KM |
| NORWOOD CLOSE, EFFINGHAM, KT24 | £ 560,000 | BUY | 7 / 10 | 0.12 KM |
| Norwood Close, Effingham, Surrey, KT24 | £ 600,000 | BUY | 7 / 10 | 0.15 KM |
Nearby Properties
| Address | Price | Distance |
|---|---|---|
| 1 Lindens Close | £ 515,000 | 0.14 KM |
| 18 Lindens Close | £ 720,000 | 0.14 KM |
| 2 Lindens Close | £ 567,500 | 0.14 KM |
| 6 Lindens Close | £ 562,000 | 0.15 KM |
| 11 Lindens Close | £ 460,000 | 0.15 KM |