Coady Phillips says ..
Situated in this popular semi rural location a short distance to Chelsfield Village and Orpington town centre we are delighted to offer for sale this character two double bedroom detached bungalow that in our opinion offers huge potential to enhance and extend.
Property Oracle says ..
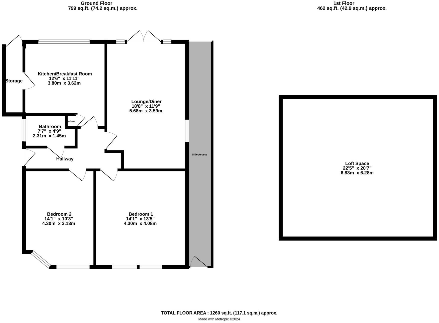
This property is a 2 bedroom, 1 bathroom house located in Orpington, Bromley. It is on Chelsfield Lane, which is a residential street with a mix of detached and semi-detached houses. The property itself is a bungalow with a small garden. The property appears to be in good condition and has been well maintained. The list price is below the average price for the area, but the property is smaller than average. The property is conveniently located near several schools and transportation links. There are several good primary schools within a short distance, and Chelsfield train station is approximately 2km away. Overall, this is a well-maintained property in a good location, and the price seems reasonable given the current market conditions.
Therefore, we give this property 6 / 10. *Disclaimer: This is our option and does constitute a recommendation or financial advice. Do your own research. *
- Price
- 7
- Condition
- 8
- Location
- 7
- Land
- 4
- Bedrooms
- 2
- Bathrooms
- 1
- Sqft (est)
- 720.00
The heatmap indicates the level of crime in the area. The color of the heatmap indicates the crime severity and recency.
Metrics Year-on-Year
- Average area value
- 515,714.00 £Decreased by 11.04 %
- Est sale value
- 313,200.00 £Unchanged by 0.00 %
- Average area rental value
- 1,870.00 £/moIncreased by 8.03 %
- Est letting value
- 720.00 £/moUnchanged by 0.00 %
- Est rental Yield
- 4.35 %Increased by 21.51 %
- Crime Rate
- 4.00 %Unchanged by 0.00 %
Agent Activity
Coady Phillips created the listing.
Nearby Schools
| Name | Type | Ofsted | Distance |
|---|---|---|---|
| Bromley Beacon Academy | Academy Special Sponsor Led | Good | 0.68 KM |
| Blenheim Primary School | Academy Converter | Good | 0.83 KM |
| Blenheim Children And Family Centre | Children's Centre | 0.98 KM | |
| Harris Academy Orpington | Academy Sponsor Led | Requires improvement | 1.18 KM |
| Chelsfield Primary School | Academy Converter | Good | 1.23 KM |
Images
Nearby Streets
| Name | Average Price | Average Sqft | Distance |
|---|---|---|---|
| Lilly's Wood | £ 0 | 0 | 0.00 KM |
| Finglesham Close | £ 0 | 0 | 0.00 KM |
| Court Road | £ 0 | 0 | 0.00 KM |
| Eton Road | £ 525,000 | 0 | 0.00 KM |
| Stanton Close | £ 0 | 0 | 0.00 KM |
Nearby Transport
| Name | NLC | TLC | Distance |
|---|---|---|---|
| Chelsfield | 5098 | CLD | 2.07 KM |
| Knockholt | 5109 | KCK | 2.60 KM |
| St Mary Cray | 5073 | SMY | 3.53 KM |
| Orpington | 5122 | ORP | 3.86 KM |
| Swanley | 5075 | SAY | 5.79 KM |
Nearby Listings
| Address | Price | Type | Score | Distance |
|---|---|---|---|---|
| Chelsfield Lane, Orpington | £ 575,000 | BUY | 6 / 10 | 0.00 KM |
| Chelsfield Lane, Orpington | £ 625,000 | BUY | 6 / 10 | 0.02 KM |
| Chelsfield Lane, Orpington, Kent, BR6 | £ 485,000 | BUY | 6 / 10 | 0.02 KM |
| Chelsfield Lane, Orpington | £ 550,000 | BUY | 6 / 10 | 0.02 KM |
| Chelsfield Lane, Orpington, BR6 | £ 725,000 | BUY | 6 / 10 | 0.06 KM |
Nearby Properties
| Address | Price | Distance |
|---|---|---|
| St Elmo | £ 220,000 | 0.01 KM |
| Oberon | £ 520,000 | 0.01 KM |
| Rosegarth | £ 442,000 | 0.01 KM |
| Carmay | £ 595,000 | 0.01 KM |
| Thornfield | £ 575,000 | 0.01 KM |