Simon Blyth says ..
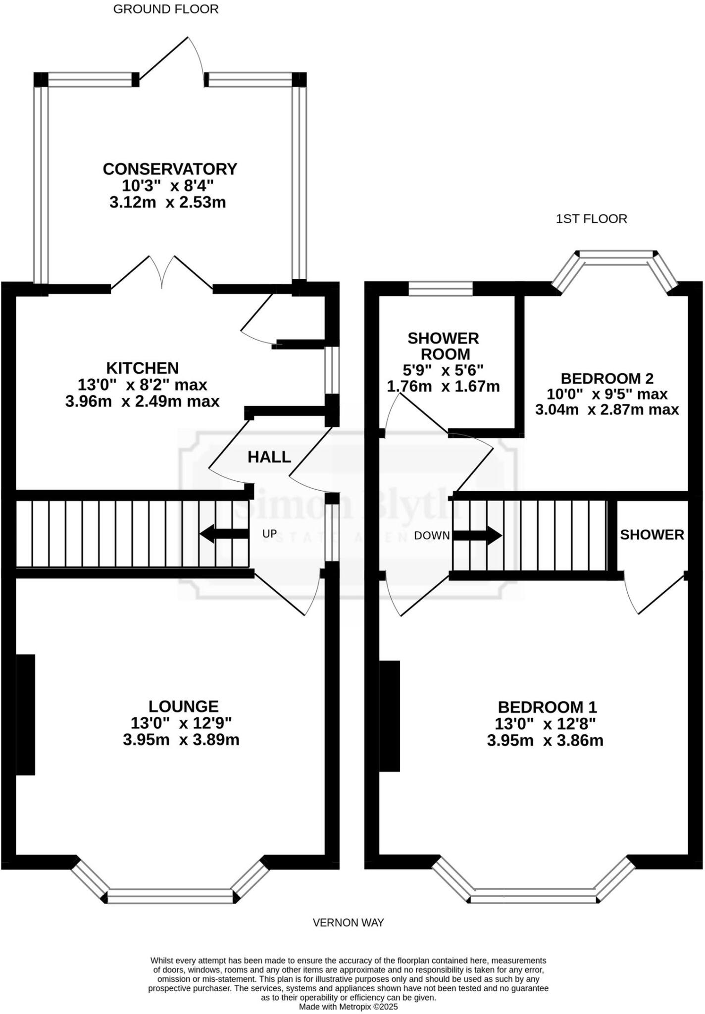
OFFERED TO THE MARKET WITH NO UPPER VENDOR CHAIN IS THIS WELL PROPORTIONED TWO BEDROOM SEMI DETACHED PROPERTY. IN THIS HIGHLY REGARDED AREA CLOSE TO LOCAL AMENITIES INCLUDING BARNSLEY HOSPITAL, BARNSLEY CENTER AND THE M1 MOTORWAY. The property briefly comprises; entrance hall, living room, kitche...
Property Oracle says ..
This is a two-bedroom semi-detached property located on Vernon Way in Barnsley. The house has a traditional style and is in reasonable condition, although some modernisation may be desired. It features a fitted kitchen, a living room, a bathroom with a shower, and a conservatory. The property benefits from a driveway and a good-sized rear garden. Several schools are located within a reasonable distance, and Barnsley train station is approximately 3km away. The asking price of £150,000 appears reasonable compared to other properties in the area.
Therefore, we give this property 6 / 10. *Disclaimer: This is our option and does constitute a recommendation or financial advice. Do your own research. *
- Price
- 8
- Condition
- 6
- Location
- 6
- Land
- 7
- Bedrooms
- 2
- Bathrooms
- 1
- Sqft (est)
- 645.73
The heatmap indicates the level of crime in the area. The color of the heatmap indicates the crime severity and recency.
Metrics Year-on-Year
- Average area value
- 956,598.00 £Increased by 11.44 %
- Est sale value
- 257,000.54 £Decreased by 31.97 %
- Average area rental value
- 2,934.00 £/moIncreased by 6.69 %
- Est letting value
- 645.73 £/moUnchanged by 0.00 %
- Est rental Yield
- 3.68 %Decreased by 4.17 %
- Crime Rate
- 10.00 %Unchanged by 0.00 %
Agent Activity
Simon Blyth created the listing.
Nearby Schools
| Name | Type | Ofsted | Distance |
|---|---|---|---|
| Summer Lane Primary | Community School | Good | 0.92 KM |
| St Mary'S Church Of England Primary School, Barnsley | Academy Converter | Outstanding | 1.03 KM |
| Horizon Community College | Academy Converter | 1.05 KM | |
| Gawber Primary School | Community School | Outstanding | 1.08 KM |
| Wilthorpe Primary School | Community School | Requires improvement | 1.33 KM |
Images
Nearby Streets
| Name | Average Price | Average Sqft | Distance |
|---|---|---|---|
| Downes Crescent | £ 350,000 | 0 | 0.00 KM |
| Grampian Close | £ 220,000 | 0 | 0.00 KM |
| Ashfield Close | £ 350,000 | 0 | 0.00 KM |
| Mary's Place | £ 85,000 | 0 | 0.00 KM |
| Glendale Close | £ 0 | 0 | 0.00 KM |
Nearby Transport
| Name | NLC | TLC | Distance |
|---|---|---|---|
| Barnsley | 6774 | BNY | 3.08 KM |
| Dodworth | 6781 | DOD | 3.50 KM |
| Darton | 8420 | DRT | 4.34 KM |
| Silkstone Common | 6782 | SLK | 7.12 KM |
Nearby Listings
| Address | Price | Type | Score | Distance |
|---|---|---|---|---|
| Vernon Way, Barnsley, S75 | £ 150,000 | BUY | 6 / 10 | 0.00 KM |
| Vernon Way, Barnsley, S75 2NL | £ 260,000 | BUY | 7 / 10 | 0.07 KM |
| Vernon Way, Barnsley, S75 2NL | £ 250,000 | BUY | 7 / 10 | 0.07 KM |
| Redbrook Road, Barnsley | £ 230,000 | BUY | 7 / 10 | 0.09 KM |
| Redbrook Road, Barnsley, South Yorkshire, S75 | £ 200,000 | BUY | 7 / 10 | 0.10 KM |
Nearby Properties
| Address | Price | Distance |
|---|---|---|
| 113 Vernon Way | £ 15,000 | 0.07 KM |
| 111 Vernon Way | £ 97,000 | 0.07 KM |
| 14 Vernon Way | £ 117,500 | 0.07 KM |
| 26 Vernon Way | £ 162,500 | 0.07 KM |
| 36 Vernon Way | £ 210,000 | 0.07 KM |