Cornwall Grove, Chiswick, W4
By Chestertons Estate Agents
£ 495,000
Reviews
3 out of 5 stars
Chestertons Estate Agents says ..
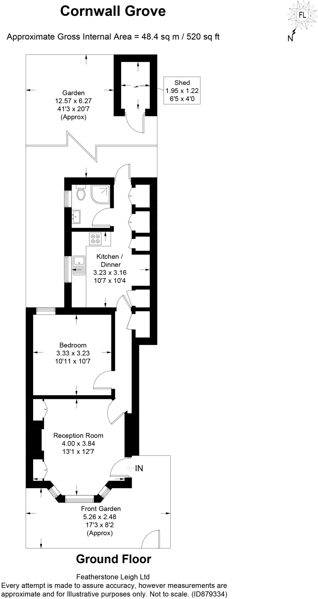
A delightful one bedroom conversion flat situated in this period building on quiet residential road, with a good size reception room, double bedroom, nicely fitted kitchen and bathroom, plus the benefit of a south facing patio rear garden.
Property Oracle says ..
This one bedroom flat is located in the desirable Chiswick area of London, W4. The property benefits from a private garden, which is a rare find for flats in this area. The interior appears well-maintained and modern, with a recently updated kitchen and bathroom. The location is excellent, with good access to public transport and local amenities, including schools and shops. However, the list price of £495,000 seems high compared to the average price per square foot in the area. While the property is in good condition and benefits from a private garden, the overall size of the flat is relatively small. The average price per sqft in the area is £1005, and this property is listed at approximately £950 per sqft. Taking into consideration the average price of properties in the area, this property is priced below average. This could be due to the smaller size of the property. This is a good property for a first-time buyer or someone looking for a small, well-maintained flat in a great location.
Therefore, we give this property 7 / 10. *Disclaimer: This is our option and does constitute a recommendation or financial advice. Do your own research. *
- Price
- 6
- Condition
- 8
- Location
- 9
- Land
- 7
- Bedrooms
- 1
- Bathrooms
- 1
- Sqft (est)
- 520.97
The heatmap indicates the level of crime in the area. The color of the heatmap indicates the crime severity and recency.
Metrics Year-on-Year
- Average area value
- 953,000.00 £Decreased by 11.81 %
- Est sale value
- 349,570.87 £Decreased by 19.45 %
- Average area rental value
- 1,783.00 £/moDecreased by 30.51 %
- Est letting value
- 520.97 £/moUnchanged by 0.00 %
- Est rental Yield
- 2.25 %Decreased by 21.05 %
- Crime Rate
- 7.00 %Unchanged by 0.00 %
Agent Activity
Chestertons Estate Agents created the listing.
Nearby Schools
| Name | Type | Ofsted | Distance |
|---|---|---|---|
| The William Hogarth Primary School | Community School | Good | 0.44 KM |
| Chiswick Children'S Centre | Children's Centre Linked Site | 0.57 KM | |
| St Mary'S Catholic Primary School ,Chiswick | Voluntary Aided School | Good | 0.63 KM |
| Artsed Day School And Sixth Form | Other Independent School | 0.84 KM | |
| Chiswick And Bedford Park Preparatory School | Other Independent School | 0.95 KM |
Images
Nearby Streets
| Name | Average Price | Average Sqft | Distance |
|---|---|---|---|
| Mawson Lane | £ 0 | 0 | 0.00 KM |
| Chiswick Lane South | £ 0 | 0 | 0.00 KM |
| Alkerden Road | £ 0 | 0 | 0.00 KM |
| Wood Street | £ 0 | 0 | 0.00 KM |
| Ingress Street | £ 0 | 0 | 0.00 KM |
Nearby Transport
| Name | NLC | TLC | Distance |
|---|---|---|---|
| Barnes Bridge | 5580 | BNI | 1.83 KM |
| Chiswick | 5583 | CHK | 1.94 KM |
| South Acton | 1452 | SAT | 2.38 KM |
| Acton Central | 1404 | ACC | 2.57 KM |
| Barnes | 5551 | BNS | 2.61 KM |
Nearby Listings
| Address | Price | Type | Score | Distance |
|---|---|---|---|---|
| Cornwall Grove, Chiswick, W4 | £ 495,000 | BUY | 7 / 10 | 0.00 KM |
| Cornwall Grove, Chiswick, London, W4 | £ 1,650,000 | BUY | 8 / 10 | 0.05 KM |
| Eastbury Grove, London, W4 | £ 1,395,000 | BUY | 8 / 10 | 0.07 KM |
| Cornwall Grove, Chiswick, London, W4 | £ 1,600,000 | BUY | 7 / 10 | 0.07 KM |
| Balfern Grove, Chiswick | £ 1,450,000 | BUY | 7 / 10 | 0.07 KM |
Nearby Properties
| Address | Price | Distance |
|---|---|---|
| 41 Cornwall Grove | £ 1,375,000 | 0.03 KM |
| 40 Cornwall Grove | £ 1,252,000 | 0.04 KM |
| 30b Cornwall Grove | £ 250,000 | 0.04 KM |
| 24 Cornwall Grove | £ 580,000 | 0.04 KM |
| 19 Cornwall Grove | £ 1,310,000 | 0.04 KM |