Cowper Terrace, West Moor, Newcastle Upon Tyne
HI

Cowper Terrace, West Moor, Newcastle Upon Tyne

By Hive Estates

£ 180,000

Reviews

3 out of 5 stars

Hive Estates says ..

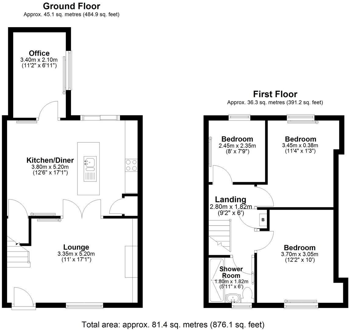
Hive Estates welcomes to the market this beautifully presented and modern four bedroom end of terrace home, ideally located in the popular residential area of West Moor. Finished to a high standard throughout, this spacious family home offers stylish interiors, versatile living spaces, and a low-...

Property Oracle says ..

This property is a 4-bedroom end of terrace house located in West Moor, Newcastle Upon Tyne. The property has been recently renovated to a high standard, with a modern kitchen and bathroom. There is also a small rear garden. The location is good, with nearby schools and transportation links. However, the average house price in the area is significantly higher than the list price of this property, which may indicate that it is undervalued. The property is in excellent condition and appears to be well-maintained.

Therefore, we give this property 6 / 10. *Disclaimer: This is our option and does constitute a recommendation or financial advice. Do your own research. *

Price
8
Condition
9
Location
7
Land
3
Bedrooms
4
Bathrooms
1
Sqft (est)
765.06
Lot (est)
876.18

The heatmap indicates the level of crime in the area. The color of the heatmap indicates the crime severity and recency.

Metrics Year-on-Year

Average area value
911,990.00 £
Increased by 52.54 %
from 597,864.00 £
Est sale value
365,698.68 £
Decreased by 4.59 %
from 383,295.06 £
Average area rental value
1,200.00 £/mo
Decreased by 18.81 %
from 1,478.00 £/mo
Est letting value
0.00 £/mo
Decreased by 100.00 %
from 765.06 £/mo
Est rental Yield
1.58 %
Decreased by 46.80 %
from 2.97 %
Crime Rate
7.00 %
Unchanged by 0.00 %
from 7.00 %

Agent Activity

  • Hive Estates created the listing.

Nearby Schools

NameTypeOfstedDistance
Westmoor Primary SchoolFoundation SchoolOutstanding0.36 KM
Grasmere AcademyAcademy Sponsor LedGood0.94 KM
Benton Dene SchoolFoundation Special SchoolGood0.94 KM
Percy Hedley SchoolNon-maintained Special SchoolOutstanding1.03 KM
Longbenton High SchoolFoundation SchoolRequires improvement1.04 KM

Images

OBP_5802.jpg OBP_5434.jpg OBP_5468.jpg OBP_5657.jpg OBP_5450.jpg OBP_5477.jpg OBP_5491.jpg OBP_5504.jpg OBP_5552.jpg OBP_5559.jpg OBP_5582.jpg OBP_5587.jpg OBP_5604.jpg OBP_5616.jpg OBP_5763.jpg OBP_5455.jpg OBP_5528.jpg OBP_5575.jpg OBP_5687.jpg OBP_5642.jpg OBP_5725.jpg OBP_5717.jpg OBP_5737.jpg OBP_5665.jpg OBP_5668.jpg OBP_5671.jpg OBP_5607.jpg OBP_5613.jpg OBP_5623.jpg OBP_5636.jpg OBP_5699.jpg OBP_5708.jpg OBP_5677.jpg OBP_5681.jpg

Nearby Streets

NameAverage PriceAverage SqftDistance
Holly Avenue £ 000.00 KM
Coniston Close £ 000.00 KM
Station Road £ 140,00000.00 KM
North View £ 000.00 KM
Alford Green £ 000.00 KM

Nearby Transport

NameNLCTLCDistance
Manors7603MAS6.91 KM
Cramlington7579CRM7.14 KM
Newcastle7728NCL8.04 KM
Heworth7766HEW8.76 KM

Nearby Listings

AddressPriceTypeScoreDistance
Cowper Terrace, West Moor, Newcastle Upon Tyne £ 180,000BUY6 / 100.00 KM
Sheldon Court, West Moor, Newcastle upon Tyne, NE12 £ 140,000BUY7 / 100.18 KM
The Limes, West Moor, NE12 £ 325,000BUY6 / 100.18 KM
Kings Road, West Moor, NE12 £ 170,000BUY7 / 100.22 KM
Victoria Court, West Moor, NE12 £ 245,000BUYUnknown0.22 KM

Nearby Properties

AddressPriceDistance
4 Cowper Terrace £ 180,0000.01 KM
3 Cowper Terrace £ 155,0000.01 KM
51 Albert Terrace £ 205,0000.09 KM
3 Albert Terrace £ 88,0000.09 KM
20 Albert Terrace £ 74,9500.09 KM