Bishopthorpe Road, York, North Yorkshire, YO23
By British Homesellers
£ 565,000
Reviews
3 out of 5 stars
British Homesellers says ..
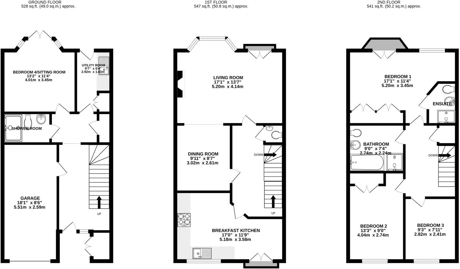
Versatile 3/4-Bedroom Townhouse in Sought-After South Bank Location Located within an exclusive gated development in York’s highly desirable South Bank area, this well-presented 3/4-bedroom townhouse offers flexible living across three floors. Just a short walk from the vibrant B...
Property Oracle says ..
This is a well-presented terraced property located in a sought-after area of York. The property boasts four bedrooms and four bathrooms, making it suitable for families or those who require ample space. The inclusion of a garden and parking facilities adds to its appeal. While the interior is generally well-maintained, some aspects may benefit from modernisation to align with current trends. The property’s location offers convenient access to local amenities, schools, and transportation links, enhancing its desirability. The price is slightly above the local average but reflects the property’s size, condition, and features.
Therefore, we give this property 7 / 10. *Disclaimer: This is our option and does constitute a recommendation or financial advice. Do your own research. *
- Price
- 7
- Condition
- 7
- Location
- 8
- Land
- 6
- Bedrooms
- 4
- Bathrooms
- 4
- Sqft (est)
- 1,327.81
The heatmap indicates the level of crime in the area. The color of the heatmap indicates the crime severity and recency.
Metrics Year-on-Year
- Average area value
- 542,496.00 £Increased by 34.28 %
- Est sale value
- 555,024.58 £Increased by 33.55 %
- Average area rental value
- 1,435.00 £/moIncreased by 6.30 %
- Est letting value
- 1,327.81 £/moUnchanged by 0.00 %
- Est rental Yield
- 3.17 %Decreased by 20.95 %
- Crime Rate
- 1.00 %Unchanged by 0.00 %
Agent Activity
British Homesellers created the listing.
Nearby Schools
| Name | Type | Ofsted | Distance |
|---|---|---|---|
| Knavesmire Primary School | Academy Converter | 0.40 KM | |
| Knavesmire Children'S Centre | Children's Centre | 0.40 KM | |
| Millthorpe School | Academy Converter | Good | 0.91 KM |
| Oneschool Global York Campus | Other Independent School | 1.01 KM | |
| York Steiner School | Other Independent School | Inadequate | 1.05 KM |
Images
Nearby Streets
| Name | Average Price | Average Sqft | Distance |
|---|---|---|---|
| Bishopthorpe Road | £ 0 | 0 | 0.00 KM |
| Drake Street | £ 180,000 | 0 | 0.00 KM |
| Bishopgate Street | £ 0 | 0 | 0.00 KM |
| Nunnery Lane | £ 0 | 0 | 0.00 KM |
| Bishopthorpegate Street | £ 230,000 | 0 | 0.00 KM |
Nearby Transport
| Name | NLC | TLC | Distance |
|---|---|---|---|
| York | 8263 | YRK | 1.95 KM |
| Poppleton | 8254 | POP | 7.83 KM |
Nearby Listings
| Address | Price | Type | Score | Distance |
|---|---|---|---|---|
| Bishopthorpe Road, York, North Yorkshire, YO23 | £ 565,000 | BUY | 7 / 10 | 0.00 KM |
| Bishopthorpe Road, York, North Yorkshire, YO23 | £ 310,000 | BUY | 6 / 10 | 0.03 KM |
| Terry's Mews, Bishopthorpe Road, York | £ 225,000 | BUY | 6 / 10 | 0.03 KM |
| Bishopthorpe Road, York | £ 227,500 | BUY | Unknown | 0.04 KM |
| Bishopthorpe Road, York | £ 475,000 | BUY | 6 / 10 | 0.06 KM |
Nearby Properties
| Address | Price | Distance |
|---|---|---|
| 38 Joseph Terry Grove | £ 555,000 | 0.13 KM |
| 2 Joseph Terry Grove | £ 270,000 | 0.13 KM |
| 46 Joseph Terry Grove | £ 499,995 | 0.13 KM |
| 4a St Chads Wharf | £ 249,995 | 0.16 KM |
| 6b St Chads Wharf | £ 275,000 | 0.16 KM |