Gunnersbury Avenue, W5
GO

Gunnersbury Avenue, W5

By Go View London

£ 597,500

Reviews

3 out of 5 stars

Go View London says ..

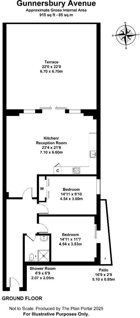
A stunning recently build (2021) well portioned two-bedroom apartment close to Ealing Common measuring over 900 sq. ft. The apartment is situated to the rear of an exclusive private development constructed in 2021 and benefiting from the remaining term of the 10-year new home warranty. ...

Property Oracle says ..

This is a modern two-bedroom flat on Gunnersbury Avenue in Ealing. The property benefits from a shared garden and appears to be in good condition, with modern fixtures and fittings. The location is well-connected, with multiple transportation options and schools nearby. The price seems reasonable for the area and the property type. The flat offers a good balance of indoor and outdoor space, making it suitable for families or professionals.

Therefore, we give this property 7 / 10. *Disclaimer: This is our option and does constitute a recommendation or financial advice. Do your own research. *

Price
7
Condition
8
Location
7
Land
7
Bedrooms
2
Bathrooms
1
Sqft (est)
1,399.09

The heatmap indicates the level of crime in the area. The color of the heatmap indicates the crime severity and recency.

Metrics Year-on-Year

Average area value
683,580.00 £
Decreased by 10.48 %
from 763,602.00 £
Est sale value
1,095,487.47 £
Increased by 44.46 %
from 758,306.78 £
Average area rental value
2,333.00 £/mo
Increased by 12.11 %
from 2,081.00 £/mo
Est letting value
2,798.18 £/mo
Increased by 100.00 %
from 1,399.09 £/mo
Est rental Yield
4.10 %
Increased by 25.38 %
from 3.27 %
Crime Rate
2.00 %
Unchanged by 0.00 %
from 2.00 %

Agent Activity

  • Go View London created the listing.

Nearby Schools

NameTypeOfstedDistance
Ark Acton AcademyAcademy Sponsor Led0.98 KM
Blooming Tree Primary SchoolOther Independent Special School1.20 KM
The Ellen Wilkinson School For GirlsFoundation SchoolOutstanding1.27 KM
Eagle Park Independent SchoolOther Independent Special School1.34 KM
International School Of LondonOther Independent SchoolGood1.34 KM

Images

GV- 34 Gunnersbury Ave- Garden (1).jpg Gv- F2 - 34 Gunnersbury Ave (1).jpg Gv- F2 - 34 Gunnersbury Ave (6).jpg Gv- F2 - 34 Gunnersbury Ave (7).jpg Gv- F2 - 34 Gunnersbury Ave (11).jpg Gv- F2 - 34 Gunnersbury Ave (14).jpg Gv- F2 - 34 Gunnersbury Ave (16).jpg Gv- F2 - 34 Gunnersbury Ave (20).jpg Gv- F2 - 34 Gunnersbury Ave (19).jpg GV- 34 Gunnersbury Ave- Garden (3).jpg GV- 34 Gunnersbury Ave- Garden (8).jpg Gv- F2 - 34 Gunnersbury Ave (9).jpg Gv- F2 - 34 Gunnersbury Ave (13).jpg Gv- F2 - 34 Gunnersbury Ave (15).jpg Gv- F2 - 34 Gunnersbury Ave (17).jpg

Nearby Streets

NameAverage PriceAverage SqftDistance
Brook Close £ 549,95000.00 KM
Pope's Lane £ 649,97500.00 KM
Hamilton Court £ 650,00000.00 KM
Queens Drive £ 475,00000.00 KM
Station Road £ 462,50000.00 KM

Nearby Transport

NameNLCTLCDistance
Ealing Broadway3190EAL1.67 KM
Kew Bridge5593KWB1.82 KM
Gunnersbury5588GUN2.24 KM
South Acton1452SAT2.28 KM
Acton Main Line3000AML2.86 KM

Nearby Listings

AddressPriceTypeScoreDistance
Gunnersbury Avenue, W5 £ 597,500BUY7 / 100.00 KM
Gunnersbury Avenue, Ealing, W5 £ 597,500BUY7 / 100.00 KM
Gunnersbury Avenue, Ealing, W5 £ 399,950BUY7 / 100.00 KM
Gunnersbury Avenue, Ealing £ 725,000BUY7 / 100.01 KM
Gunnersbury Avenue, Ealing £ 465,000BUY6 / 100.01 KM

Nearby Properties

AddressPriceDistance
18a Gunnersbury Avenue £ 72,0000.07 KM
18e Gunnersbury Avenue £ 270,0000.07 KM
28 Gunnersbury Avenue £ 350,0000.07 KM
34 Gunnersbury Avenue £ 1,140,0000.10 KM
24 Gunnersbury Avenue £ 750,0000.10 KM