Extons Place, King's Lynn, Norfolk, PE30
By The Norfolk Agents
£ 185,000
Reviews
2 out of 5 stars
The Norfolk Agents says ..
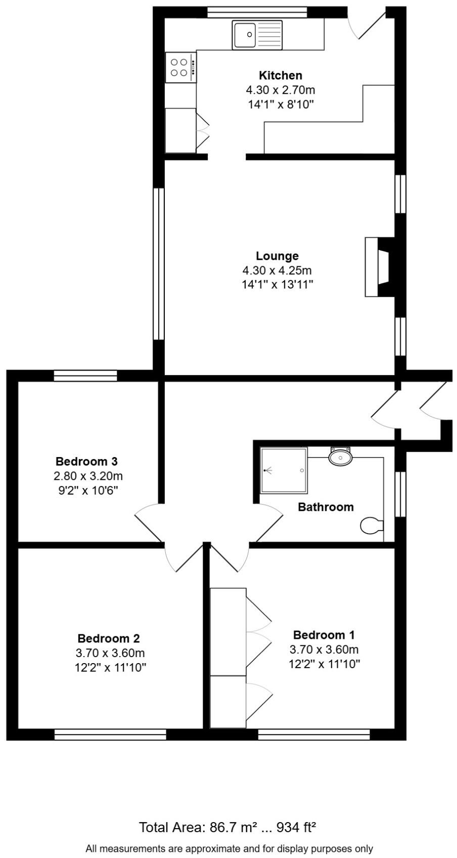
This three bedroom semi detached is available with no onward chain and is positioned close to the town centre on the popular Extons Place.
Property Oracle says ..
This property is a 3-bedroom, 1-bathroom house located in King’s Lynn, Norfolk. The property is listed at £185,000 and has a plot size of 934 sqft. The house is in need of some modernisation and updating, as seen in the provided photographs. The kitchen and bathrooms appear dated, and the carpets throughout the house look worn. The garden is present but requires attention. The location is convenient, with nearby schools and transport links. However, the average house price in the area is significantly higher than the list price. Considering the condition, the price may be slightly lower than expected, but this is balanced out by the need for modernisation.
Therefore, we give this property 5 / 10. *Disclaimer: This is our option and does constitute a recommendation or financial advice. Do your own research. *
- Price
- 6
- Condition
- 4
- Location
- 7
- Land
- 5
- Bedrooms
- 3
- Bathrooms
- 1
- Sqft (est)
- 684.60
- Lot (est)
- 934.00
The heatmap indicates the level of crime in the area. The color of the heatmap indicates the crime severity and recency.
Metrics Year-on-Year
- Average area value
- 245,074.00 £Decreased by 15.93 %
- Est sale value
- 160,881.00 £Decreased by 37.50 %
- Average area rental value
- 1,254.00 £/moDecreased by 5.43 %
- Est letting value
- 684.60 £/moUnchanged by 0.00 %
- Est rental Yield
- 6.14 %Increased by 12.45 %
- Crime Rate
- 1.00 %Unchanged by 0.00 %
Agent Activity
The Norfolk Agents created the listing.
Nearby Schools
| Name | Type | Ofsted | Distance |
|---|---|---|---|
| King'S Lynn Academy | Academy Sponsor Led | Requires improvement | 0.47 KM |
| King Edward Vii Academy | Academy Sponsor Led | 0.90 KM | |
| The College Of West Anglia | Further Education | Good | 0.95 KM |
| King'S Oak Academy | Academy Converter | 1.03 KM | |
| Howard Junior School | Academy Converter | Good | 1.03 KM |
Images
Nearby Streets
| Name | Average Price | Average Sqft | Distance |
|---|---|---|---|
| Exton's Gardens | £ 270,000 | 0 | 0.00 KM |
| Bailey Place | £ 167,500 | 0 | 0.00 KM |
| Leicester Avenue | £ 0 | 0 | 0.00 KM |
| Hospital Walk | £ 0 | 0 | 0.00 KM |
| Cemetery Drive | £ 0 | 0 | 0.00 KM |
Nearby Transport
| Name | NLC | TLC | Distance |
|---|---|---|---|
| Kings Lynn | 7115 | KLN | 1.35 KM |
| Watlington | 7057 | WTG | 9.10 KM |
Nearby Listings
| Address | Price | Type | Score | Distance |
|---|---|---|---|---|
| Extons Place, King's Lynn, Norfolk, PE30 | £ 185,000 | BUY | 5 / 10 | 0.00 KM |
| Extons Place, King's Lynn | £ 165,000 | BUY | 5 / 10 | 0.05 KM |
| Fayers Terrace, King's Lynn | £ 185,000 | BUY | Unknown | 0.07 KM |
| Kings Avenue, King's Lynn | £ 210,000 | BUY | 7 / 10 | 0.07 KM |
| Kings Avenue, King's Lynn | £ 175,000 | BUY | 6 / 10 | 0.08 KM |
Nearby Properties
| Address | Price | Distance |
|---|---|---|
| 1a Extons Place | £ 135,000 | 0.03 KM |
| 7 Extons Place | £ 138,000 | 0.03 KM |
| 1 Extons Place | £ 240,000 | 0.03 KM |
| 17 Extons Place | £ 269,995 | 0.03 KM |
| 13 Extons Place | £ 82,000 | 0.05 KM |