SH
Bulkington Road, Bedworth
By Sheldon Bosley Knight
£ 160,000
Reviews
3 out of 5 stars
Sheldon Bosley Knight says ..
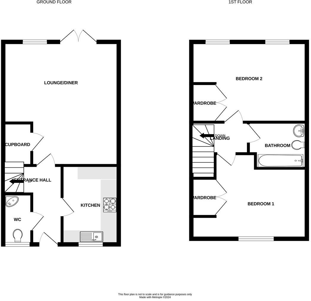
* INVESTORS ONLY * Sheldon Bosley Knights are pleased to offer to market this two bedroom end terrace home on Bulkington Road, Bedworth, within walking distance to the town centre and train station, benefitting from gas central heating and double glazing throughout. In brief the home comprises of...
Property Oracle says ..
Therefore, we give this property 7 / 10. *Disclaimer: This is our option and does constitute a recommendation or financial advice. Do your own research. *
- Price
- 9
- Condition
- 7
- Location
- 7
- Land
- 6
- Bedrooms
- 2
- Bathrooms
- 1
- Sqft (est)
- 868.00
The heatmap indicates the level of crime in the area. The color of the heatmap indicates the crime severity and recency.
Metrics Year-on-Year
- Average area value
- 371,430.00 £Increased by 11.76 %
- Est sale value
- 476,532.00 £Increased by 82.39 %
- Average area rental value
- 1,951.00 £/moDecreased by 12.94 %
- Est letting value
- 1,736.00 £/moUnchanged by 0.00 %
- Est rental Yield
- 6.30 %Decreased by 22.13 %
- Crime Rate
- 9.00 %Unchanged by 0.00 %
from 332,337.00 £
from 261,268.00 £
from 2,241.00 £/mo
from 1,736.00 £/mo
from 8.09 %
from 9.00 %
Agent Activity
Sheldon Bosley Knight created the listing.
Nearby Schools
| Name | Type | Ofsted | Distance |
|---|---|---|---|
| All Saints Bedworth Cofe Academy | Academy Converter | 0.28 KM | |
| St Michaels Children'S Centre (Formerly Known As Bedworth Early Years Centre) | Children's Centre | 0.47 KM | |
| Nicholas Chamberlaine School | Academy Sponsor Led | Requires improvement | 0.49 KM |
| St Michael'S Church Of England Academy | Academy Sponsor Led | Good | 0.56 KM |
| St Francis Catholic Academy | Academy Converter | Good | 0.82 KM |
Images
Nearby Streets
| Name | Average Price | Average Sqft | Distance |
|---|---|---|---|
| Byron Avenue | £ 210,000 | 0 | 0.00 KM |
| Milton Close | £ 0 | 0 | 0.00 KM |
| Shakespeare Avenue | £ 0 | 0 | 0.00 KM |
| Chapel Street | £ 0 | 0 | 0.00 KM |
| Edward Road | £ 0 | 0 | 0.00 KM |
Nearby Transport
| Name | NLC | TLC | Distance |
|---|---|---|---|
| Bedworth | 1165 | BEH | 0.41 KM |
| Bermuda Park | 6543 | BEP | 2.69 KM |
| Coventry Arena | 7416 | CAA | 4.82 KM |
| Nuneaton | 1077 | NUN | 5.30 KM |
Nearby Listings
| Address | Price | Type | Score | Distance |
|---|---|---|---|---|
| Bulkington Road, Bedworth | £ 160,000 | BUY | 7 / 10 | 0.00 KM |
| Bulkington Road, Bedworth | £ 170,000 | BUY | 6 / 10 | 0.00 KM |
| Bulkington Road, Bedworth | £ 169,950 | BUY | 7 / 10 | 0.06 KM |
| Bulkington Road, Bedworth, CV12 | £ 160,000 | BUY | 5 / 10 | 0.10 KM |
| Hatters Court, Bedworth, Warwickshire, CV12 | £ 245,000 | BUY | 7 / 10 | 0.10 KM |
Nearby Properties
| Address | Price | Distance |
|---|---|---|
| 96 Bulkington Road | £ 114,000 | 0.06 KM |
| 102 Bulkington Road | £ 37,995 | 0.06 KM |
| 104 Bulkington Road | £ 80,000 | 0.06 KM |
| 88 Bulkington Road | £ 115,000 | 0.06 KM |
| 112 Bulkington Road | £ 113,000 | 0.06 KM |