Addington Road, South Croydon, CR2
By Bairstow Eves
£ 265,000
Reviews
3 out of 5 stars
Bairstow Eves says ..
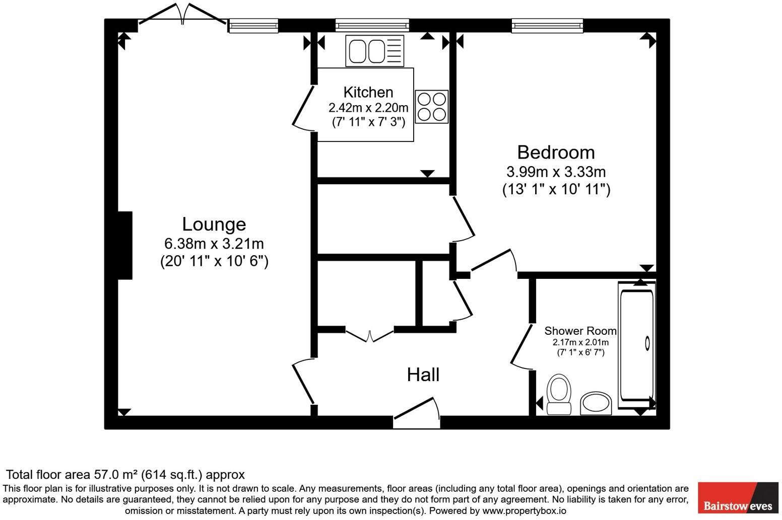
************* CHAIN FREE ************* A one bedroom ground floor retirement flat offered for sale with no onward chain and being well maintained by the present vendors. The property provides it own private balcony overlooking the beautifully maintained communal gardens and the property...
Property Oracle says ..
This is a well-presented flat in a sought-after area of South Croydon. The property benefits from modern interiors, access to communal gardens, and proximity to local amenities. While it’s a one-bedroom flat, the square footage is a decent size. The price appears competitive for the location and condition.
Therefore, we give this property 7 / 10. *Disclaimer: This is our option and does constitute a recommendation or financial advice. Do your own research. *
- Price
- 7
- Condition
- 8
- Location
- 7
- Land
- 6
- Bedrooms
- 1
- Bathrooms
- 1
- Sqft (est)
- 613.54
The heatmap indicates the level of crime in the area. The color of the heatmap indicates the crime severity and recency.
Metrics Year-on-Year
- Average area value
- 641,395.00 £Decreased by 7.95 %
- Est sale value
- 403,709.32 £Increased by 34.84 %
- Average area rental value
- 2,243.00 £/moIncreased by 14.56 %
- Est letting value
- 1,227.08 £/moIncreased by 100.00 %
- Est rental Yield
- 4.20 %Increased by 24.63 %
- Crime Rate
- 4.00 %Unchanged by 0.00 %
Agent Activity
Bairstow Eves created the listing.
Nearby Schools
| Name | Type | Ofsted | Distance |
|---|---|---|---|
| Gresham Primary School | Community School | Good | 0.58 KM |
| Sanderstead Children'S Centre | Children's Centre Linked Site | 0.94 KM | |
| Atwood Primary Academy | Academy Converter | 1.03 KM | |
| Croydon High School | Other Independent School | 1.45 KM | |
| Ridgeway Primary School | Community School | Good | 1.48 KM |
Images
Nearby Streets
| Name | Average Price | Average Sqft | Distance |
|---|---|---|---|
| Mountwood Close | £ 312,143 | 0 | 0.00 KM |
| Ferns Close | £ 578,950 | 0 | 0.00 KM |
| Addington Road | £ 305,865 | 0 | 0.00 KM |
| Day's Acre | £ 0 | 0 | 0.00 KM |
| Pear Tree Close | £ 425,000 | 0 | 0.00 KM |
Nearby Transport
| Name | NLC | TLC | Distance |
|---|---|---|---|
| Sanderstead | 5433 | SNR | 2.46 KM |
| Riddlesdown | 5432 | RDD | 2.83 KM |
| Purley Oaks | 5430 | PUO | 2.92 KM |
| Whyteleafe | 5396 | WHY | 3.17 KM |
| Upper Warlingham | 5391 | UWL | 3.26 KM |
Nearby Listings
| Address | Price | Type | Score | Distance |
|---|---|---|---|---|
| Addington Road, South Croydon, CR2 | £ 265,000 | BUY | 7 / 10 | 0.00 KM |
| Addington Road, South Croydon | £ 475,000 | BUY | 5 / 10 | 0.05 KM |
| Doble Court, Addington Road, Sanderstead | £ 500,000 | BUY | 7 / 10 | 0.06 KM |
| Addington Road | £ 730,000 | BUY | 8 / 10 | 0.07 KM |
| Addington Road, Sanderstead | £ 686,000 | BUY | 6 / 10 | 0.07 KM |
Nearby Properties
| Address | Price | Distance |
|---|---|---|
| 7 Harbledown Road | £ 353,000 | 0.14 KM |
| 9 Harbledown Road | £ 620,000 | 0.14 KM |
| 11 Harbledown Road | £ 525,000 | 0.14 KM |
| 8 Harbledown Road | £ 425,000 | 0.14 KM |
| 30 Onslow Gardens | £ 705,000 | 0.24 KM |