Stopford Avenue, Blackpool, FY2
By Unique Estate Agency Ltd
£ 110,000
Reviews
2 out of 5 stars
Unique Estate Agency Ltd says ..
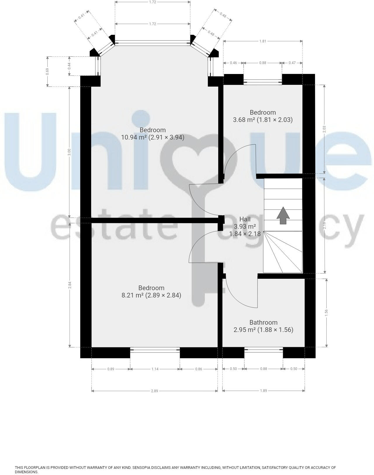
THREE Bedroom, Mid Terrace Family Home, Situated In A Great Location, Close To Amenities, To Include Bispham Village & Plymouth Road Shops, Choice of Schools With Excellent Transport Links Nearby! Offering Extended kitchen / Breakfast Room, Two Reception Rooms, Modern Family Bathroom & En...
Property Oracle says ..
This property is a three-bedroom semi-detached house located in Blackpool, Lancashire. The property benefits from being close to local schools such as Moor Park Primary School (0.89 KM) and Layton Primary School (0.98 KM), both with good Ofsted ratings. Layton train station is also within walking distance (0.41 KM). The property itself appears to be in need of some modernisation and updating. The kitchen and bathroom appear dated, and some minor repairs may be needed. The garden is present but requires significant attention. The list price of £110,000 is below the average price for the area (£222,105), however, this is likely due to the condition of the property and the need for modernisation. Considering the condition, the price seems reasonable, although a buyer should factor in renovation costs. The lack of plot size information makes it difficult to accurately assess the land value.
Therefore, we give this property 5 / 10. *Disclaimer: This is our option and does constitute a recommendation or financial advice. Do your own research. *
- Price
- 6
- Condition
- 5
- Location
- 7
- Land
- 3
- Bedrooms
- 3
- Bathrooms
- 1
- Sqft (est)
- 319.80
The heatmap indicates the level of crime in the area. The color of the heatmap indicates the crime severity and recency.
Metrics Year-on-Year
- Average area value
- 290,444.00 £Increased by 45.57 %
- Est sale value
- 105,534.00 £Increased by 74.60 %
- Average area rental value
- 1,060.00 £/moIncreased by 29.74 %
- Est letting value
- 319.80 £/mo
- Est rental Yield
- 4.38 %Decreased by 10.79 %
- Crime Rate
- 7.00 %Unchanged by 0.00 %
Agent Activity
Unique Estate Agency Ltd created the listing.
Nearby Schools
| Name | Type | Ofsted | Distance |
|---|---|---|---|
| Moor Park Primary School | Community School | Good | 0.89 KM |
| Layton Primary School | Community School | Outstanding | 0.98 KM |
| Unity Academy Blackpool | Academy Sponsor Led | Good | 1.16 KM |
| Unity College Blackpool Children'S Centre | Children's Centre Linked Site | 1.21 KM | |
| Grange Park Children'S Centre | Children's Centre | 1.25 KM |
Images
Nearby Streets
| Name | Average Price | Average Sqft | Distance |
|---|---|---|---|
| Depot Road | £ 0 | 0 | 0.00 KM |
| Holcombe Road | £ 0 | 0 | 0.00 KM |
| Greenlands Road | £ 0 | 0 | 0.00 KM |
| Greenbanks | £ 0 | 0 | 0.00 KM |
| Regency Gardens | £ 227,500 | 0 | 0.00 KM |
Nearby Transport
| Name | NLC | TLC | Distance |
|---|---|---|---|
| Layton (Lancs) | 2669 | LAY | 0.41 KM |
| Blackpool North | 2739 | BPN | 2.88 KM |
| Poulton-Le-Fylde | 2671 | PFY | 4.44 KM |
| Blackpool South | 2740 | BPS | 4.96 KM |
| Blackpool Pleasure Beach | 2738 | BPB | 6.27 KM |
Nearby Listings
| Address | Price | Type | Score | Distance |
|---|---|---|---|---|
| Stopford Avenue, Blackpool, FY2 | £ 110,000 | BUY | 5 / 10 | 0.00 KM |
| Maurice Grove, Blackpool, Lancashire, FY2 | £ 145,000 | BUY | 7 / 10 | 0.09 KM |
| Broderick Avenue, Bispham, FY2 0QJ | £ 139,950 | BUY | 7 / 10 | 0.11 KM |
| 3 Broderick Avenue, Blackpool, Lancashire, FY2 | £ 110,000 | BUY | 6 / 10 | 0.11 KM |
| Stopford Avenue, Bispham | £ 94,950 | BUY | 6 / 10 | 0.16 KM |
Nearby Properties
| Address | Price | Distance |
|---|---|---|
| 10 Stopford Avenue | £ 125,000 | 0.02 KM |
| 13 Stopford Avenue | £ 149,500 | 0.02 KM |
| 24 Stopford Avenue | £ 100,000 | 0.02 KM |
| 3 Stopford Avenue | £ 114,000 | 0.02 KM |
| 15 Stopford Avenue | £ 116,000 | 0.02 KM |