Rosehill Terrace, Coltham Fields, Cheltenham
HM

Rosehill Terrace, Coltham Fields, Cheltenham

By HMT Sales & Lettings

£ 245,000

Reviews

2 out of 5 stars

HMT Sales & Lettings says ..

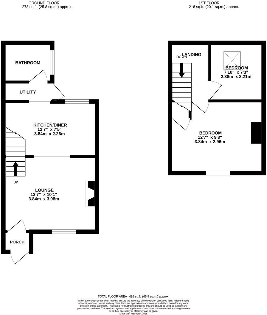
Located at the top of a quiet lane in the sought-after Charlton Kings area of Cheltenham, this delightful two-bedroom mid-terraced home presents an ideal opportunity for first-time buyers, downsizers, or investors. The ground floor comprises an entrance porch, a cosy lounge featuring a c...

Property Oracle says ..

This is a two-bedroom terraced property located in the Battledown area of Cheltenham. The property is listed for £245,000. It is located near local schools and transport links. The property requires modernisation. It has a small outdoor area.

Therefore, we give this property 5 / 10. *Disclaimer: This is our option and does constitute a recommendation or financial advice. Do your own research. *

Price
7
Condition
5
Location
7
Land
4
Bedrooms
2
Bathrooms
1
Sqft (est)
466.60

The heatmap indicates the level of crime in the area. The color of the heatmap indicates the crime severity and recency.

Metrics Year-on-Year

Average area value
420,000.00 £
Decreased by 31.51 %
from 613,193.00 £
Est sale value
166,109.60 £
Decreased by 29.50 %
from 235,633.00 £
Average area rental value
2,813.00 £/mo
Increased by 49.15 %
from 1,886.00 £/mo
Est letting value
933.20 £/mo
Increased by 100.00 %
from 466.60 £/mo
Est rental Yield
8.04 %
Increased by 117.89 %
from 3.69 %
Crime Rate
3.00 %
Unchanged by 0.00 %
from 3.00 %

Agent Activity

  • HMT Sales & Lettings created the listing.

Nearby Schools

NameTypeOfstedDistance
Holy Apostles' Church Of England Primary SchoolVoluntary Aided SchoolGood0.59 KM
Berkhampstead SchoolOther Independent School0.90 KM
St Edward'S SchoolOther Independent School0.91 KM
St Edward'S Preparatory SchoolOther Independent School1.06 KM
St John'S Church Of England Primary SchoolVoluntary Controlled SchoolGood1.06 KM

Images

user_edited_photo-518de7a6_user-edited-fafd8dac-37 d67e872b-CSC_6629.JPG 68276ddb-CSC_6633.JPG 09188801-CSC_6631.JPG 9eb897f9-CSC_6635.JPG 303588b4-CSC_6645.JPG user_edited_photo-545eb7ad_user-edited-0782b067-3e 19a9a972-CSC_6638.JPG user_edited_photo-10433b4d_user-edited-3382178e-a2

Nearby Streets

NameAverage PriceAverage SqftDistance
Battledown Courtyard £ 000.00 KM
Roosevelt Avenue £ 000.00 KM
Old Bath Road £ 612,50000.00 KM
Eldon Avenue £ 000.00 KM
Oxford Walk £ 575,00000.00 KM

Nearby Transport

NameNLCTLCDistance
Cheltenham Spa4731CNM4.34 KM

Nearby Listings

AddressPriceTypeScoreDistance
Rosehill Terrace, Coltham Fields, Cheltenham £ 245,000BUY5 / 100.00 KM
Coltham Fields, Cheltenham, Gloucestershire £ 325,000BUYUnknown0.07 KM
Rosehill Street, Cheltenham £ 400,000BUY6 / 100.08 KM
Rosehill Street, Cheltenham, GL52 £ 300,000BUY6 / 100.11 KM
Rosehill Street, CHELTENHAM, Gloucestershire, GL52 £ 315,000BUY6 / 100.12 KM

Nearby Properties

AddressPriceDistance
6 Coltham Fields £ 270,0000.07 KM
7 Coltham Fields £ 246,5000.07 KM
1 Coltham Fields £ 205,0000.07 KM
5 Coltham Fields £ 147,0000.07 KM
18 Rosehill Street £ 323,5000.12 KM