James Hayward says ..
James Hayward are delighted to offer, this very appealing ground floor flat that offers good sized modern living space.. This beautifully presented property boasts a spacious modern kitchen that seamlessly flows into a Mediterranean-style garden, complete with a decked seating area and pergola - ...
Property Oracle says ..
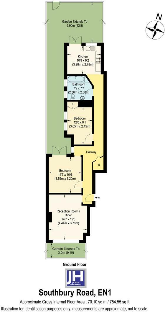
This two-bedroom ground floor flat on Southbury Road, Enfield, is presented in good condition, showcasing a modern and well-maintained interior. The kitchen and bathroom have undergone recent upgrades, resulting in a contemporary feel. The property’s location offers convenient access to Enfield Town’s amenities, including transport links (Enfield Town Overground station) and several schools rated ‘Good’ by Ofsted. The inclusion of a Mediterranean-style garden with decking adds to the property’s appeal, although the overall size of the garden appears to be relatively modest. While the list price appears to be within the local market range based on some provided nearby sale data, it’s difficult to ascertain true value for money definitively due to the lack of consistent sqft data for comparable properties in the immediate vicinity.
Therefore, we give this property 6 / 10. *Disclaimer: This is our option and does constitute a recommendation or financial advice. Do your own research. *
- Price
- 7
- Condition
- 8
- Location
- 7
- Land
- 4
- Bedrooms
- 2
- Bathrooms
- 1
- Sqft (est)
- 754.55
The heatmap indicates the level of crime in the area. The color of the heatmap indicates the crime severity and recency.
Metrics Year-on-Year
- Average area value
- 428,000.00 £Decreased by 5.78 %
- Est sale value
- 420,284.35 £Increased by 22.15 %
- Average area rental value
- 1,899.00 £/moIncreased by 1.12 %
- Est letting value
- 1,509.10 £/moIncreased by 100.00 %
- Est rental Yield
- 5.32 %Increased by 7.26 %
- Crime Rate
- 13.00 %Unchanged by 0.00 %
Agent Activity
James Hayward created the listing.
Nearby Schools
| Name | Type | Ofsted | Distance |
|---|---|---|---|
| George Spicer Primary School | Community School | Good | 0.53 KM |
| St Andrew'S Cofe Primary School | Voluntary Aided School | Good | 0.80 KM |
| Silverways School | Other Independent Special School | 0.96 KM | |
| Bush Hill Park Children'S Centre | Children's Centre | 1.02 KM | |
| Chace Community School | Community School | Requires improvement | 1.04 KM |
Images
Nearby Streets
| Name | Average Price | Average Sqft | Distance |
|---|---|---|---|
| Pemberton Court | £ 340,000 | 0 | 0.00 KM |
| Mafeking Road | £ 500,000 | 0 | 0.00 KM |
| Cecil Avenue | £ 0 | 0 | 0.00 KM |
| Woodfield Close | £ 0 | 0 | 0.00 KM |
| Clydach Road | £ 0 | 0 | 0.00 KM |
Nearby Transport
| Name | NLC | TLC | Distance |
|---|---|---|---|
| Enfield Town | 6959 | ENF | 0.73 KM |
| Bush Hill Park | 6913 | BHK | 1.25 KM |
| Enfield Chase | 6010 | ENC | 1.99 KM |
| Southbury | 6947 | SBU | 2.28 KM |
| Gordon Hill | 6028 | GDH | 2.72 KM |
Nearby Listings
| Address | Price | Type | Score | Distance |
|---|---|---|---|---|
| Southbury Road, London, EN1 | £ 309,995 | BUY | Unknown | 0.04 KM |
| Ladysmith Road, Enfield | £ 350,000 | BUY | 7 / 10 | 0.05 KM |
| Southbury Road, Enfield | £ 350,000 | BUY | 7 / 10 | 0.09 KM |
| Pemberton Court, EN1 | £ 325,000 | BUY | 7 / 10 | 0.09 KM |
| Stanley Road, Enfield | £ 350,000 | BUY | Unknown | 0.10 KM |
Nearby Properties
| Address | Price | Distance |
|---|---|---|
| 48a Southbury Road | £ 220,000 | 0.04 KM |
| 68 Southbury Road | £ 355,000 | 0.04 KM |
| 82 Southbury Road | £ 460,000 | 0.04 KM |
| 44 Southbury Road | £ 240,000 | 0.04 KM |
| 42 Southbury Road | £ 374,995 | 0.04 KM |