Kings Road, Kingston Upon Thames
By Gibson Lane
£ 1,050,000
Reviews
3 out of 5 stars
Gibson Lane says ..
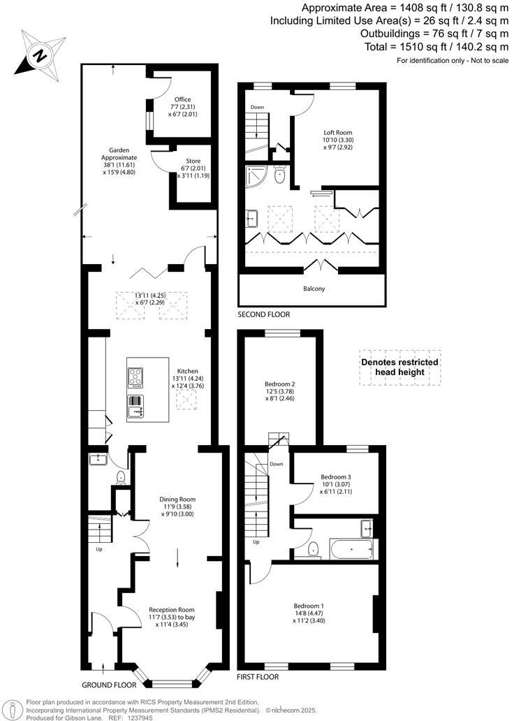
Situated on the prestigious Kings Road, this exquisite home offers a remarkable blend of modern living and spacious accommodation in excess of 1500sqft (including office) arranged over three floors. Boasting an incredibly high specification and finish throughout, the property has been completely...
Property Oracle says ..
This four-bedroom, two-bathroom property located on Kings Road in Kingston upon Thames presents a compelling proposition for buyers. The images showcase a stylishly renovated home with a modern kitchen, updated bathrooms and an attractive, family-friendly layout. The location is key, with proximity to highly-rated primary schools and Kingston station making it particularly attractive to families. While specific square footage isn’t provided, the property’s features and condition place it firmly in the upper echelon of properties in the surrounding area. The garden, also visible in the photos, provides valuable outdoor space. The asking price of £1,050,000 appears consistent with comparable properties in this area, particularly when considering its modern, renovated state and prime location. While further details such as precise plot size and internal floor plans would enhance the assessment, the information presented suggests this is a desirable and potentially strong investment in the Kingston property market.
Therefore, we give this property 7 / 10. *Disclaimer: This is our option and does constitute a recommendation or financial advice. Do your own research. *
- Price
- 7
- Condition
- 9
- Location
- 8
- Land
- 6
- Bedrooms
- 4
- Bathrooms
- 2
The heatmap indicates the level of crime in the area. The color of the heatmap indicates the crime severity and recency.
Metrics Year-on-Year
- Average area value
- 669,998.00 £Increased by 0.45 %
- Average area rental value
- 2,375.00 £/moIncreased by 1.37 %
- Est rental Yield
- 4.25 %Increased by 0.71 %
- Crime Rate
- 3.00 %Unchanged by 0.00 %
Agent Activity
Gibson Lane created the listing.
Nearby Schools
| Name | Type | Ofsted | Distance |
|---|---|---|---|
| St Agatha'S Catholic Primary School | Academy Converter | Good | 0.38 KM |
| North Kingston Children'S Centre | Children's Centre | 0.39 KM | |
| Latchmere School | Academy Converter | Good | 0.39 KM |
| St Luke'S Cofe Primary School | Foundation School | Outstanding | 0.44 KM |
| Alexandra Primary School | Community School | Requires improvement | 0.76 KM |
Images
Nearby Streets
| Name | Average Price | Average Sqft | Distance |
|---|---|---|---|
| Wych Elm Close | £ 0 | 0 | 0.00 KM |
| David Twigg Close | £ 0 | 0 | 0.00 KM |
| St Albans Road | £ 1,350,000 | 0 | 0.00 KM |
| Studland Road | £ 1,650,000 | 0 | 0.00 KM |
| Bertram Road | £ 1,950,000 | 0 | 0.00 KM |
Nearby Transport
| Name | NLC | TLC | Distance |
|---|---|---|---|
| Kingston | 5565 | KNG | 1.02 KM |
| Norbiton | 5568 | NBT | 1.38 KM |
| Hampton Wick | 5589 | HMW | 2.05 KM |
| Berrylands | 5581 | BRS | 2.71 KM |
| Surbiton | 5571 | SUR | 3.14 KM |
Nearby Listings
| Address | Price | Type | Score | Distance |
|---|---|---|---|---|
| Kings Road, Kingston Upon Thames | £ 1,050,000 | BUY | 7 / 10 | 0.00 KM |
| May Bate Avenue, Kingston Upon Thames | £ 550,000 | BUY | 6 / 10 | 0.03 KM |
| Kings Road, Kingston Upon Thames | £ 1,100,000 | BUY | 8 / 10 | 0.04 KM |
| Richmond Park Road, Kingston Upon Thames | £ 417,000 | BUY | 7 / 10 | 0.07 KM |
| Richmond Park Road, Kingston Upon Thames, KT2 | £ 750,000 | BUY | 7 / 10 | 0.08 KM |
Nearby Properties
| Address | Price | Distance |
|---|---|---|
| 172 Kings Road | £ 805,000 | 0.01 KM |
| 148 Kings Road | £ 378,000 | 0.02 KM |
| 176 Kings Road | £ 265,500 | 0.02 KM |
| 158 Kings Road | £ 876,500 | 0.02 KM |
| 134 Kings Road | £ 578,500 | 0.02 KM |