Exbourne, Okehampton, Devon
By Stevens Estate Agents
£ 260,000
Reviews
3 out of 5 stars
Stevens Estate Agents says ..
Welcome to this brand new semi-detached house, nestled on the edge of the highly popular village Exbourne and with far-reaching countryside views. This exceptional home boasts parking and features underfloor heating powered by an air source heat pump, making it highly energy efficient. T...
Property Oracle says ..
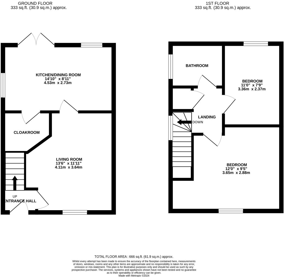
The property is a 2 bedroom, 1 bathroom house located in Exbourne, Okehampton, Devon. It is a new build property with a modern design. The property has a small garden and is situated in a rural location. The property is in excellent condition. The images show a newly built house that appears to be finished to a high standard. There is no evidence of any damage or repairs required. The plot size is relatively small at 666 sqft. However, given the rural location, this is not unexpected. The surrounding area is characterized by open fields and farmland as shown in the provided images. The list price of £260,000 is slightly below the average price for the area (£331,333). However, the property is significantly smaller than the average property size (566 sqft vs 1158 sqft). Considering the average price per sqft in the area is £286, and this property is new build and in excellent condition, the list price appears reasonable. The nearby listings show similar properties selling for around the same price, supporting this assessment. The lack of sqft data for the nearby listings makes a precise comparison difficult, but the general price range is consistent. The location is rural, offering peace and quiet. The proximity to Okehampton provides access to amenities and transportation links, including the Dartmoor Railway. The nearby schools are a positive aspect for families, although further information on Ofsted ratings would be beneficial for a more comprehensive assessment.
Therefore, we give this property 7 / 10. *Disclaimer: This is our option and does constitute a recommendation or financial advice. Do your own research. *
- Price
- 8
- Condition
- 10
- Location
- 7
- Land
- 4
- Bedrooms
- 2
- Bathrooms
- 1
- Sqft (est)
- 566.00
- Lot (est)
- 666.00
The heatmap indicates the level of crime in the area. The color of the heatmap indicates the crime severity and recency.
Metrics Year-on-Year
- Average area value
- 220,000.00 £Decreased by 15.75 %
- Est sale value
- 179,422.00 £Increased by 46.76 %
- Average area rental value
- 880.00 £/moIncreased by 12.53 %
- Est letting value
- 566.00 £/mo
- Est rental Yield
- 4.80 %Increased by 33.70 %
- Crime Rate
- 93.00 %Unchanged by 0.00 %
Agent Activity
Stevens Estate Agents created the listing.
Nearby Schools
| Name | Type | Ofsted | Distance |
|---|---|---|---|
| Okehampton Primary School And Foundation Unit | Academy Converter | 0.41 KM | |
| Okehampton College | Academy Converter | 0.53 KM | |
| Okehampton Area Children'S Centre | Children's Centre | 0.53 KM | |
| St James Church Of England Primary And Nursery School | Free Schools | 1.88 KM | |
| Exbourne Church Of England Primary School | Academy Converter | 7.12 KM |
Images
Nearby Streets
| Name | Average Price | Average Sqft | Distance |
|---|---|---|---|
| Market Street | £ 0 | 0 | 0.00 KM |
| Old Market Way | £ 0 | 0 | 0.00 KM |
| Darkey Lane | £ 185,000 | 0 | 0.00 KM |
| Pikes Mead | £ 211,800 | 0 | 0.00 KM |
| Northams Meadow | £ 0 | 0 | 0.00 KM |
Nearby Transport
| Name | NLC | TLC | Distance |
|---|---|---|---|
| Okehampton | 5786 | OKE | 1.13 KM |
| Sampford Courtenay | 8724 | SMC | 7.03 KM |
Nearby Listings
| Address | Price | Type | Score | Distance |
|---|---|---|---|---|
| Exbourne, Okehampton, Devon | £ 260,000 | BUY | Unknown | 0.00 KM |
| Exbourne, Okehampton, Devon | £ 260,000 | BUY | 7 / 10 | 0.00 KM |
| Folly Gate, Okehampton | £ 220,000 | BUY | 7 / 10 | 0.05 KM |
| Heather Close, Okehampton, EX20 | £ 169,950 | BUY | 6 / 10 | 0.05 KM |
| West Street, Okehampton, Devon | £ 130,000 | BUY | Unknown | 0.06 KM |
Nearby Properties
| Address | Price | Distance |
|---|---|---|
| 30 West Street | £ 138,000 | 0.08 KM |
| 18 Jacobs Pool | £ 150,000 | 0.10 KM |
| 14a Jacobs Pool | £ 115,000 | 0.10 KM |
| 16 Jacobs Pool | £ 87,000 | 0.10 KM |
| 6a Jacobs Pool | £ 78,000 | 0.10 KM |