Alderwood, Harraton, Washington, Tyne and Wear, NE38
By Jill Moore Select Properties
£ 185,000
Reviews
3 out of 5 stars
Jill Moore Select Properties says ..
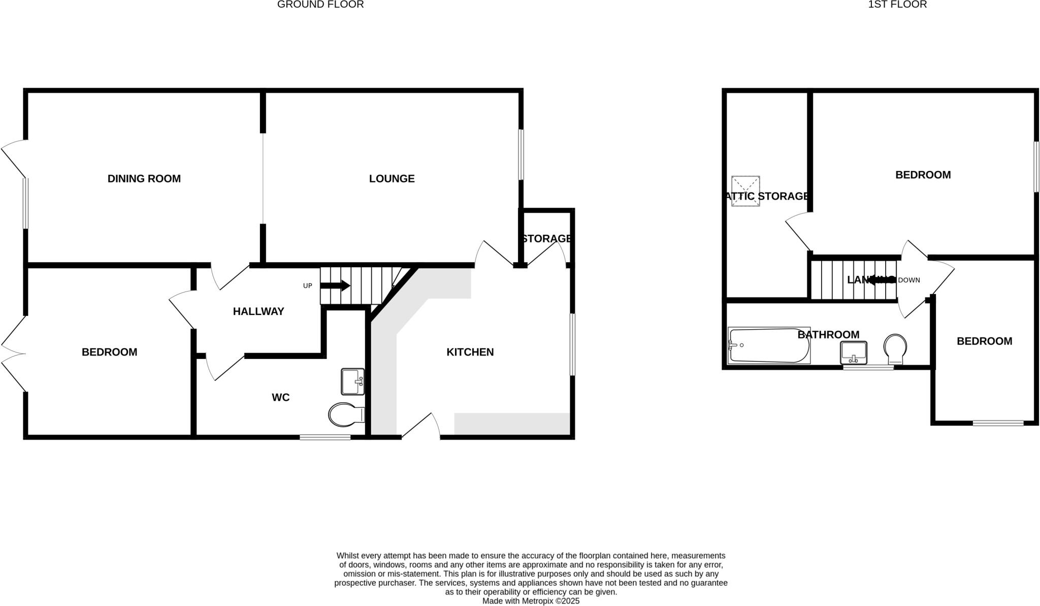
Jill Moore Sales & Letting are delighted to present this spacious two/three bedroom semi-detached property, with large gardens to the front and rear, to the sales market. Offering three good-sized bedrooms, two bathrooms and a private garage, this is the perfect opportunity for someone to put...
Property Oracle says ..
This is a 3-bedroom bungalow in Washington East, Sunderland. The property is in reasonable condition, but requires some modernisation. It has a good-sized garden to the rear. The property is located close to schools and transport links. The list price is reasonable for the area.
Therefore, we give this property 6 / 10. *Disclaimer: This is our option and does constitute a recommendation or financial advice. Do your own research. *
- Price
- 7
- Condition
- 5
- Location
- 7
- Land
- 7
- Bedrooms
- 3
- Bathrooms
- 0
- Sqft (est)
- 960.00
The heatmap indicates the level of crime in the area. The color of the heatmap indicates the crime severity and recency.
Metrics Year-on-Year
- Average area value
- 216,545.00 £Decreased by 10.40 %
- Est sale value
- 196,800.00 £Decreased by 18.00 %
- Average area rental value
- 725.00 £/moDecreased by 14.10 %
- Est letting value
- 0.00 £/mo
- Est rental Yield
- 4.02 %Decreased by 4.06 %
- Crime Rate
- 3.00 %Unchanged by 0.00 %
Agent Activity
Jill Moore Select Properties created the listing.
Nearby Schools
| Name | Type | Ofsted | Distance |
|---|---|---|---|
| Lambton Primary School | Community School | Good | 1.22 KM |
| Rickleton Primary School | Community School | Good | 1.40 KM |
| Holley Park Academy | Academy Converter | Good | 1.74 KM |
| Oxclose Community Academy | Academy Converter | Good | 1.93 KM |
| Oxclose Nursery School | Local Authority Nursery School | Outstanding | 2.01 KM |
Images
Nearby Streets
| Name | Average Price | Average Sqft | Distance |
|---|---|---|---|
| Sycamore Avenue | £ 0 | 0 | 0.00 KM |
| East Avenue | £ 0 | 0 | 0.00 KM |
| Cambrian Way | £ 0 | 0 | 0.00 KM |
| Chiltern Close | £ 0 | 0 | 0.00 KM |
| Teal Close | £ 0 | 0 | 0.00 KM |
Nearby Transport
| Name | NLC | TLC | Distance |
|---|---|---|---|
| Chester-Le-Street | 7736 | CLS | 5.17 KM |
| Heworth | 7766 | HEW | 8.16 KM |
Nearby Listings
| Address | Price | Type | Score | Distance |
|---|---|---|---|---|
| Alderwood, Harraton, Washington, Tyne and Wear, NE38 | £ 185,000 | BUY | 6 / 10 | 0.00 KM |
| Westward Place, Washington , Washington, Tyne and Wear, NE38 9AR | £ 110,000 | BUY | 7 / 10 | 0.06 KM |
| Alderwood, Harraton, Washington, Tyne & Wear, NE38 | £ 215,000 | BUY | 7 / 10 | 0.10 KM |
| Larchwood, Washington, Tyne And Wear, NE38 | £ 279,950 | BUY | 7 / 10 | 0.15 KM |
| Westward Place, Washington, Tyne and Wear, NE38 | £ 130,000 | BUY | 6 / 10 | 0.17 KM |
Nearby Properties
| Address | Price | Distance |
|---|---|---|
| 11 Alderwood | £ 213,000 | 0.06 KM |
| 10 Alderwood | £ 209,000 | 0.06 KM |
| 27 Alderwood | £ 165,000 | 0.06 KM |
| 6 Alderwood | £ 195,000 | 0.06 KM |
| 28 Alderwood | £ 162,000 | 0.06 KM |