Hunters says ..
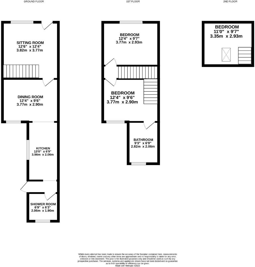
Nestled on Albany Road in Chatham, this charming three-bedroom house presents a wonderful opportunity for those looking to create their dream home. While the property is in need of modernisation throughout, it offers a spacious layout that is perfect for family living. Upon entering, you...
Property Oracle says ..
This is a three-bedroom terraced house on Albany Road, Chatham. The property benefits from its proximity to Luton Primary School (Outstanding). While the bathrooms have been modernised, the kitchen would benefit from modernisation. The property includes a garden. The asking price of £235,000 appears reasonable given the location and condition of the property, and is below the average for the area. The property is located 1.95 KM from Gillingham (Kent) station.
Therefore, we give this property 6 / 10. *Disclaimer: This is our option and does constitute a recommendation or financial advice. Do your own research. *
- Price
- 7
- Condition
- 6
- Location
- 6
- Land
- 5
- Bedrooms
- 3
- Bathrooms
- 2
- Sqft (est)
- 806.54
The heatmap indicates the level of crime in the area. The color of the heatmap indicates the crime severity and recency.
Metrics Year-on-Year
- Average area value
- 272,750.00 £Decreased by 5.37 %
- Est sale value
- 329,068.32 £Increased by 13.97 %
- Average area rental value
- 1,449.00 £/moIncreased by 2.04 %
- Est letting value
- 1,613.08 £/moIncreased by 100.00 %
- Est rental Yield
- 6.38 %Increased by 7.95 %
- Crime Rate
- 10.00 %Unchanged by 0.00 %
Agent Activity
Hunters created the listing.
Nearby Schools
| Name | Type | Ofsted | Distance |
|---|---|---|---|
| Luton Primary School | Community School | Outstanding | 0.29 KM |
| Hospital And Medical Tuition Service | Miscellaneous | 0.76 KM | |
| All Saints Sure Start Children'S Centre | Children's Centre | 0.81 KM | |
| Chatham Grammar | Academy Converter | Good | 0.88 KM |
| All Saints Church Of England Primary School | Academy Converter | Good | 0.91 KM |
Images
Nearby Streets
| Name | Average Price | Average Sqft | Distance |
|---|---|---|---|
| York Hill | £ 250,000 | 0 | 0.00 KM |
| Castle Road | £ 0 | 0 | 0.00 KM |
| Bus Lane | £ 0 | 0 | 0.00 KM |
| Seymour Road | £ 203,500 | 0 | 0.00 KM |
| Lytham Close | £ 0 | 0 | 0.00 KM |
Nearby Transport
| Name | NLC | TLC | Distance |
|---|---|---|---|
| Gillingham (Kent) | 5169 | GLM | 1.95 KM |
| Chatham | 5199 | CTM | 2.36 KM |
| Rochester | 5203 | RTR | 3.69 KM |
| Strood (Kent) | 5191 | SOO | 5.26 KM |
| Rainham (Kent) | 5177 | RAI | 7.84 KM |
Nearby Listings
| Address | Price | Type | Score | Distance |
|---|---|---|---|---|
| Albany Road, Chatham | £ 235,000 | BUY | 6 / 10 | 0.00 KM |
| Albany Road, CHATHAM | £ 150,000 | BUY | 5 / 10 | 0.04 KM |
| Alexandra Road, Chatham, Kent | £ 159,000 | BUY | 5 / 10 | 0.05 KM |
| Alexandra Road, Chatham, Kent | £ 138,500 | BUY | Unknown | 0.05 KM |
| Alexandra Road, Chatham, Kent | £ 240,000 | BUY | 6 / 10 | 0.05 KM |
Nearby Properties
| Address | Price | Distance |
|---|---|---|
| 88 Albany Road | £ 182,000 | 0.04 KM |
| 65 Albany Road | £ 105,000 | 0.04 KM |
| 77 Albany Road | £ 107,500 | 0.04 KM |
| 43 Albany Road | £ 167,000 | 0.04 KM |
| 73 Albany Road | £ 120,000 | 0.04 KM |