Birch Lane, West End, Woking, Surrey, GU24
SE

Birch Lane, West End, Woking, Surrey, GU24

By Seymours Estate Agents

£ 675,000

Reviews

3 out of 5 stars

Seymours Estate Agents says ..

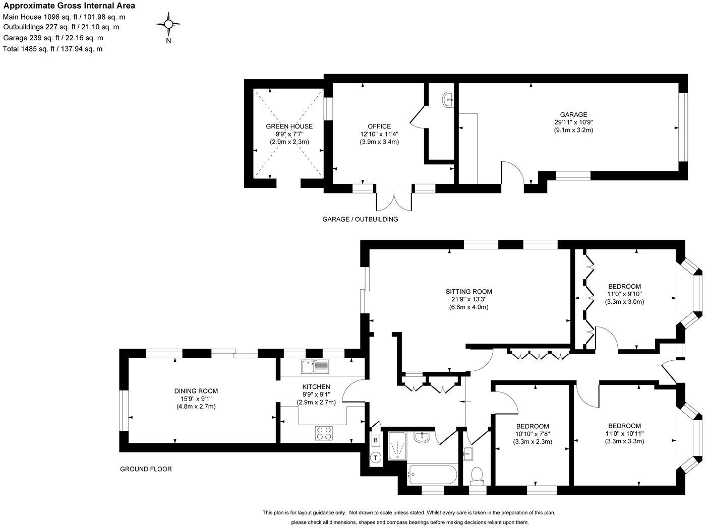
Charming Detached Bungalow in Donkey Town, West End - Approximately 670m From Gordons

Property Oracle says ..

This is a detached bungalow located on Birch Lane, West End, Woking, Surrey. The property features three bedrooms and one bathroom. It has a square footage of 1,522.66 sqft. The property includes a well-maintained garden with a patio and a greenhouse. The house appears to be in good condition, with modern updates in the bathroom and kitchen. The location is convenient, with proximity to schools and transportation. The listing price is £675,000, which is in line with the average property prices in the area.

Therefore, we give this property 7 / 10. *Disclaimer: This is our option and does constitute a recommendation or financial advice. Do your own research. *

Price
7
Condition
7
Location
7
Land
8
Bedrooms
3
Bathrooms
1
Sqft (est)
1,522.66

The heatmap indicates the level of crime in the area. The color of the heatmap indicates the crime severity and recency.

Metrics Year-on-Year

Average area value
644,188.00 £
Increased by 3.54 %
from 622,146.00 £
Est sale value
645,607.84 £
Decreased by 26.64 %
from 880,097.48 £
Average area rental value
2,466.00 £/mo
Decreased by 21.84 %
from 3,155.00 £/mo
Est letting value
1,522.66 £/mo
Decreased by 50.00 %
from 3,045.32 £/mo
Est rental Yield
4.59 %
Decreased by 24.63 %
from 6.09 %
Crime Rate
3.00 %
Unchanged by 0.00 %
from 3.00 %

Agent Activity

  • Seymours Estate Agents created the listing.

Nearby Schools

NameTypeOfstedDistance
Gordon'S SchoolAcademy ConverterOutstanding0.80 KM
Holy Trinity Cofe Primary SchoolAcademy Converter2.01 KM
Bisley Cofe Primary SchoolVoluntary Aided SchoolGood2.53 KM
Lightwater Village SchoolAcademy Converter2.79 KM
Hammond SchoolAcademy ConverterGood3.20 KM

Images

Picture No. 28 Picture No. 02 Picture No. 03 Picture No. 08 Picture No. 04 Picture No. 09 Picture No. 10 Picture No. 07 Picture No. 05 Picture No. 06 Picture No. 11 Picture No. 12 Picture No. 15 Picture No. 13 Picture No. 14 Picture No. 16 Picture No. 17 Picture No. 18 Picture No. 19 Picture No. 27 Picture No. 22 Picture No. 25 Picture No. 26 Picture No. 23 Picture No. 24 Picture No. 21 Picture No. 20 Picture No. 29 Picture No. 30 Picture No. 31

Nearby Streets

NameAverage PriceAverage SqftDistance
Sundew Close £ 1,000,00000.00 KM
Burnt Pollard Lane £ 1,100,00000.00 KM
Withy Close £ 000.00 KM
Lightwater Bypass £ 215,00000.00 KM
Derwent Road £ 000.00 KM

Nearby Transport

NameNLCTLCDistance
Brookwood5687BKO4.38 KM
Bagshot5681BAG4.87 KM
Sunningdale5671SNG6.22 KM
Ascot (Berks)5666ACT7.87 KM
Longcross5674LNG8.18 KM

Nearby Listings

AddressPriceTypeScoreDistance
Birch Lane, West End, Woking, Surrey, GU24 £ 675,000BUY7 / 100.00 KM
WEST END, WOKING £ 700,000BUY7 / 100.09 KM
West End, Surrey, GU24 £ 675,000BUY6 / 100.09 KM
Birch Lane, West End, Woking, Surrey, GU24 £ 750,000BUY6 / 100.10 KM
Revesby Close, West End, Woking, Surrey, GU24 £ 550,000BUY6 / 100.14 KM

Nearby Properties

AddressPriceDistance
18 Birch Lane £ 497,0000.01 KM
14 Birch Lane £ 405,0000.01 KM
20 Birch Lane £ 530,0000.01 KM
26 Birch Lane £ 234,9500.01 KM
4 Birch Lane £ 400,0000.01 KM