Julian Marks says ..
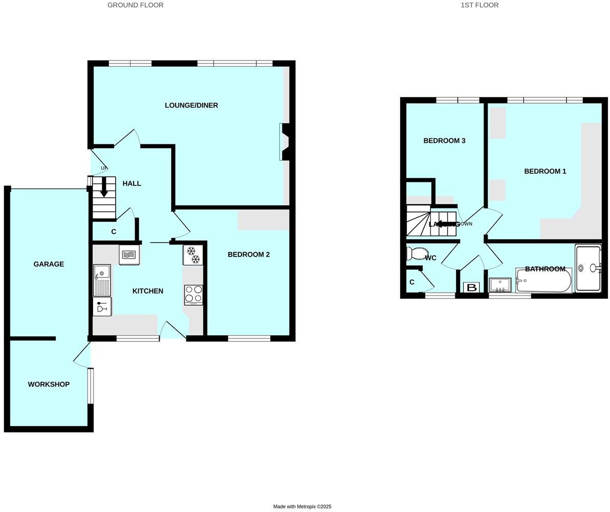
Detached dormer-style house built in the 1960s. The accommodation comprises hall, generous-sized lounge/dining room, fitted integrated kitchen, 3 bedrooms, modern bathroom & separate wc. Good-sized plot having a front garden, wide area to the side with lapsed planning approval for extension & rea...
Property Oracle says ..
The property is a three-bedroom house with one bathroom, situated in a quiet cul-de-sac in Eggbuckland, Plymouth. The photos show the property to be in good condition, with a recently updated kitchen and a generally well-maintained interior. The exterior also appears well-maintained, with a garden and off-street parking. The presence of a greenhouse suggests a degree of outdoor space suitable for gardening. The location benefits from proximity to several schools, including Eggbuckland Vale Primary School and St Edward’s Cofe Primary School, both rated ‘Good’ by Ofsted. Several other schools are within a reasonable distance. The property is also conveniently located within approximately 4.21km of Plymouth railway station, providing access to public transportation. Nearby streets show average prices ranging from £200,000 to £340,000, suggesting the asking price of £290,000 is within the range of comparable properties in the area. However, the lack of square footage information for nearby properties makes a precise price per square foot comparison difficult. The plot size of 0.00 sqft is unusual and requires clarification. It is possible that this is a data entry error and the property does have a garden.
Therefore, we give this property 7 / 10. *Disclaimer: This is our option and does constitute a recommendation or financial advice. Do your own research. *
- Price
- 7
- Condition
- 8
- Location
- 8
- Land
- 7
- Bedrooms
- 3
- Bathrooms
- 1
- Sqft (est)
- 499.00
The heatmap indicates the level of crime in the area. The color of the heatmap indicates the crime severity and recency.
Metrics Year-on-Year
- Average area value
- 251,250.00 £Decreased by 14.94 %
- Est sale value
- 148,203.00 £Decreased by 1.33 %
- Average area rental value
- 1,138.00 £/moIncreased by 4.88 %
- Est letting value
- 499.00 £/moUnchanged by 0.00 %
- Est rental Yield
- 5.44 %Increased by 23.36 %
- Crime Rate
- 1.00 %Unchanged by 0.00 %
Agent Activity
Julian Marks created the listing.
Nearby Schools
| Name | Type | Ofsted | Distance |
|---|---|---|---|
| Eggbuckland Vale Primary School | Academy Converter | Good | 0.61 KM |
| St Edward'S Cofe Primary School | Academy Converter | Good | 0.62 KM |
| Crownlands Children'S Centre | Children's Centre | 0.99 KM | |
| Eggbuckland Community College | Academy Converter | Requires improvement | 1.05 KM |
| Austin Farm Academy | Academy Sponsor Led | Requires improvement | 1.08 KM |
Images
Nearby Streets
| Name | Average Price | Average Sqft | Distance |
|---|---|---|---|
| Carisbrooke Road | £ 325,000 | 0 | 0.00 KM |
| Cardigan Road | £ 0 | 0 | 0.00 KM |
| The Retreat | £ 340,000 | 0 | 0.00 KM |
| Greatfield Road | £ 0 | 0 | 0.00 KM |
| Partridge Road | £ 0 | 0 | 0.00 KM |
Nearby Transport
| Name | NLC | TLC | Distance |
|---|---|---|---|
| Plymouth | 3580 | PLY | 4.21 KM |
| Devonport | 3579 | DPT | 6.80 KM |
| Dockyard (Devonport) | 3588 | DOC | 7.20 KM |
| Keyham | 3571 | KEY | 7.39 KM |
| St Budeaux Ferry Road | 3590 | SBF | 8.07 KM |
Nearby Listings
| Address | Price | Type | Score | Distance |
|---|---|---|---|---|
| Eggbuckland, Plymouth | £ 290,000 | BUY | 7 / 10 | 0.00 KM |
| Dudley Gardens, Eggbuckland | £ 280,000 | BUY | 7 / 10 | 0.05 KM |
| Dudley Gardens, Eggbuckland, Plymouth | £ 200,000 | BUY | 6 / 10 | 0.06 KM |
| Shirburn Road, Plymouth | £ 245,000 | BUY | 7 / 10 | 0.07 KM |
| Church Hill, Plymouth, PL6 | £ 315,000 | BUY | 7 / 10 | 0.13 KM |
Nearby Properties
| Address | Price | Distance |
|---|---|---|
| 30 Dudley Gardens | £ 232,000 | 0.05 KM |
| 19 Dudley Gardens | £ 230,000 | 0.05 KM |
| 24 Dudley Gardens | £ 195,000 | 0.05 KM |
| 20 Dudley Gardens | £ 185,000 | 0.05 KM |
| 23 Dudley Gardens | £ 146,000 | 0.05 KM |