YO
Dunsgreen Court, Newcastle Upon Tyne, NE20
By Yopa
£ 158,000
Reviews
3 out of 5 stars
Yopa says ..
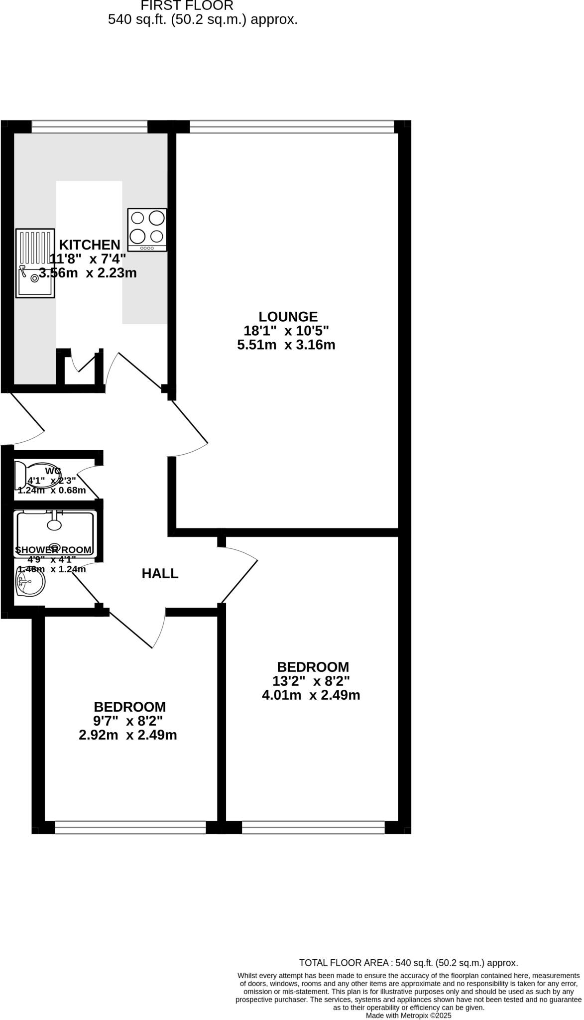
Nestled in the tranquil and highly sought-after setting of Ponteland, this leasehold flat offers a comfortable and convenient living space, perfect for first-time buyers, downsizers, or investors. The property has two bedrooms, a fitted kitchen, and communal parking to the rear.
Property Oracle says ..
Therefore, we give this property 6 / 10. *Disclaimer: This is our option and does constitute a recommendation or financial advice. Do your own research. *
- Price
- 8
- Condition
- 7
- Location
- 8
- Land
- 3
- Bedrooms
- 2
- Bathrooms
- 1
- Sqft (est)
- 540.00
The heatmap indicates the level of crime in the area. The color of the heatmap indicates the crime severity and recency.
Metrics Year-on-Year
- Average area value
- 625,000.00 £Increased by 9.15 %
- Est sale value
- 357,480.00 £Increased by 24.67 %
- Average area rental value
- 1,525.00 £/moIncreased by 1.26 %
- Est letting value
- 540.00 £/moUnchanged by 0.00 %
- Est rental Yield
- 2.93 %Decreased by 7.28 %
- Crime Rate
- 24.00 %Unchanged by 0.00 %
from 572,608.00 £
from 286,740.00 £
from 1,506.00 £/mo
from 540.00 £/mo
from 3.16 %
from 24.00 %
Agent Activity
Yopa created the listing.
Nearby Schools
| Name | Type | Ofsted | Distance |
|---|---|---|---|
| Ponteland Community Primary School | Academy Converter | 0.19 KM | |
| Ponteland High School | Academy Converter | 0.20 KM | |
| Richard Coates Church Of England Primary School | Academy Converter | 0.98 KM | |
| Ponteland Children'S Centre | Children's Centre Linked Site | 1.02 KM | |
| Ponteland Primary School | Academy Converter | 1.02 KM |
Images
Nearby Streets
| Name | Average Price | Average Sqft | Distance |
|---|---|---|---|
| Athol Close | £ 0 | 0 | 0.00 KM |
| Grange Road | £ 195,000 | 0 | 0.00 KM |
| Sycamore Avenue | £ 695,000 | 0 | 0.00 KM |
| The Green | £ 0 | 0 | 0.00 KM |
| Callerton Lane | £ 795,000 | 0 | 0.00 KM |
Nearby Transport
| Name | NLC | TLC | Distance |
|---|---|---|---|
| Blaydon | 7503 | BLO | 9.45 KM |
Nearby Listings
| Address | Price | Type | Score | Distance |
|---|---|---|---|---|
| Dunsgreen Court, Newcastle Upon Tyne, NE20 | £ 158,000 | BUY | 6 / 10 | 0.00 KM |
| Dunsgreen, Ponteland, Newcastle Upon Tyne, NE20 | £ 425,000 | BUY | 8 / 10 | 0.01 KM |
| Dunsgreen, Ponteland, NE20 | £ 425,000 | BUY | 7 / 10 | 0.12 KM |
| Callerton Lane, Ponteland, Newcastle Upon Tyne, Tyne & Wear, NE20 | £ 475,000 | BUY | Unknown | 0.13 KM |
| Dunsgreen, Ponteland, NE20 | £ 550,000 | BUY | 7 / 10 | 0.13 KM |
Nearby Properties
| Address | Price | Distance |
|---|---|---|
| 24 Dunsgreen Court | £ 95,000 | 0.01 KM |
| 14 Dunsgreen Court | £ 113,000 | 0.01 KM |
| 10 Dunsgreen Court | £ 124,000 | 0.01 KM |
| 1 Dunsgreen Court | £ 119,000 | 0.01 KM |
| 27 Dunsgreen Court | £ 115,000 | 0.01 KM |