Ravenscraig Road, London, N11
By Charles Henry Peppiatt Ltd
£ 840,000
Reviews
3 out of 5 stars
Charles Henry Peppiatt Ltd says ..
3-bed semi-detached near Arnos Grove. Generous bedrooms, p.p. for extension & loft. Expansive 100ft garden with fire pits & observation area. Convenient urban retreat with off street parking
Property Oracle says ..
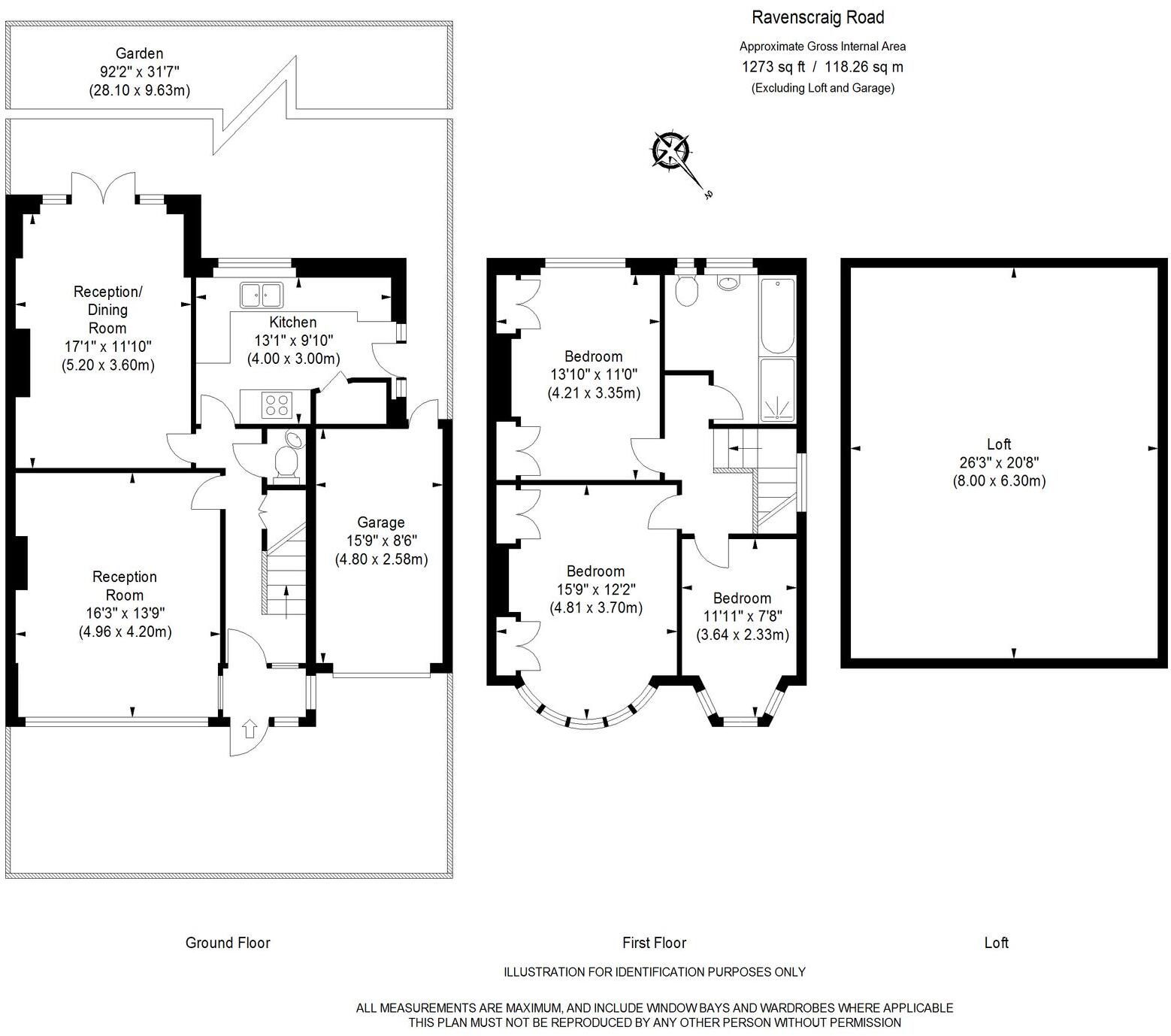
This is a 3-bedroom semi-detached house located on Ravenscraig Road in Southgate Green, London. The property offers 1,273 sqft of living space and sits on a plot of 2,925.94 sqft. The house features a garden and is located within a reasonable distance of local schools and transportation links, including the New Southgate train station. While the property is generally in good condition, some areas, such as the bathroom and fireplaces, could benefit from modernisation. The listing price is £840,000, which appears reasonable given the location, size, and features of the property, although some renovation work may be desired by potential buyers. The property has a garage and a patio area in the garden.
Therefore, we give this property 6 / 10. *Disclaimer: This is our option and does constitute a recommendation or financial advice. Do your own research. *
- Price
- 7
- Condition
- 6
- Location
- 7
- Land
- 7
- Bedrooms
- 3
- Bathrooms
- 1
- Sqft (est)
- 1,273.00
- Lot (est)
- 2,925.94
The heatmap indicates the level of crime in the area. The color of the heatmap indicates the crime severity and recency.
Metrics Year-on-Year
- Average area value
- 793,750.00 £Decreased by 0.58 %
- Est sale value
- 323,342.00 £Decreased by 55.44 %
- Average area rental value
- 1,954.00 £/moIncreased by 5.97 %
- Est letting value
- 0.00 £/moDecreased by 100.00 %
- Est rental Yield
- 2.95 %Increased by 6.50 %
- Crime Rate
- 3.00 %Unchanged by 0.00 %
Agent Activity
Charles Henry Peppiatt Ltd created the listing.
Nearby Schools
| Name | Type | Ofsted | Distance |
|---|---|---|---|
| Our Lady Of Lourdes Catholic Primary School | Voluntary Aided School | Good | 0.33 KM |
| Focus 1St Academy | Other Independent School | Good | 0.46 KM |
| Bowes And Garfield Children'S Centre | Children's Centre | 0.49 KM | |
| Garfield Primary School | Community School | Good | 0.51 KM |
| St Paul'S Cofe Primary School N11 | Voluntary Aided School | Good | 0.80 KM |
Images
Nearby Streets
| Name | Average Price | Average Sqft | Distance |
|---|---|---|---|
| Cross Road | £ 0 | 0 | 0.00 KM |
| Marlborough Avenue | £ 0 | 0 | 0.00 KM |
| Chaucer Close | £ 678,333 | 0 | 0.00 KM |
| Morton Crescent | £ 0 | 0 | 0.00 KM |
| Regal Drive | £ 0 | 0 | 0.00 KM |
Nearby Transport
| Name | NLC | TLC | Distance |
|---|---|---|---|
| New Southgate | 6019 | NSG | 0.79 KM |
| Bowes Park | 6027 | BOP | 2.24 KM |
| Alexandra Palace | 6025 | AAP | 2.96 KM |
| Palmers Green | 6021 | PAL | 2.97 KM |
| Oakleigh Park | 6020 | OKL | 3.85 KM |
Nearby Listings
| Address | Price | Type | Score | Distance |
|---|---|---|---|---|
| Ravenscraig Road, London, N11 | £ 840,000 | BUY | 6 / 10 | 0.00 KM |
| Betstyle Road, Southgate Green, Arnos Grove, London N11 | £ 925,000 | BUY | 7 / 10 | 0.13 KM |
| Waterfall Road, Arnos Grove, London, N11 | £ 899,995 | BUY | 7 / 10 | 0.16 KM |
| Waterfall Road, London, N11 | £ 900,000 | BUY | 6 / 10 | 0.16 KM |
| Waterfall Road, London | £ 750,000 | BUY | 7 / 10 | 0.18 KM |
Nearby Properties
| Address | Price | Distance |
|---|---|---|
| 42 Ravenscraig Road | £ 495,000 | 0.06 KM |
| 16 Ravenscraig Road | £ 249,995 | 0.06 KM |
| 38 Ravenscraig Road | £ 581,500 | 0.06 KM |
| 46 Ravenscraig Road | £ 369,000 | 0.07 KM |
| 8 Ravenscraig Road | £ 329,995 | 0.07 KM |