Pineheath Road, High Kelling
WA

Pineheath Road, High Kelling

By Watsons

£ 750,000

Reviews

3 out of 5 stars

Watsons says ..

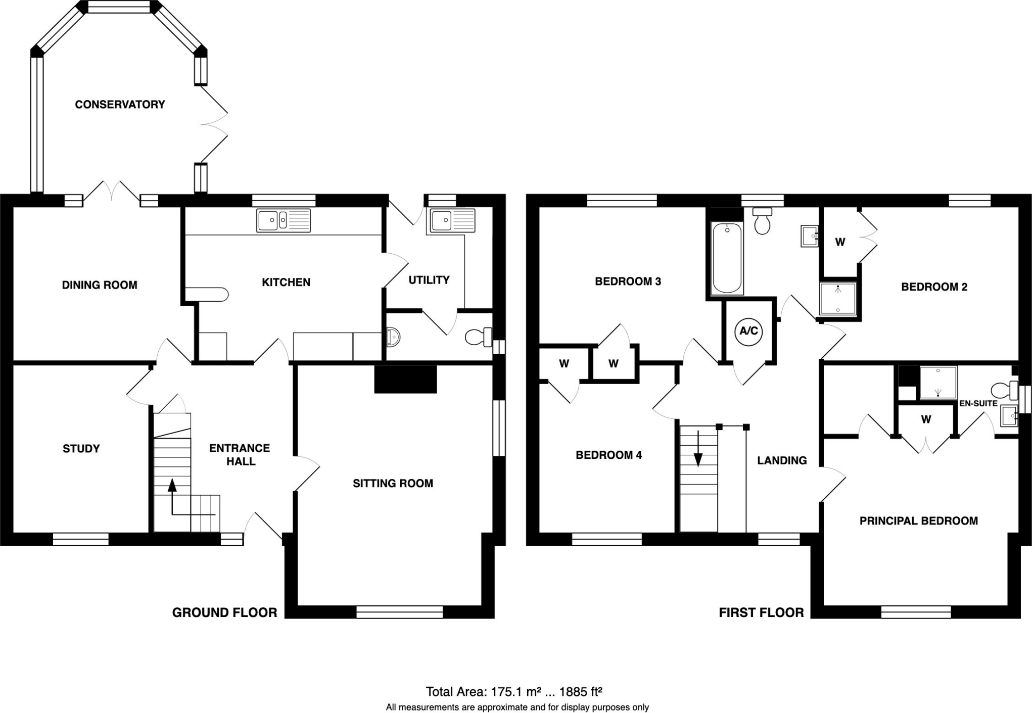
An individual detached house in a highly-desirable location set well back from the road and with partly wooded gardens extending to 0.38 acres (subject to survey).

Property Oracle says ..

Therefore, we give this property 7 / 10. *Disclaimer: This is our option and does constitute a recommendation or financial advice. Do your own research. *

Price
7
Condition
8
Location
7
Land
8
Bedrooms
4
Bathrooms
2
Sqft (est)
1,885.00

The heatmap indicates the level of crime in the area. The color of the heatmap indicates the crime severity and recency.

Metrics Year-on-Year

Average area value
398,765.00 £
Decreased by 0.35 %
from 400,154.00 £
Est sale value
746,460.00 £
Increased by 20.73 %
from 618,280.00 £
Average area rental value
1,263.00 £/mo
Increased by 3.52 %
from 1,220.00 £/mo
Est letting value
1,885.00 £/mo
Unchanged by 0.00 %
from 1,885.00 £/mo
Est rental Yield
3.80 %
Increased by 3.83 %
from 3.66 %
Crime Rate
65.00 %
Unchanged by 0.00 %
from 65.00 %

Agent Activity

  • Watsons created the listing.

Nearby Schools

NameTypeOfstedDistance
Gresham'S SchoolOther Independent School3.11 KM
Kelling Ce Primary SchoolVoluntary Aided SchoolGood3.51 KM
Corpusty And Holt Area Children'S CentreChildren's Centre4.08 KM
Holt Community Primary SchoolCommunity SchoolGood5.10 KM
Sheringham High SchoolAcademy ConverterGood7.72 KM

Images

Front 1 Sitting Room Entrance Hall Bathroom Dining Room Ensuite shower ro... Fitted kitchen Rear garden Principal Bedroom Bedroom 4 Front garden Rear elevation Landing Conservatory Woodland garden Study Utility Room Cloakroom Drive and double ... Bedroom 3 Bedroom 2

Nearby Transport

NameNLCTLCDistance
Sheringham7319SHM9.17 KM

Nearby Listings

AddressPriceTypeScoreDistance
Pineheath Road, High Kelling £ 750,000BUY7 / 100.00 KM
Pineheath Road, , High Kelling, Holt £ 625,000BUY7 / 100.01 KM
A Beautifully Renovated & Extended Bungalow in High Kelling. £ 625,000BUY7 / 100.01 KM
High Kelling £ 675,000BUY7 / 100.15 KM
A BEAUTIFULLY REFURBISHED DETACHED BUNGALOW ON A MATURE HALF-ACRE PLOT IN HIGH KELLING £ 675,000BUY8 / 100.16 KM

Nearby Properties

AddressPriceDistance
15 Pineheath Road £ 249,5000.00 KM
Westlands £ 410,0000.00 KM
22 Pineheath Road £ 340,4000.00 KM
32 Pineheath Road £ 770,0000.00 KM
35a Pineheath Road £ 550,0000.00 KM