Almond View, Seafield, Bathgate, EH47
By Time2Move
£ 130,000
Reviews
3 out of 5 stars
Time2Move says ..
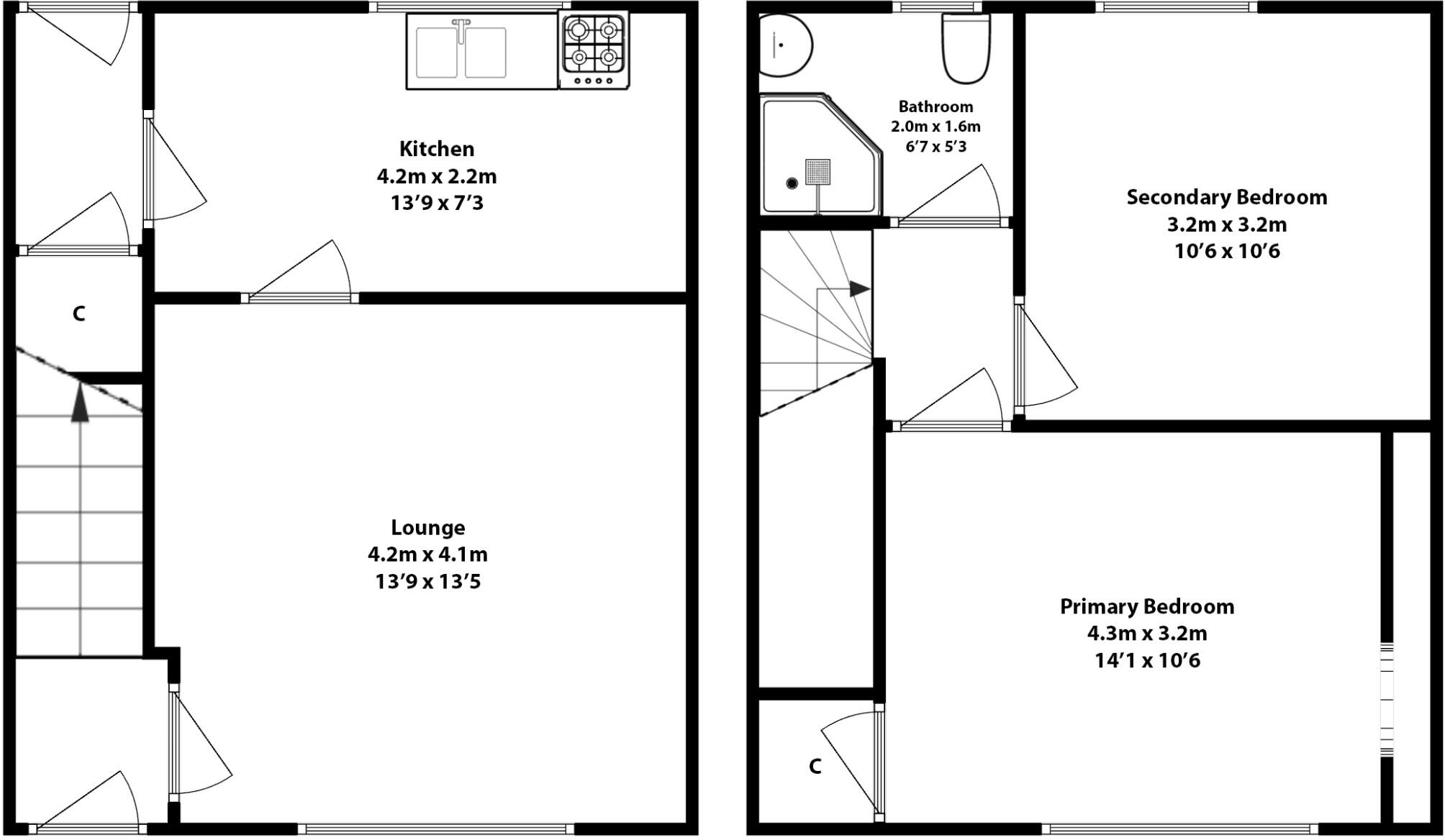
Welcome to 44 Almond View -a charming two-bedroom end-terrace home, nestled in a quiet cul-de-sac within the popular village of Seafield. This inviting property offers an ideal opportunity for first-time buyers or investors looking for a well-located home with excellent amenities and transport links
Property Oracle says ..
Therefore, we give this property 6 / 10. *Disclaimer: This is our option and does constitute a recommendation or financial advice. Do your own research. *
- Price
- 7
- Condition
- 4
- Location
- 6
- Land
- 7
- Bedrooms
- 2
- Bathrooms
- 1
- Sqft (est)
- 577.59
The heatmap indicates the level of crime in the area. The color of the heatmap indicates the crime severity and recency.
Metrics Year-on-Year
- Average area value
- 712,500.00 £Increased by 63.65 %
- Est sale value
- 205,622.04 £Increased by 11.95 %
- Average area rental value
- 1,330.00 £/moIncreased by 17.28 %
- Est letting value
- 0.00 £/mo
- Est rental Yield
- 2.24 %Decreased by 28.43 %
- Crime Rate
- 0.00 %
from 435,374.00 £
from 183,673.62 £
from 1,134.00 £/mo
from 0.00 £/mo
from 3.13 %
from 0.00 %
Agent Activity
Time2Move created the listing.
Images
Nearby Streets
| Name | Average Price | Average Sqft | Distance |
|---|---|---|---|
| Beech Place | £ 0 | 0 | 0.00 KM |
| Dean Place | £ 0 | 0 | 0.00 KM |
| Seafield Rows | £ 0 | 0 | 0.00 KM |
Nearby Transport
| Name | NLC | TLC | Distance |
|---|---|---|---|
| West Calder | 9250 | WCL | 3.41 KM |
| Addiewell | 9310 | ADW | 4.27 KM |
| Livingston North | 9371 | LSN | 5.49 KM |
| Bathgate | 9311 | BHG | 5.83 KM |
| Livingston South | 9372 | LVG | 9.51 KM |
Nearby Listings
| Address | Price | Type | Score | Distance |
|---|---|---|---|---|
| Almond View, Seafield, Bathgate, EH47 | £ 130,000 | BUY | 6 / 10 | 0.00 KM |
| Almond View, Bathgate, EH47 | £ 199,500 | BUY | Unknown | 0.12 KM |
| Dean Place, Bathgate, EH47 | £ 135,000 | BUY | 6 / 10 | 0.28 KM |
| Dean Place, Bathgate, EH47 | £ 100,000 | BUY | 4 / 10 | 0.35 KM |
| Heatherwood, Seafield, Bathgate | £ 225,000 | BUY | 7 / 10 | 0.35 KM |