Newport Road, Stafford, ST16
By James Du Pavey
£ 275,000
Reviews
3 out of 5 stars
James Du Pavey says ..
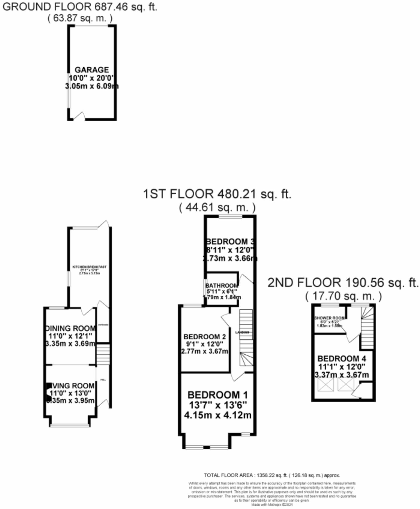
4-bed terraced home in Stafford, close to town centre & schools. Original features, spacious rooms, ensuite bedroom, southeast garden, garage & parking. Ideal family property!
Property Oracle says ..
This four-bedroom, two-bathroom terraced house in Stafford offers a blend of convenience and family-friendly features. Its location on Newport Road places it within walking distance of Stafford train station and several highly-rated schools, boosting its appeal to families. The interior is generally well-maintained, with some rooms exhibiting dated features which may benefit from refurbishment or updating to enhance the overall aesthetic appeal and potentially increase value. The modest-sized garden offers a small degree of outdoor space. The property includes a garage and additional parking, and while the precise square footage is unavailable, the £275,000 asking price appears to be relatively in line with other comparable properties on the street, making it a reasonable investment opportunity for those looking for a family home in a convenient location. The lack of information about the property’s size (SQFT and plot size) and the limited information on average prices per square foot for comparable properties could benefit from more detail in the listing.
Therefore, we give this property 6 / 10. *Disclaimer: This is our option and does constitute a recommendation or financial advice. Do your own research. *
- Price
- 7
- Condition
- 6
- Location
- 7
- Land
- 4
- Bedrooms
- 4
- Bathrooms
- 2
The heatmap indicates the level of crime in the area. The color of the heatmap indicates the crime severity and recency.
Metrics Year-on-Year
- Average area value
- 287,293.00 £Decreased by 0.23 %
- Average area rental value
- 1,083.00 £/moIncreased by 11.42 %
- Est rental Yield
- 4.52 %Increased by 11.60 %
- Crime Rate
- 10.00 %Unchanged by 0.00 %
Agent Activity
James Du Pavey created the listing.
Nearby Schools
| Name | Type | Ofsted | Distance |
|---|---|---|---|
| King Edward Vi High School | Community School | Good | 0.28 KM |
| Castlechurch Primary School | Academy Converter | 0.67 KM | |
| Blessed Mother Teresa'S Catholic Primary School | Academy Converter | Good | 0.89 KM |
| Blessed William Howard Catholic School | Academy Converter | Good | 1.05 KM |
| Rowley Park Primary Academy | Academy Sponsor Led | Good | 1.22 KM |
Images
Nearby Streets
| Name | Average Price | Average Sqft | Distance |
|---|---|---|---|
| High Park | £ 0 | 0 | 0.00 KM |
| Castle Way | £ 160,000 | 0 | 0.00 KM |
| Chaucer Road | £ 0 | 0 | 0.00 KM |
| Lovelace Close | £ 0 | 0 | 0.00 KM |
| Redgrave Drive | £ 290,000 | 0 | 0.00 KM |
Nearby Transport
| Name | NLC | TLC | Distance |
|---|---|---|---|
| Stafford | 1268 | STA | 1.27 KM |
| Penkridge | 1195 | PKG | 8.44 KM |
Nearby Listings
| Address | Price | Type | Score | Distance |
|---|---|---|---|---|
| Newport Road, Stafford, ST16 | £ 269,000 | BUY | 7 / 10 | 0.00 KM |
| Newport Road, Stafford, ST16 | £ 275,000 | BUY | 6 / 10 | 0.00 KM |
| Newport Road, Stafford, ST16 | £ 260,000 | BUY | 7 / 10 | 0.01 KM |
| Newport Road, Stafford, Staffordshire, ST16 | £ 275,000 | BUY | 6 / 10 | 0.07 KM |
| Newport Road, Stafford, ST16 | £ 265,000 | BUY | 7 / 10 | 0.08 KM |
Nearby Properties
| Address | Price | Distance |
|---|---|---|
| 81 Newport Road | £ 215,000 | 0.05 KM |
| 73 Newport Road | £ 182,000 | 0.05 KM |
| 76 Newport Road | £ 220,000 | 0.05 KM |
| 64 Newport Road | £ 200,000 | 0.05 KM |
| 75 Newport Road | £ 245,000 | 0.05 KM |