High Street, Harlesden, NW10 4SP
By Churchill & Mathesons
£ 780,000
Reviews
2 out of 5 stars
Churchill & Mathesons says ..
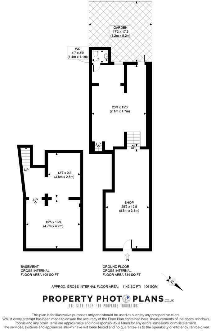
FREEHOLD BUILDING 1 x RETAIL SHOP & 1 x 4 BEDROOM FLAT FOR SALE Situated on the bustling High Street in Harlesden, NW10 4SP, this property offers a fantastic investment opportunity for those seeking a balance of commercial and residential space. Boasting an impressive 2,438 sq ft, this ...
Property Oracle says ..
This property in Harlesden, NW10 comprises a four-bedroom flat above a commercial retail unit. Its High Street location offers excellent access to amenities and transport links, notably Willesden Junction station. Several schools are nearby, adding to the property’s appeal for families. However, the area itself may not suit all preferences because of it’s busier nature. The images reveal that the flat requires modernisation. The kitchen and bathroom show considerable wear and need renovation. Furthermore, the exterior and backyard seem to need significant clearing and cleaning. While this property offers a combined residential and commercial investment, prospective buyers should budget for renovations to maximize its market value and address the condition issues. The list price of £780,000 reflects these factors; therefore, potential buyers should thoroughly assess the renovation costs before making an offer. The lack of plot size information makes determining an accurate price per square foot difficult. Further comparative market analysis may be beneficial in arriving at a fully informed evaluation.
Therefore, we give this property 4 / 10. *Disclaimer: This is our option and does constitute a recommendation or financial advice. Do your own research. *
- Price
- 7
- Condition
- 4
- Location
- 6
- Land
- 1
- Bedrooms
- 4
- Bathrooms
- 1
- Sqft (est)
- 1,143.00
The heatmap indicates the level of crime in the area. The color of the heatmap indicates the crime severity and recency.
Metrics Year-on-Year
- Average area value
- 745,000.00 £Decreased by 11.71 %
- Est sale value
- 874,395.00 £Decreased by 15.09 %
- Average area rental value
- 2,378.00 £/moIncreased by 14.49 %
- Est letting value
- 2,286.00 £/moUnchanged by 0.00 %
- Est rental Yield
- 3.83 %Increased by 29.83 %
- Crime Rate
- 22.00 %Unchanged by 0.00 %
Agent Activity
Churchill & Mathesons created the listing.
Nearby Schools
| Name | Type | Ofsted | Distance |
|---|---|---|---|
| Saint Claudine'S Catholic School For Girls | Academy Converter | Good | 0.41 KM |
| John Keble Cofe Primary School | Voluntary Aided School | Good | 0.42 KM |
| Maple Walk School | Other Independent School | 0.48 KM | |
| Roundwood School And Community Centre | Free Schools Alternative Provision | 0.50 KM | |
| Harmony Children'S Centre | Children's Centre | 0.50 KM |
Images
Nearby Streets
| Name | Average Price | Average Sqft | Distance |
|---|---|---|---|
| Rucklidge Passage | £ 0 | 0 | 0.00 KM |
| Harlesden Plaza | £ 3,350,000 | 0 | 0.00 KM |
| Station Road | £ 0 | 0 | 0.00 KM |
| Caple Road | £ 350,000 | 0 | 0.00 KM |
| The Drive | £ 0 | 0 | 0.00 KM |
Nearby Transport
| Name | NLC | TLC | Distance |
|---|---|---|---|
| Willesden Junction | 1457 | WIJ | 0.35 KM |
| Harlesden | 1521 | HDN | 1.50 KM |
| Kensal Green | 1447 | KNL | 2.17 KM |
| Kensal Rise | 1448 | KNR | 2.67 KM |
| Acton Main Line | 3000 | AML | 3.24 KM |
Nearby Listings
| Address | Price | Type | Score | Distance |
|---|---|---|---|---|
| High Street, Harlesden, NW10 4SP | £ 780,000 | BUY | 4 / 10 | 0.00 KM |
| Rucklidge Avenue, Harlesden, London, NW10 | £ 425,000 | BUY | 7 / 10 | 0.05 KM |
| Rucklidge Avenue, LONDON | £ 245,000 | BUY | 4 / 10 | 0.08 KM |
| Rucklidge Avenue, London | £ 700,000 | BUY | 6 / 10 | 0.09 KM |
| Rucklidge Avenue, London | £ 665,000 | BUY | 6 / 10 | 0.09 KM |
Nearby Properties
| Address | Price | Distance |
|---|---|---|
| 128a High Street | £ 195,000 | 0.04 KM |
| 103a High Street | £ 390,000 | 0.09 KM |
| 105a High Street | £ 250,000 | 0.09 KM |
| 29 Rucklidge Avenue | £ 169,950 | 0.09 KM |
| 17c Rucklidge Avenue | £ 159,000 | 0.09 KM |