BA
Wells Road, Bath
By Bath Stone Property
£ 1,500
Bath Stone Property says ..
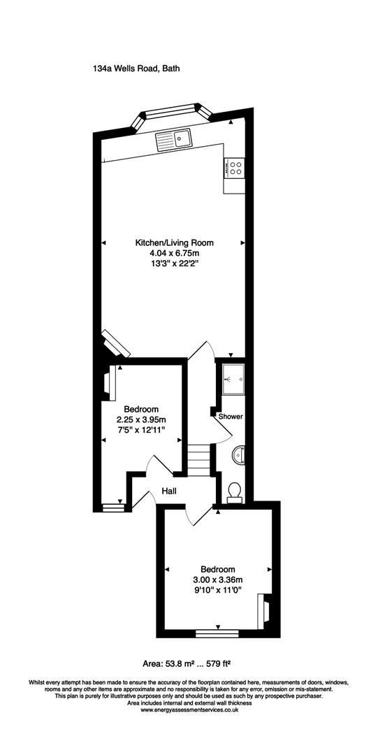
Unfurnished first floor flat on Wells Road, 5 minute walk into Bath city centre with private entrance and courtyard with storage for bikes. Available immediately to single, couple, or two sharers.
- Bedrooms
- 2
- Bathrooms
- 1
The heatmap indicates the level of crime in the area. The color of the heatmap indicates the crime severity and recency.
Metrics Year-on-Year
- Average area value
- 348,000.00 £Decreased by 28.05 %
- Average area rental value
- 1,967.00 £/moUnchanged by 0.00 %
- Est rental Yield
- 6.78 %Increased by 38.93 %
- Crime Rate
- 6.00 %Unchanged by 0.00 %
from 483,699.00 £
from 1,967.00 £/mo
from 4.88 %
from 6.00 %
Agent Activity
Bath Stone Property created the listing.
Nearby Schools
| Name | Type | Ofsted | Distance |
|---|---|---|---|
| Hayesfield Girls School | Academy Converter | Good | 0.56 KM |
| Beechen Cliff School | Academy Converter | 0.83 KM | |
| Bath College | Further Education | Good | 0.89 KM |
| St John'S Catholic Primary School | Voluntary Aided School | Good | 0.99 KM |
| First Steps Moorlands Children'S Centre | Children's Centre | 1.00 KM |
Images
Nearby Streets
| Name | Average Price | Average Sqft | Distance |
|---|---|---|---|
| Bloomfield Avenue | £ 0 | 0 | 0.00 KM |
| Egerton Road | £ 700,000 | 0 | 0.00 KM |
| Westmoreland Station Road | £ 465,000 | 0 | 0.00 KM |
| Hensley Gardens | £ 475,000 | 0 | 0.00 KM |
| Westmoreland Road | £ 0 | 0 | 0.00 KM |
Nearby Transport
| Name | NLC | TLC | Distance |
|---|---|---|---|
| Bath Spa | 3271 | BTH | 1.27 KM |
| Oldfield Park | 3219 | OLF | 1.55 KM |
| Freshford | 3344 | FFD | 8.16 KM |
Nearby Listings
| Address | Price | Type | Score | Distance |
|---|---|---|---|---|
| Wells Road, Bath | £ 1,500 | RENT | Unknown | 0.00 KM |
| Wells Road, Bath | £ 1,150 | RENT | Unknown | 0.06 KM |
| 136A Wells Road, Bath | £ 1,295 | RENT | Unknown | 0.06 KM |
| Wellsway, Bath | £ 1,500 | RENT | Unknown | 0.12 KM |
| Hayes Place | £ 5,950 | RENT | Unknown | 0.18 KM |
Nearby Properties
| Address | Price | Distance |
|---|---|---|
| 114 Wells Road | £ 685,000 | 0.06 KM |
| 28 Wellsway | £ 475,000 | 0.12 KM |
| 26 Wellsway | £ 155,500 | 0.12 KM |
| 22 Bloomfield Avenue | £ 550,000 | 0.13 KM |
| 5 Bloomfield Avenue | £ 685,000 | 0.13 KM |