Chancellors says ..
Edwardian home located on a sought after road. This property features an ample lounge with a bay window. Situated on a residential street, with convenient access to the town centre and railway station and various local amenities. Ideal choice for families and commuters.
Property Oracle says ..
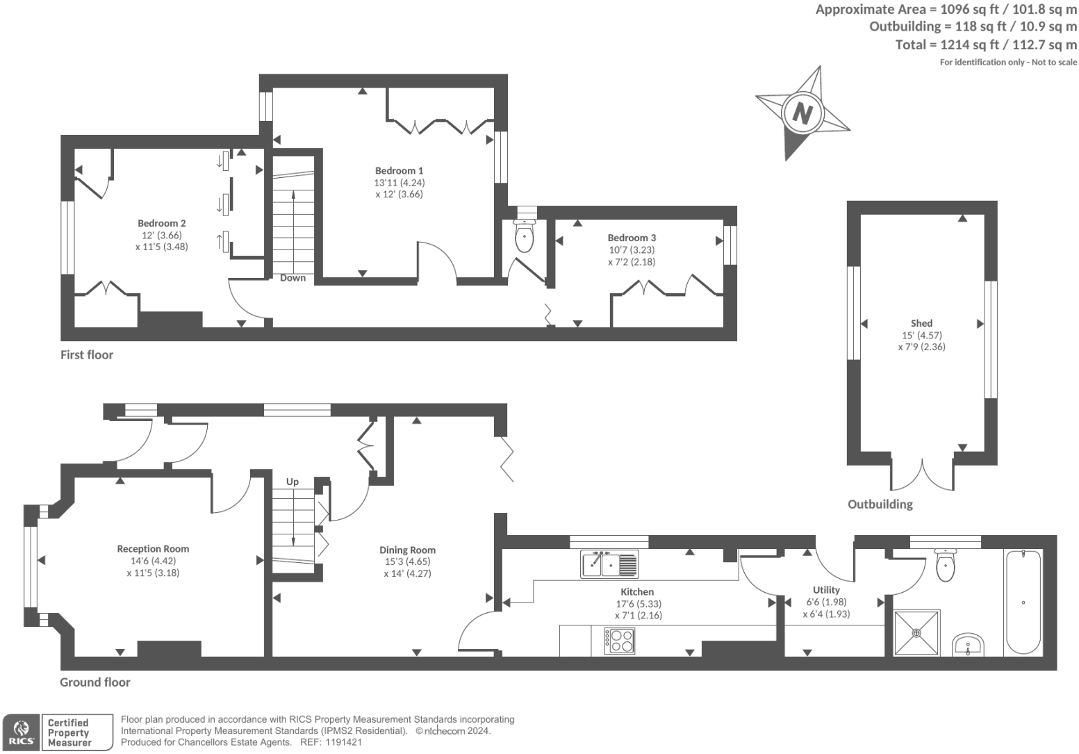
This 3-bedroom, 2-bathroom semi-detached house in Maidenhead’s Furze Platt area presents a compelling proposition for families and commuters alike. Its proximity to highly-rated schools (Furze Platt Infant, Junior, and Senior Schools) is a significant advantage, making it highly desirable. Furze Platt train station offers convenient access to Maidenhead and further afield. The town centre is also within easy reach. While the property appears well-maintained, the interior suggests a need for modernisation. The kitchen and bathrooms could particularly benefit from upgrading to enhance its appeal and market value. The garden provides some outdoor space, although its size is modest. The asking price of £550,000 appears reasonable in the context of the local market, however, additional data on nearby property sq footage would help determine the exact value for money. Potential buyers should factor in potential renovation costs when considering this property.
Therefore, we give this property 6 / 10. *Disclaimer: This is our option and does constitute a recommendation or financial advice. Do your own research. *
- Price
- 7
- Condition
- 6
- Location
- 7
- Land
- 4
- Bedrooms
- 3
- Bathrooms
- 2
- Sqft (est)
- 1,214.00
The heatmap indicates the level of crime in the area. The color of the heatmap indicates the crime severity and recency.
Metrics Year-on-Year
- Average area value
- 208,333.00 £Decreased by 17.92 %
- Est sale value
- 466,176.00 £Increased by 51.78 %
- Average area rental value
- 806.00 £/moDecreased by 15.34 %
- Est letting value
- 1,214.00 £/mo
- Est rental Yield
- 4.64 %Increased by 3.11 %
- Crime Rate
- 4.00 %Unchanged by 0.00 %
Agent Activity
Chancellors created the listing.
Nearby Schools
| Name | Type | Ofsted | Distance |
|---|---|---|---|
| Furze Platt Infant School | Community School | Good | 0.44 KM |
| Furze Platt Junior School | Community School | Outstanding | 0.44 KM |
| Furze Platt Senior School | Academy Converter | Good | 0.59 KM |
| St Piran'S School | Other Independent School | 0.67 KM | |
| Claires Court Schools | Other Independent School | 1.05 KM |
Images
Nearby Streets
| Name | Average Price | Average Sqft | Distance |
|---|---|---|---|
| Furze Road | £ 0 | 0 | 0.00 KM |
| Kensal Green Road | £ 0 | 0 | 0.00 KM |
| Derwent Drive | £ 805,000 | 0 | 0.00 KM |
| Horsley Road | £ 0 | 0 | 0.00 KM |
| Archer Close | £ 1,250,000 | 0 | 0.00 KM |
Nearby Transport
| Name | NLC | TLC | Distance |
|---|---|---|---|
| Furze Platt | 3144 | FZP | 0.91 KM |
| Maidenhead | 3147 | MAI | 2.19 KM |
| Cookham | 3019 | COO | 3.22 KM |
| Marlow | 3021 | MLW | 5.40 KM |
| Bourne End | 3018 | BNE | 5.75 KM |
Nearby Listings
| Address | Price | Type | Score | Distance |
|---|---|---|---|---|
| Camden Road, Maidenhead, Berkshire, SL6 | £ 550,000 | BUY | 7 / 10 | 0.03 KM |
| Camden Road, Maidenhead | £ 625,000 | BUY | Unknown | 0.04 KM |
| Camden Road, Maidenhead | £ 475,000 | BUY | Unknown | 0.04 KM |
| Camden Road, Maidenhead | £ 675,000 | BUY | 7 / 10 | 0.04 KM |
| Camden Road, Maidenhead, SL6 | £ 800,000 | BUY | 7 / 10 | 0.05 KM |
Nearby Properties
| Address | Price | Distance |
|---|---|---|
| Nova | £ 645,000 | 0.04 KM |
| St Andrews | £ 405,000 | 0.04 KM |
| 17 Camden Road | £ 429,000 | 0.04 KM |
| 12 Camden Road | £ 358,000 | 0.04 KM |
| 14 Camden Road | £ 239,950 | 0.04 KM |