MO
Dudley Road, Folkestone, CT19
By Motis Estates
£ 260,000
Reviews
3 out of 5 stars
Motis Estates says ..
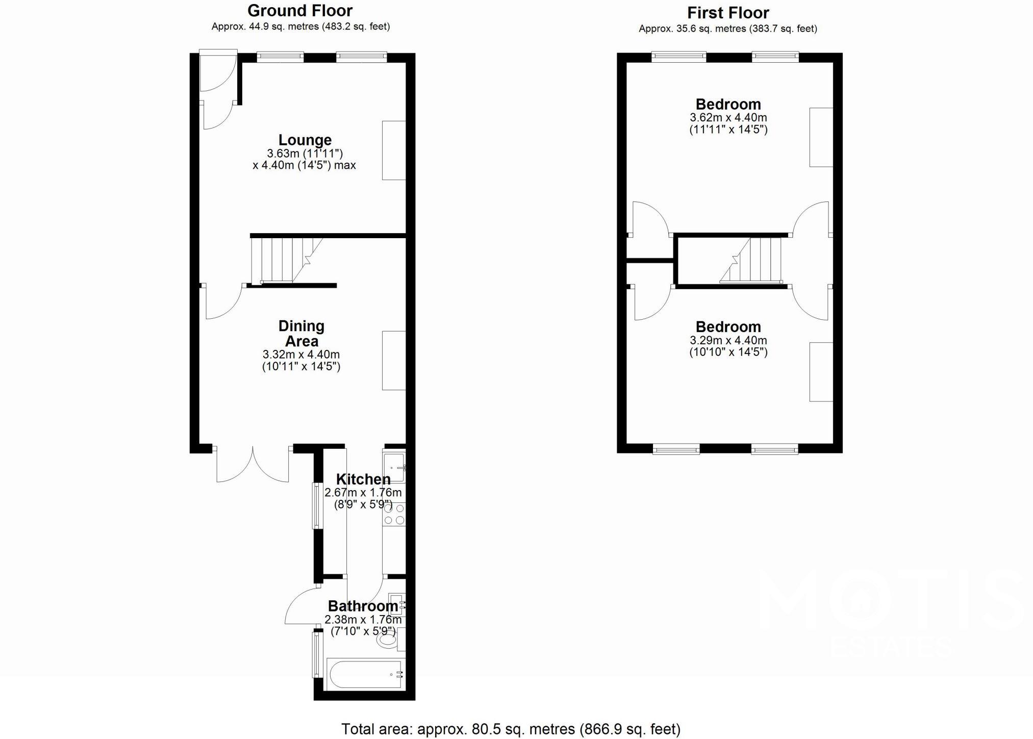
A characterful Two Bedroom Terraced Home in a popular Cul-De-Sac location, close to Folkestone's Harbour & East Cliff... Welcome to Dudley Road!
Property Oracle says ..
Therefore, we give this property 6 / 10. *Disclaimer: This is our option and does constitute a recommendation or financial advice. Do your own research. *
- Price
- 8
- Condition
- 6
- Location
- 7
- Land
- 3
- Bedrooms
- 2
- Bathrooms
- 1
- Sqft (est)
- 752.18
The heatmap indicates the level of crime in the area. The color of the heatmap indicates the crime severity and recency.
Metrics Year-on-Year
- Average area value
- 496,875.00 £Increased by 49.75 %
- Est sale value
- 368,568.20 £Increased by 47.15 %
- Average area rental value
- 750.00 £/moDecreased by 31.26 %
- Est letting value
- 0.00 £/moDecreased by 100.00 %
- Est rental Yield
- 1.81 %Decreased by 54.18 %
- Crime Rate
- 2.00 %Unchanged by 0.00 %
from 331,806.00 £
from 250,475.94 £
from 1,091.00 £/mo
from 752.18 £/mo
from 3.95 %
from 2.00 %
Agent Activity
Motis Estates created the listing.
Nearby Schools
| Name | Type | Ofsted | Distance |
|---|---|---|---|
| Folkestone, St Peter'S Church Of England Primary School | Voluntary Controlled School | Good | 0.35 KM |
| Folkestone St. Mary'S Church Of England Primary Academy | Academy Converter | Good | 0.62 KM |
| The Village Children'S Centre | Children's Centre | 0.71 KM | |
| Castle Hill Community Primary School | Community School | Good | 0.79 KM |
| Folkestone Early Years Centre | Children's Centre | 0.86 KM |
Images
Nearby Streets
| Name | Average Price | Average Sqft | Distance |
|---|---|---|---|
| Folly Road | £ 0 | 0 | 0.00 KM |
| Lawrence Court | £ 0 | 0 | 0.00 KM |
| Ash Tree Road | £ 200,000 | 0 | 0.00 KM |
| Queen Street | £ 0 | 0 | 0.00 KM |
| Bridge Street | £ 0 | 0 | 0.00 KM |
Nearby Transport
| Name | NLC | TLC | Distance |
|---|---|---|---|
| Folkestone Central | 5035 | FKC | 2.23 KM |
| Folkestone West | 5027 | FKW | 3.95 KM |
Nearby Listings
| Address | Price | Type | Score | Distance |
|---|---|---|---|---|
| Dudley Road, Folkestone, CT19 | £ 260,000 | BUY | 6 / 10 | 0.00 KM |
| Dudley Road, Folkestone, CT19 | £ 250,000 | BUY | 6 / 10 | 0.00 KM |
| Dudley Road, Folkestone | £ 120,000 | BUY | 5 / 10 | 0.02 KM |
| Dudley Road, Folkestone, CT19 | £ 260,000 | BUY | 6 / 10 | 0.06 KM |
| East Cliff, Folkestone | £ 340,000 | BUY | Unknown | 0.06 KM |
Nearby Properties
| Address | Price | Distance |
|---|---|---|
| 13 Dudley Road | £ 120,000 | 0.05 KM |
| 31 Dudley Road | £ 124,999 | 0.05 KM |
| 38 Dudley Road | £ 168,995 | 0.05 KM |
| 18 Dudley Road | £ 115,000 | 0.05 KM |
| 12 Dudley Road | £ 179,000 | 0.05 KM |