Tollington Park, London, UK, N4 3PW
By Kingsly Estate Agents
£ 280,000
Reviews
2 out of 5 stars
Kingsly Estate Agents says ..
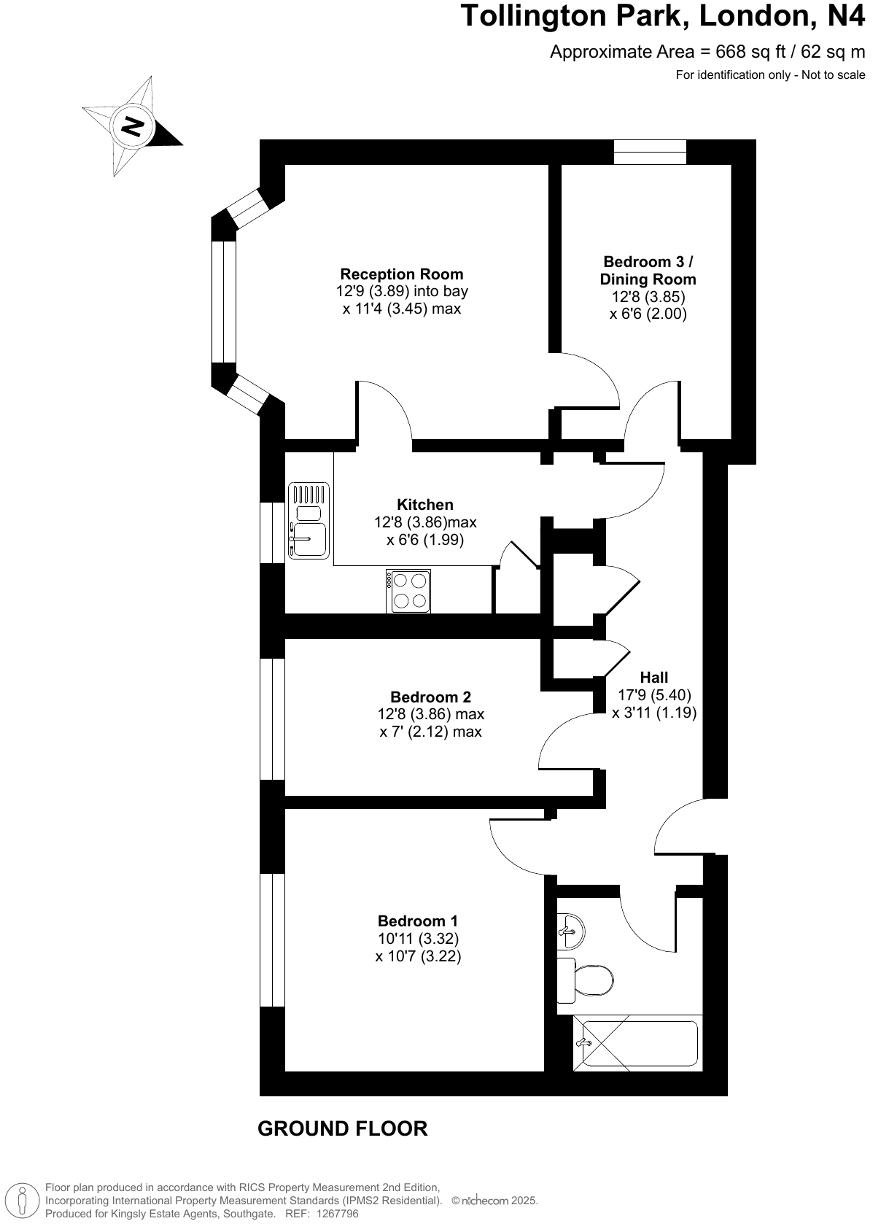
Offered to the market is this Two/three-bedroom ground floor flat, ideally situated in the heart of Stroud Green. This generously proportioned home features three good-sized bedrooms, a bri...
Property Oracle says ..
The property is a 2-bedroom flat located in Tollington Park, London, with a list price of £280,000. The flat is 830.35 sqft and situated on a 668 sqft plot. The property is in need of significant renovation. The images show extensive water damage to the ceilings and walls, indicating potential structural issues requiring professional assessment and repair. The kitchen and bathroom also appear outdated and in disrepair. This will add substantially to the overall cost of ownership. The location is positive, with several good schools within a short distance, including St Mark’s Cofe Primary School and Arts And Media School Islington, both rated ‘Good’ by Ofsted. Several transport links are also nearby, offering convenient access to central London. While the average price for properties in the area is significantly higher at £650,952, this figure is skewed by larger properties and those in better condition. Considering the property’s condition, the list price of £280,000 may seem reasonable, provided a buyer is factoring in the substantial renovation costs. The average price per sqft in the area is £756, and while this property is slightly below average in size, the significant renovation needed offsets any potential savings from the lower price. Based on the images, the property requires extensive renovation. The presence of water damage and general disrepair suggests a considerable amount of work is needed before the property is habitable. The property’s plot size is relatively small, but sufficient for a flat of this size. There is no garden visible in the provided images. In summary, this property presents a significant renovation project. The location is desirable, and the list price may be considered reasonable given the need for extensive work, but buyers should prepare for considerable additional expenditure.
Therefore, we give this property 4 / 10. *Disclaimer: This is our option and does constitute a recommendation or financial advice. Do your own research. *
- Price
- 5
- Condition
- 2
- Location
- 8
- Land
- 3
- Bedrooms
- 2
- Bathrooms
- 1
- Sqft (est)
- 830.35
- Lot (est)
- 668.00
The heatmap indicates the level of crime in the area. The color of the heatmap indicates the crime severity and recency.
Metrics Year-on-Year
- Average area value
- 770,833.00 £Increased by 10.52 %
- Est sale value
- 940,786.55 £Increased by 19.14 %
- Average area rental value
- 2,248.00 £/moDecreased by 5.39 %
- Est letting value
- 2,491.05 £/moUnchanged by 0.00 %
- Est rental Yield
- 3.50 %Decreased by 14.43 %
- Crime Rate
- 4.00 %Unchanged by 0.00 %
Agent Activity
Kingsly Estate Agents created the listing.
Nearby Schools
| Name | Type | Ofsted | Distance |
|---|---|---|---|
| St Mark'S Cofe Primary School | Voluntary Aided School | Good | 0.32 KM |
| Arts And Media School Islington | Foundation School | Good | 0.40 KM |
| Christ The King Catholic Primary School | Voluntary Aided School | Good | 0.41 KM |
| Hornsey Road Childrens Centre | Children's Centre | 0.43 KM | |
| Montem Primary School | Community School | Good | 0.49 KM |
Images
Nearby Streets
| Name | Average Price | Average Sqft | Distance |
|---|---|---|---|
| Pine Grove | £ 450,000 | 0 | 0.00 KM |
| Nightingale Court | £ 415,000 | 0 | 0.00 KM |
| Tollington Mews | £ 0 | 0 | 0.00 KM |
| Franchise Place | £ 0 | 0 | 0.00 KM |
| Axminster Road | £ 0 | 0 | 0.00 KM |
Nearby Transport
| Name | NLC | TLC | Distance |
|---|---|---|---|
| Crouch Hill | 7406 | CRH | 0.80 KM |
| Upper Holloway | 1524 | UHL | 1.27 KM |
| Finsbury Park | 6119 | FPK | 1.30 KM |
| Drayton Park | 6000 | DYP | 1.88 KM |
| Harringay | 6012 | HGY | 2.04 KM |
Nearby Listings
| Address | Price | Type | Score | Distance |
|---|---|---|---|---|
| Tollington Park, London, UK, N4 3PW | £ 280,000 | BUY | 4 / 10 | 0.00 KM |
| Tollington Park, Nightingale Court, N4 | £ 385,000 | BUY | 6 / 10 | 0.02 KM |
| Nightingale Court, Finsbury Park | £ 370,000 | BUY | 5 / 10 | 0.05 KM |
| Tollington Park, London | £ 500,000 | BUY | Unknown | 0.07 KM |
| Birnam Road, Finsbury Park, London, N4 | £ 450,000 | BUY | 5 / 10 | 0.08 KM |
Nearby Properties
| Address | Price | Distance |
|---|---|---|
| 8c Tollington Park | £ 468,000 | 0.04 KM |
| 30a Tollington Park | £ 300,000 | 0.10 KM |
| 16b Tollington Park | £ 514,000 | 0.10 KM |
| 38 Tollington Park | £ 1,355,000 | 0.10 KM |
| 16d Tollington Park | £ 401,000 | 0.10 KM |