Allen & Harris says ..
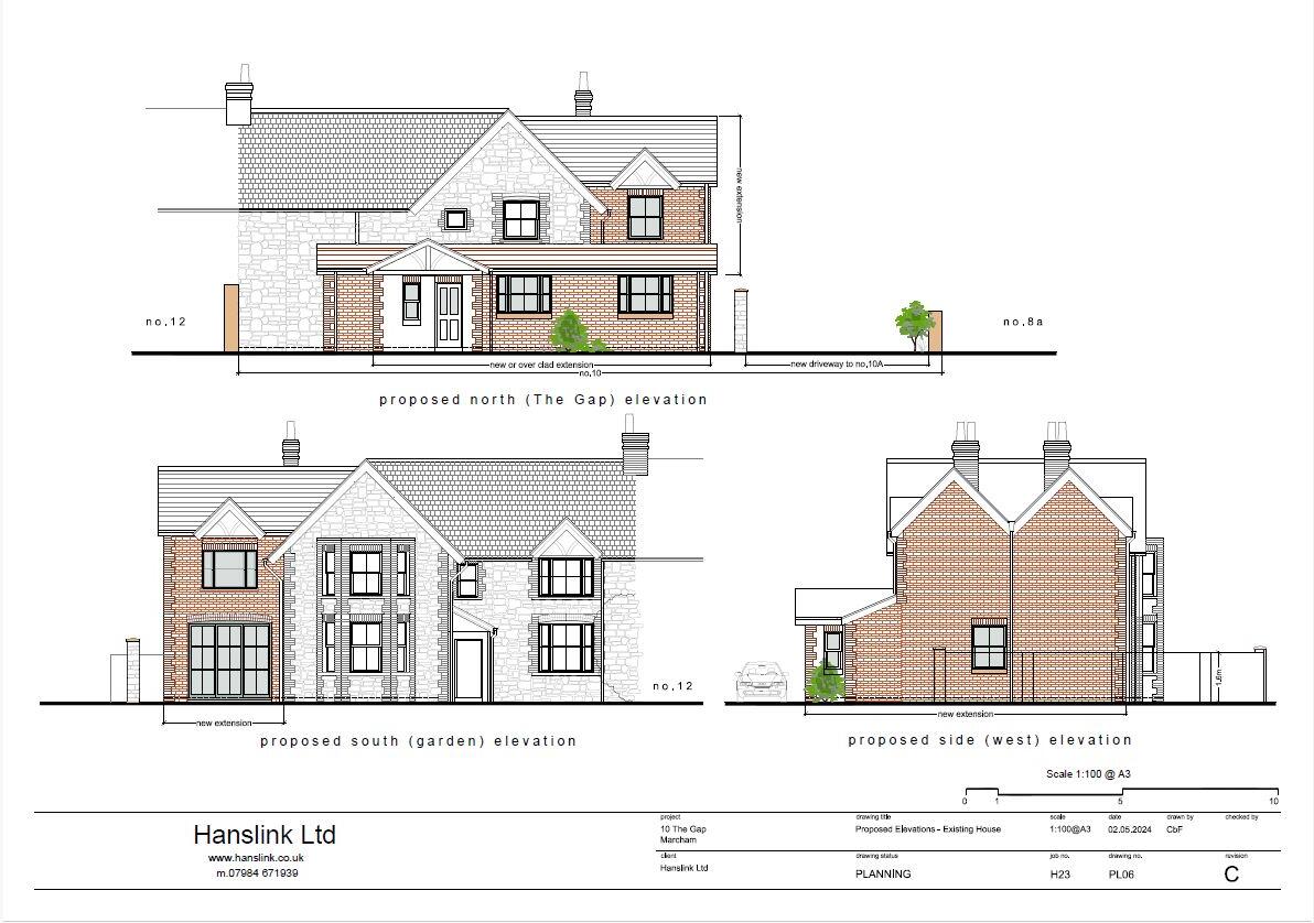
Opportunity to acquire, via Modern Method of Auction, this cottage with planning permission for demolition in part of a Semi-detached cottage and extend the same to provide a 3 bed 2 bath cottage with either one or two reception rooms.
Property Oracle says ..
The property is located in Marcham, Oxfordshire, a village in the Vale of White Horse district. Marcham benefits from a good primary school, Marcham Church of England Primary School, rated ‘Good’ by Ofsted, within a short distance. Other schools are located slightly further afield, but still within reasonable commuting distance. The village itself appears relatively quiet and residential based on the provided information. The lack of nearby transportation details makes it difficult to fully assess the location score without further information regarding bus routes or proximity to larger towns with train stations. The property’s location within a village setting may appeal to some buyers, but could be a drawback for others depending on their transportation needs and preferences.
The property is in need of significant renovation. The images show considerable wear and tear, dated interiors, and potential damp issues. The wallpaper is peeling, carpets are worn, and there is visible damage to walls and ceilings. The exterior also shows signs of neglect, with overgrown vegetation and debris visible in the garden area. A complete refurbishment would be required to bring the property up to a modern standard.
The property has a large plot of land, significantly larger than the average for the area. This is a considerable asset, offering potential for expansion or landscaping. The size of the plot adds to the overall value proposition, despite the need for renovation.
The list price of £440,000 is higher than the average house price in the area (£266,559). However, the average house size is smaller (1,006 sqft compared to 1,235 sqft). Considering the property’s condition, needing significant renovation, the price per sqft is likely higher than average. While the large plot of land adds value, the extensive renovation required significantly impacts the overall value for money. The nearby listings show a wide range of prices, with some significantly higher than the list price, indicating potential for higher value if renovated. However, the current state of the property significantly detracts from its market value. A thorough cost analysis of the necessary renovations is needed to accurately assess the property’s true value.
Therefore, we give this property 5 / 10. *Disclaimer: This is our option and does constitute a recommendation or financial advice. Do your own research. *
- Price
- 4
- Condition
- 3
- Location
- 6
- Land
- 8
- Bedrooms
- 3
- Bathrooms
- 1
- Sqft (est)
- 1,235.00
The heatmap indicates the level of crime in the area. The color of the heatmap indicates the crime severity and recency.
Metrics Year-on-Year
- Average area value
- 260,500.00 £Increased by 6.21 %
- Est sale value
- 316,160.00 £Increased by 6.22 %
- Average area rental value
- 1,100.00 £/moIncreased by 0.92 %
- Est letting value
- 1,235.00 £/moUnchanged by 0.00 %
- Est rental Yield
- 5.07 %Decreased by 4.88 %
- Crime Rate
- 43.00 %Unchanged by 0.00 %
Agent Activity
Allen & Harris created the listing.
Nearby Schools
| Name | Type | Ofsted | Distance |
|---|---|---|---|
| Marcham Church Of England (Voluntary Controlled) Primary School | Voluntary Controlled School | Good | 0.42 KM |
| Cothill House | Other Independent School | 2.98 KM | |
| Drayton Community Primary School | Community School | Good | 3.99 KM |
| Dry Sandford Primary School | Community School | Good | 4.37 KM |
| Larkmead School | Academy Converter | Good | 4.79 KM |
Images
Nearby Streets
| Name | Average Price | Average Sqft | Distance |
|---|---|---|---|
| The Paddocks | £ 0 | 0 | 0.00 KM |
| The Green | £ 1,000,000 | 0 | 0.00 KM |
| Kings Avenue | £ 0 | 0 | 0.00 KM |
| All Saints Close | £ 0 | 0 | 0.00 KM |
| Plantation Avenue | £ 0 | 0 | 0.00 KM |
Nearby Listings
| Address | Price | Type | Score | Distance |
|---|---|---|---|---|
| The Gap, Marcham, OX13 | £ 285,000 | BUY | 5 / 10 | 0.04 KM |
| The Gap, Marcham, OX13 | £ 525,000 | BUY | 6 / 10 | 0.05 KM |
| Tower Close, Marcham, OX13 | £ 350,000 | BUY | Unknown | 0.07 KM |
| Fettiplace Road, Marcham, OX13 | £ 435,000 | BUY | 6 / 10 | 0.13 KM |
| North Street, Abingdon, OX13 | £ 400,000 | BUY | 6 / 10 | 0.17 KM |
Nearby Properties
| Address | Price | Distance |
|---|---|---|
| 13 The Gap | £ 315,050 | 0.00 KM |
| 7 The Gap | £ 357,500 | 0.00 KM |
| 1 The Gap | £ 325,000 | 0.00 KM |
| 9 The Gap | £ 325,000 | 0.00 KM |
| 28 The Gap | £ 615,000 | 0.00 KM |