Stratfield Road, Basingstoke, Hampshire, RG21
By Bridges Estate Agents
£ 425,000
Reviews
3 out of 5 stars
Bridges Estate Agents says ..
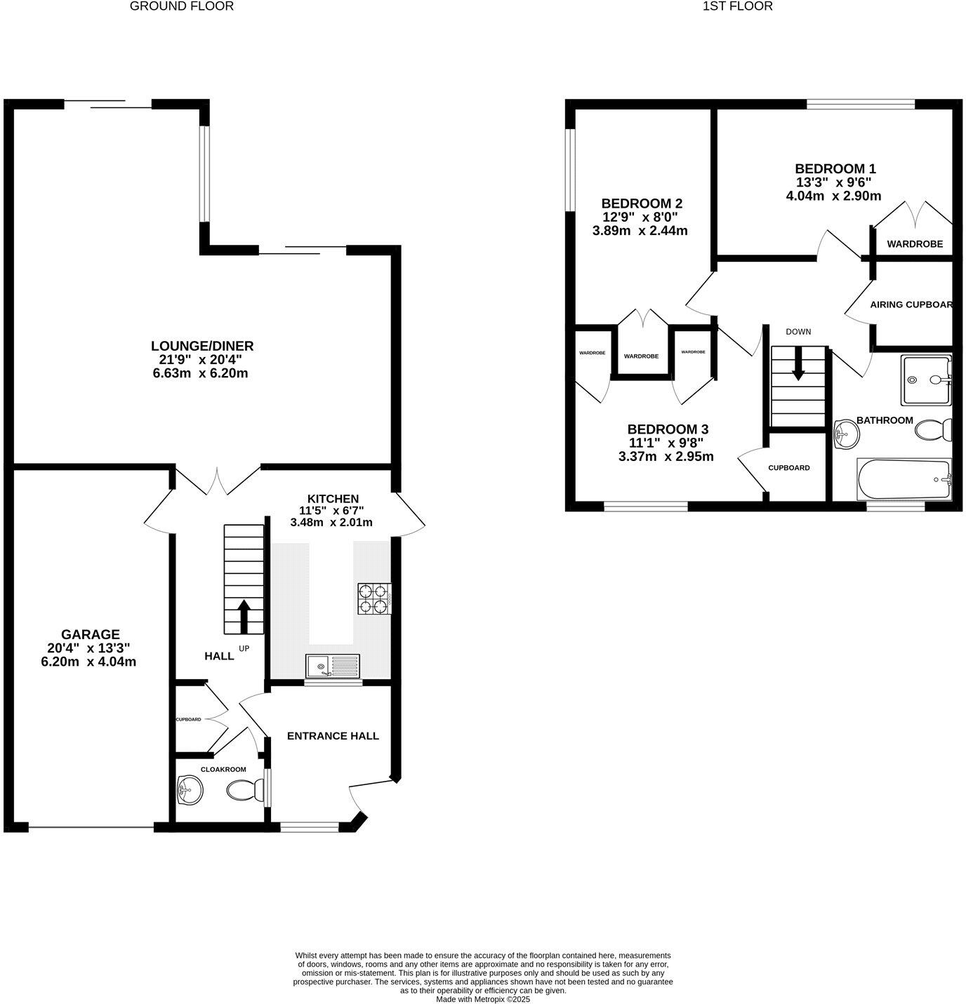
This attractive three double bedroom semi-detached home offers spacious and versatile living, featuring an extended L shaped lounge/diner perfect for modern family life. Additional benefits include a downstairs cloakroom, a garage providing convenient storage or parking, and the added advantage o...
Property Oracle says ..
This is a 3-bedroom semi-detached house located on Stratfield Road in Basingstoke. The property offers 1,122.89 sqft of living space and includes front and back gardens. While the property is situated in a convenient location with access to schools and transportation, the interior and exterior are in need of renovation. The price is slightly above the average for the area, reflecting the property’s size and potential for improvement.
Therefore, we give this property 6 / 10. *Disclaimer: This is our option and does constitute a recommendation or financial advice. Do your own research. *
- Price
- 6
- Condition
- 5
- Location
- 7
- Land
- 7
- Bedrooms
- 3
- Bathrooms
- 2
- Sqft (est)
- 1,122.89
The heatmap indicates the level of crime in the area. The color of the heatmap indicates the crime severity and recency.
Metrics Year-on-Year
- Average area value
- 306,071.00 £Decreased by 10.61 %
- Est sale value
- 412,100.63 £Increased by 25.26 %
- Average area rental value
- 1,246.00 £/moDecreased by 2.58 %
- Est letting value
- 1,122.89 £/moUnchanged by 0.00 %
- Est rental Yield
- 4.89 %Increased by 9.15 %
- Crime Rate
- 5.00 %Unchanged by 0.00 %
Agent Activity
Bridges Estate Agents created the listing.
Nearby Schools
| Name | Type | Ofsted | Distance |
|---|---|---|---|
| Dove House School | Academy Special Converter | Outstanding | 0.44 KM |
| The Vyne Community School | Community School | Good | 0.53 KM |
| Maple Ridge School | Community Special School | Good | 0.53 KM |
| St Bede'S Catholic Primary School | Voluntary Aided School | Good | 0.65 KM |
| Merton Infant School | Community School | Good | 0.70 KM |
Images
Nearby Streets
| Name | Average Price | Average Sqft | Distance |
|---|---|---|---|
| Abbey Court | £ 0 | 0 | 0.00 KM |
| Wordsworth Close | £ 0 | 0 | 0.00 KM |
| Pear Tree Way | £ 0 | 0 | 0.00 KM |
| Walnut Way | £ 0 | 0 | 0.00 KM |
| Darcy Close | £ 400,000 | 0 | 0.00 KM |
Nearby Transport
| Name | NLC | TLC | Distance |
|---|---|---|---|
| Basingstoke | 5520 | BSK | 1.14 KM |
| Bramley (Hampshire) | 5500 | BMY | 6.48 KM |
Nearby Listings
| Address | Price | Type | Score | Distance |
|---|---|---|---|---|
| Stratfield Road, Basingstoke, Hampshire, RG21 | £ 425,000 | BUY | 6 / 10 | 0.00 KM |
| Stratfield Road, Basingstoke | £ 425,000 | BUY | 6 / 10 | 0.04 KM |
| Hailstone Road, Basingstoke, RG21 | £ 350,000 | BUY | 6 / 10 | 0.13 KM |
| Selby Walk, Basingstoke | £ 140,000 | BUY | 6 / 10 | 0.15 KM |
| Lansley Road, Basingstoke | £ 410,000 | BUY | 6 / 10 | 0.15 KM |
Nearby Properties
| Address | Price | Distance |
|---|---|---|
| 165 Stratfield Road | £ 245,000 | 0.06 KM |
| 153 Stratfield Road | £ 210,000 | 0.06 KM |
| 149 Stratfield Road | £ 237,000 | 0.06 KM |
| 155 Stratfield Road | £ 205,000 | 0.06 KM |
| 163 Stratfield Road | £ 220,000 | 0.06 KM |