Chancellors says ..
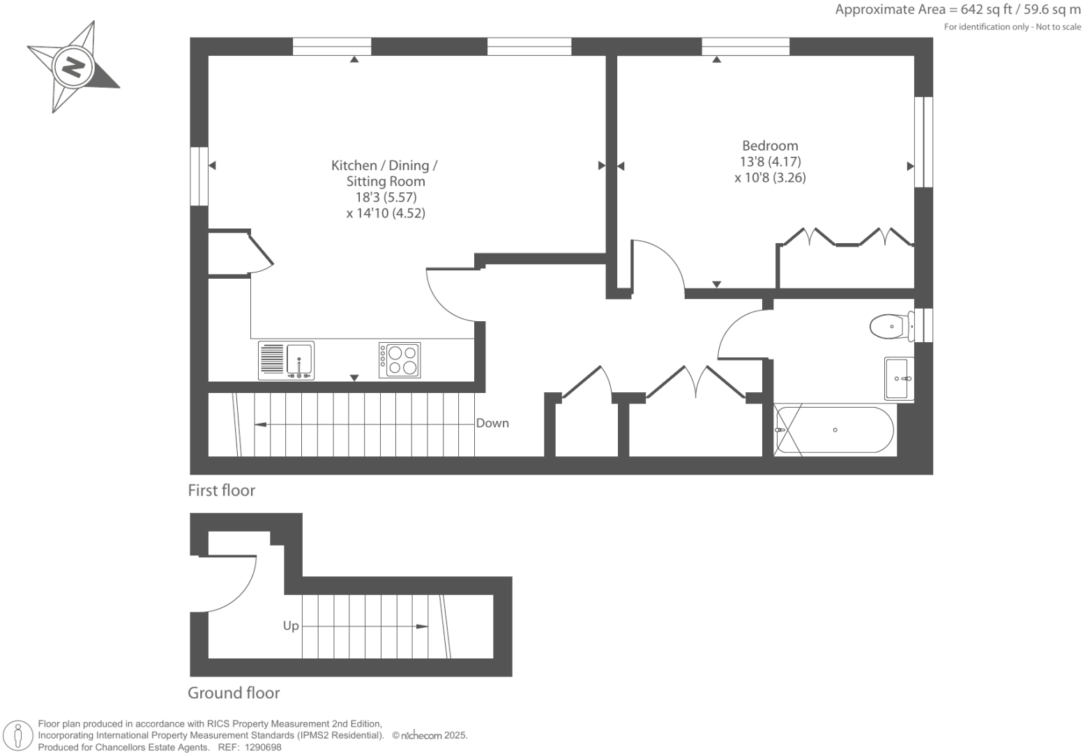
Conveniently located within a mile to transport links to Oxford, this modern apartment which still has a valid NHBC features an open-plan living area and integrated kitchen, a double bedroom, a utility cupboard, plenty of built-in storage and off-street parking.
Property Oracle says ..
This property is a modern one bedroom flat located in Abingdon, Oxfordshire. The property is in excellent condition and benefits from a modern kitchen and bathroom. The location is good, with easy access to local amenities and transport links. The price seems reasonable given the current market conditions and the property’s condition. However, the relatively small plot size of 642 sqft may be a drawback for some buyers.
Therefore, we give this property 7 / 10. *Disclaimer: This is our option and does constitute a recommendation or financial advice. Do your own research. *
- Price
- 7
- Condition
- 10
- Location
- 8
- Land
- 3
- Bedrooms
- 1
- Bathrooms
- 1
- Sqft (est)
- 399.06
- Lot (est)
- 642.00
The heatmap indicates the level of crime in the area. The color of the heatmap indicates the crime severity and recency.
Metrics Year-on-Year
- Average area value
- 260,500.00 £Increased by 6.21 %
- Est sale value
- 102,159.36 £Increased by 6.22 %
- Average area rental value
- 1,100.00 £/moIncreased by 0.92 %
- Est letting value
- 399.06 £/moUnchanged by 0.00 %
- Est rental Yield
- 5.07 %Decreased by 4.88 %
- Crime Rate
- 7.00 %Unchanged by 0.00 %
Agent Activity
Chancellors created the listing.
Nearby Schools
| Name | Type | Ofsted | Distance |
|---|---|---|---|
| Abingdon And Witney College | Further Education | Good | 0.58 KM |
| Fitzharrys School | Academy Converter | 0.74 KM | |
| John Mason School | Academy Converter | Good | 0.93 KM |
| St Nicolas Church Of England Primary School, Abingdon | Voluntary Controlled School | Good | 1.07 KM |
| Dunmore Primary School | Community School | Good | 1.12 KM |
Images
Nearby Streets
| Name | Average Price | Average Sqft | Distance |
|---|---|---|---|
| Prosser Way | £ 0 | 0 | 0.00 KM |
| Brampton Close | £ 385,000 | 0 | 0.00 KM |
| The Spinney | £ 0 | 0 | 0.00 KM |
| Fitzharris Trading Estate | £ 0 | 0 | 0.00 KM |
| Robin Close | £ 0 | 0 | 0.00 KM |
Nearby Transport
| Name | NLC | TLC | Distance |
|---|---|---|---|
| Radley | 3118 | RAD | 5.47 KM |
| Culham | 3107 | CUM | 6.85 KM |
| Appleford | 3109 | APF | 7.30 KM |
| Oxford | 3115 | OXF | 7.94 KM |
| Didcot Parkway | 3030 | DID | 9.74 KM |
Nearby Listings
| Address | Price | Type | Score | Distance |
|---|---|---|---|---|
| Abingdon, Oxfordshire, OX14 | £ 270,000 | BUY | 7 / 10 | 0.00 KM |
| Morgan Gate, Abingdon, Oxfordshire, OX14 1ZE | £ 590,000 | BUY | 6 / 10 | 0.07 KM |
| Kings Gate, Morgan Vale, Abingdon | £ 440,000 | BUY | 8 / 10 | 0.07 KM |
| Kings Gate, Morgan Vale, Abingdon | £ 590,000 | BUY | 8 / 10 | 0.07 KM |
| Dunmore Road, Abingdon, OX14 | £ 250,000 | BUY | Unknown | 0.15 KM |
Nearby Properties
| Address | Price | Distance |
|---|---|---|
| 2 Dunmore Road | £ 350,000 | 0.14 KM |
| 12 Dunmore Road | £ 241,000 | 0.14 KM |
| 4 Dunmore Road | £ 168,000 | 0.14 KM |
| 14 Dunmore Road | £ 310,000 | 0.14 KM |
| 8 Dunmore Road | £ 246,000 | 0.14 KM |