Ocean says ..
A unique architect designed house in a most favoured location yards from the independent shops on North View.
Property Oracle says ..
The property is located in Westbury Park, Bristol, a highly desirable area known for its excellent schools and convenient access to local amenities. The proximity to Westbury Park School, rated ‘Outstanding’ by Ofsted, is a significant advantage for families. Furthermore, the area benefits from good transport links, with Clifton Down train station within a reasonable distance. This contributes to a high location score.
Based on the provided images, the property appears to be in excellent condition. The modern kitchen and bathroom are well-maintained and stylish. The overall aesthetic is contemporary and clean, suggesting minimal need for repairs or renovations. There is evidence of a recent refurbishment, which further supports this assessment.
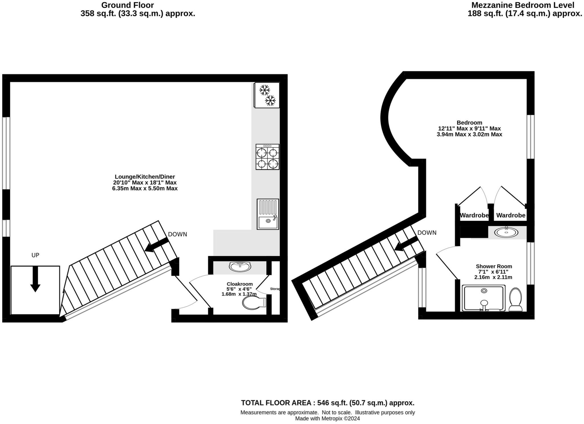
While the plot size is relatively small at 546 sqft, the property’s design maximizes space and functionality. The images do not show a traditional garden, but there is outdoor space. This limits the land score.
Considering the list price of £319,950, the average price per sqft in the area (£480.00), and the property’s condition and location, the price appears to be competitive, though slightly below average for the area. The smaller plot size compared to the average in the area may account for the lower price. However, the modern updates and excellent condition may justify the pricing. The relatively low average price per sqft of nearby properties also suggests that the list price is reasonable.
Therefore, we give this property 7 / 10. *Disclaimer: This is our option and does constitute a recommendation or financial advice. Do your own research. *
- Price
- 7
- Condition
- 9
- Location
- 9
- Land
- 4
- Bedrooms
- 1
- Bathrooms
- 1
- Sqft (est)
- 626.00
- Lot (est)
- 546.00
The heatmap indicates the level of crime in the area. The color of the heatmap indicates the crime severity and recency.
Metrics Year-on-Year
- Average area value
- 747,632.00 £Increased by 6.43 %
- Est sale value
- 439,452.00 £Increased by 45.64 %
- Average area rental value
- 1,826.00 £/moDecreased by 8.79 %
- Est letting value
- 626.00 £/moUnchanged by 0.00 %
- Est rental Yield
- 2.93 %Decreased by 14.33 %
- Crime Rate
- 11.00 %Unchanged by 0.00 %
Agent Activity
Ocean created the listing.
Nearby Schools
| Name | Type | Ofsted | Distance |
|---|---|---|---|
| Westbury Park School | Academy Converter | Outstanding | 0.45 KM |
| Torwood House School | Other Independent School | 0.73 KM | |
| St Ursula'S E-Act Academy | Academy Sponsor Led | Good | 0.77 KM |
| Badminton School | Other Independent School | 0.78 KM | |
| Bristol International College | Other Independent School | 0.84 KM |
Images
Nearby Streets
| Name | Average Price | Average Sqft | Distance |
|---|---|---|---|
| Ladysmith Road | £ 0 | 0 | 0.00 KM |
| Remenham Park | £ 788,750 | 1,209 | 0.00 KM |
| Carmarthen Road | £ 895,000 | 0 | 0.00 KM |
| Dundonald Road | £ 971,667 | 0 | 0.00 KM |
| Cardigan Road | £ 0 | 0 | 0.00 KM |
Nearby Transport
| Name | NLC | TLC | Distance |
|---|---|---|---|
| Clifton Down | 3202 | CFN | 1.75 KM |
| Redland | 3247 | RDA | 2.08 KM |
| Montpelier | 3203 | MTP | 3.06 KM |
| Sea Mills | 3254 | SML | 4.01 KM |
| Bedminster | 3245 | BMT | 4.95 KM |
Nearby Listings
| Address | Price | Type | Score | Distance |
|---|---|---|---|---|
| Downs Park East, Westbury Park | £ 319,950 | BUY | 7 / 10 | 0.00 KM |
| Downs Park East | Westbury Park | £ 1,150,000 | BUY | 6 / 10 | 0.02 KM |
| North View | Bristol | £ 375,000 | BUY | Unknown | 0.08 KM |
| Downs Park East | Westbury Park | £ 925,000 | BUY | Unknown | 0.09 KM |
| Downs Park East | Westbury Park | £ 1,100,000 | BUY | 7 / 10 | 0.09 KM |
Nearby Properties
| Address | Price | Distance |
|---|---|---|
| 3 Downs Park East | £ 880,000 | 0.02 KM |
| 17 Downs Park East | £ 1,175,000 | 0.02 KM |
| 23 Downs Park East | £ 1,512,500 | 0.02 KM |
| 15 Downs Park East | £ 885,000 | 0.02 KM |
| 26 Downs Park East | £ 965,000 | 0.03 KM |