PA
Sackville Road, Heaton, Newcastle upon Tyne, Tyne and Wear, NE6 5TB
By Pattinson Estate Agents
£ 185,000
Reviews
3 out of 5 stars
Pattinson Estate Agents says ..
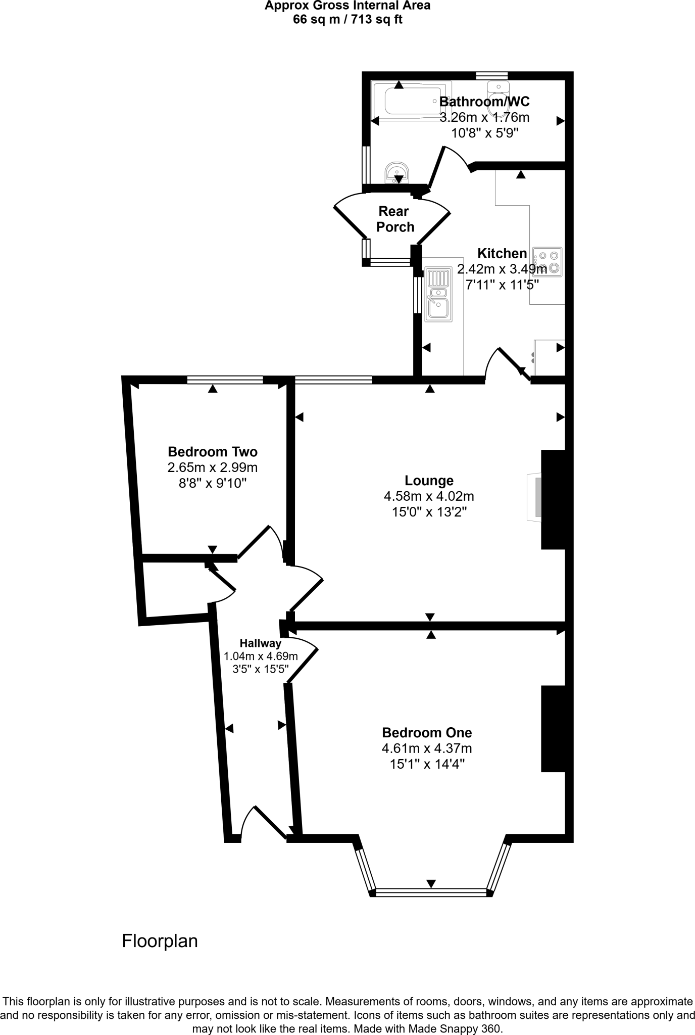
Appealing to a wide variety of buyers is this modern two bedroom ground floor flat situated on a corner plot which is ideally located close to all local amenities and Chillingham Road Metro station. The property briefly comprises; entrance hall, lounge, modern fitted kitchen with a good range ...
Property Oracle says ..
Therefore, we give this property 7 / 10. *Disclaimer: This is our option and does constitute a recommendation or financial advice. Do your own research. *
- Price
- 9
- Condition
- 7
- Location
- 8
- Land
- 7
- Bedrooms
- 2
- Bathrooms
- 1
- Sqft (est)
- 705.57
The heatmap indicates the level of crime in the area. The color of the heatmap indicates the crime severity and recency.
Metrics Year-on-Year
- Average area value
- 297,629.00 £Increased by 0.56 %
- Est sale value
- 301,278.39 £Increased by 45.24 %
- Average area rental value
- 1,009.00 £/moDecreased by 1.85 %
- Est letting value
- 705.57 £/moUnchanged by 0.00 %
- Est rental Yield
- 4.07 %Decreased by 2.40 %
- Crime Rate
- 2.00 %Unchanged by 0.00 %
from 295,957.00 £
from 207,437.58 £
from 1,028.00 £/mo
from 705.57 £/mo
from 4.17 %
from 2.00 %
Agent Activity
Pattinson Estate Agents created the listing.
Nearby Schools
| Name | Type | Ofsted | Distance |
|---|---|---|---|
| South Heaton | Children's Centre Linked Site | 0.29 KM | |
| Ravenswood Primary School | Foundation School | Good | 0.48 KM |
| Chillingham Road Primary School | Foundation School | Good | 0.82 KM |
| St Teresa'S Catholic Primary School, Heaton | Academy Converter | 1.14 KM | |
| Sure Start Woodlands Children'S Centre | Children's Centre Linked Site | 1.53 KM |
Images
Nearby Streets
| Name | Average Price | Average Sqft | Distance |
|---|---|---|---|
| East Cheap | £ 0 | 0 | 0.00 KM |
| Addycombe Terrace | £ 0 | 0 | 0.00 KM |
| Murray Close | £ 0 | 0 | 0.00 KM |
| A1058 | £ 0 | 0 | 0.00 KM |
| Fourth Avenue | £ 0 | 0 | 0.00 KM |
Nearby Transport
| Name | NLC | TLC | Distance |
|---|---|---|---|
| Manors | 7603 | MAS | 3.95 KM |
| Heworth | 7766 | HEW | 4.67 KM |
| Newcastle | 7728 | NCL | 5.41 KM |
| Dunston | 7744 | DOT | 8.79 KM |
Nearby Listings
| Address | Price | Type | Score | Distance |
|---|---|---|---|---|
| Sackville Road, Heaton, Newcastle upon Tyne, Tyne and Wear, NE6 5TB | £ 185,000 | BUY | 7 / 10 | 0.00 KM |
| Rokeby Terrace, Heaton, Newcastle Upon Tyne | £ 170,000 | BUY | 7 / 10 | 0.02 KM |
| Biddlestone Road, Heaton, Newcastle Upon Tyne | £ 325,000 | BUY | 7 / 10 | 0.03 KM |
| Rokeby Terrace, Newcastle upon Tyne, Tyne and Wear, NE6 | £ 155,000 | BUY | 5 / 10 | 0.04 KM |
| Biddlestone Road, Newcastle Upon Tyne | £ 280,000 | BUY | 5 / 10 | 0.05 KM |
Nearby Properties
| Address | Price | Distance |
|---|---|---|
| 128 Addycombe Terrace | £ 127,000 | 0.07 KM |
| 151 Addycombe Terrace | £ 264,000 | 0.07 KM |
| 175 Addycombe Terrace | £ 180,000 | 0.07 KM |
| 110 Addycombe Terrace | £ 34,000 | 0.07 KM |
| 115 Addycombe Terrace | £ 112,500 | 0.07 KM |