MO
Chapel Meadows, Tarleton, PR4
By Moving Works
£ 210,000
Reviews
3 out of 5 stars
Moving Works says ..
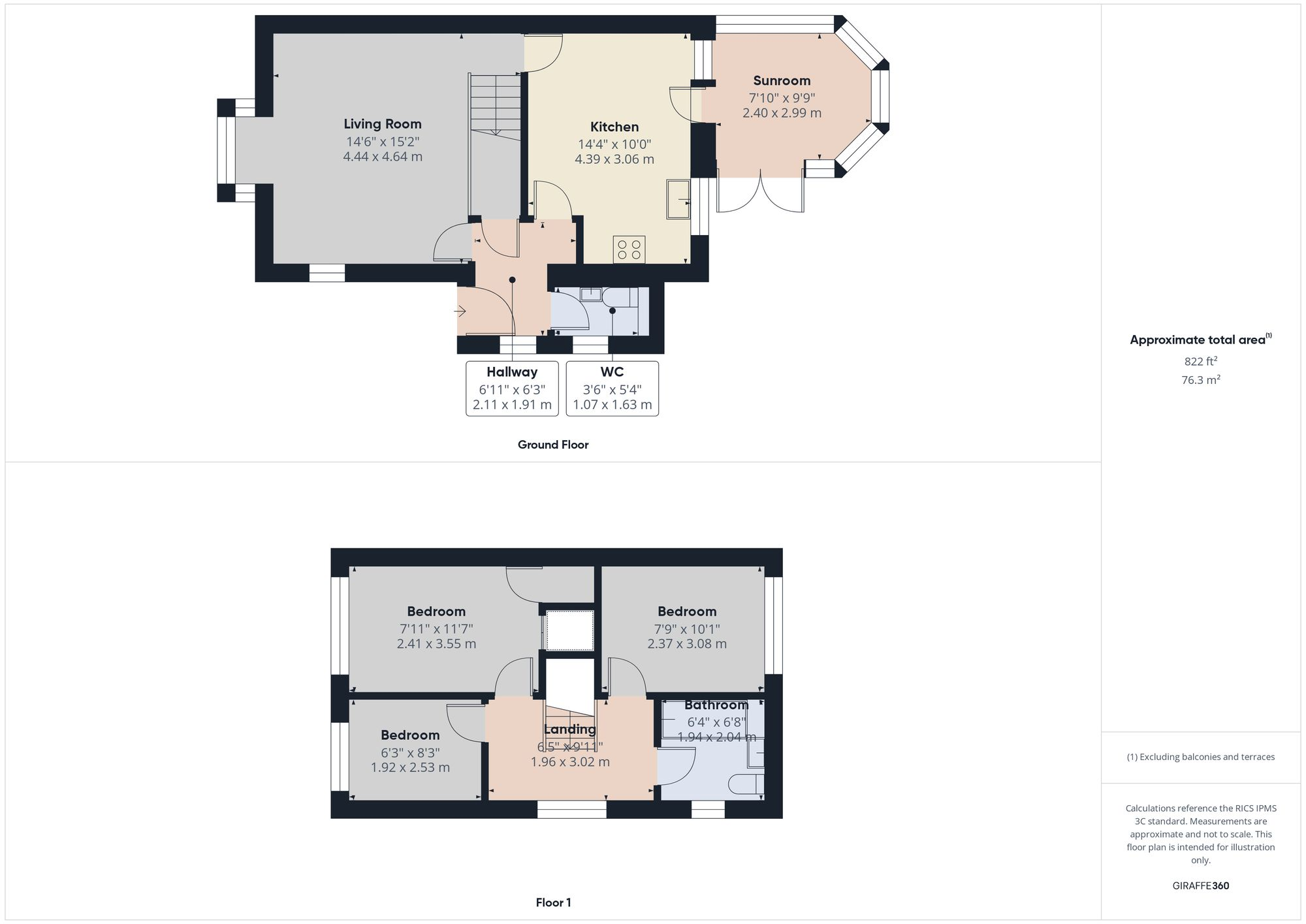
Charming 3-bed semi in Tarleton, perfect for first-time buyers, downsizers, or investors. Private parking, bright conservatory, generous garden. Ready to move in with potential for future adaptions.
Property Oracle says ..
Therefore, we give this property 7 / 10. *Disclaimer: This is our option and does constitute a recommendation or financial advice. Do your own research. *
- Price
- 8
- Condition
- 8
- Location
- 7
- Land
- 7
- Bedrooms
- 3
- Bathrooms
- 2
- Sqft (est)
- 821.29
The heatmap indicates the level of crime in the area. The color of the heatmap indicates the crime severity and recency.
Metrics Year-on-Year
- Average area value
- 382,533.00 £Increased by 3.77 %
- Est sale value
- 302,234.72 £Increased by 5.44 %
- Average area rental value
- 1,090.00 £/moDecreased by 17.67 %
- Est letting value
- 821.29 £/moUnchanged by 0.00 %
- Est rental Yield
- 3.42 %Decreased by 20.65 %
- Crime Rate
- 18.00 %Unchanged by 0.00 %
from 368,645.00 £
from 286,630.21 £
from 1,324.00 £/mo
from 821.29 £/mo
from 4.31 %
from 18.00 %
Agent Activity
Moving Works created the listing.
Nearby Schools
| Name | Type | Ofsted | Distance |
|---|---|---|---|
| Tarleton Holy Trinity Cofe Primary School | Voluntary Aided School | Good | 0.25 KM |
| Tarleton Academy | Academy Converter | Good | 1.10 KM |
| Tarleton Community Primary School | Foundation School | Good | 1.82 KM |
| Hoole St Michael Cofe Primary School | Voluntary Aided School | Good | 2.86 KM |
| Hesketh-With-Becconsall All Saints Cofe School | Voluntary Aided School | Good | 4.09 KM |
Images
Nearby Streets
| Name | Average Price | Average Sqft | Distance |
|---|---|---|---|
| Highfield Close | £ 165,000 | 0 | 0.00 KM |
| Liverpool Road | £ 0 | 0 | 0.00 KM |
| Priory Close | £ 580,000 | 0 | 0.00 KM |
| Hunter Avenue | £ 379,950 | 0 | 0.00 KM |
| Carriington Way | £ 278,750 | 0 | 0.00 KM |
Nearby Transport
| Name | NLC | TLC | Distance |
|---|---|---|---|
| Rufford | 2315 | RUF | 5.29 KM |
| Croston | 2313 | CSO | 6.07 KM |
| Burscough Bridge | 2279 | BCB | 7.87 KM |
| New Lane | 2358 | NLN | 8.12 KM |
| Burscough Junction | 2280 | BCJ | 8.72 KM |
Nearby Listings
| Address | Price | Type | Score | Distance |
|---|---|---|---|---|
| Chapel Meadows, Tarleton, PR4 | £ 210,000 | BUY | 7 / 10 | 0.00 KM |
| 7 Church View, Tarleton, PR4 6UW | £ 130,000 | BUY | 7 / 10 | 0.06 KM |
| Church View, Tarleton, PR4 6UW | £ 115,000 | BUY | 6 / 10 | 0.06 KM |
| Church View, Tarleton, Preston | £ 119,950 | BUY | Unknown | 0.06 KM |
| Church View, Tarleton, Preston | £ 130,000 | BUY | Unknown | 0.06 KM |
Nearby Properties
| Address | Price | Distance |
|---|---|---|
| 3 Chapel Meadows | £ 165,000 | 0.01 KM |
| 21 Chapel Meadows | £ 182,000 | 0.01 KM |
| 11a Chapel Meadows | £ 153,000 | 0.01 KM |
| 18 Chapel Meadows | £ 177,500 | 0.01 KM |
| 2 Chapel Meadows | £ 147,500 | 0.01 KM |