Kilndown Close,Allington ME16
By Hatch Batten Estates
£ 340,000
Reviews
3 out of 5 stars
Hatch Batten Estates says ..
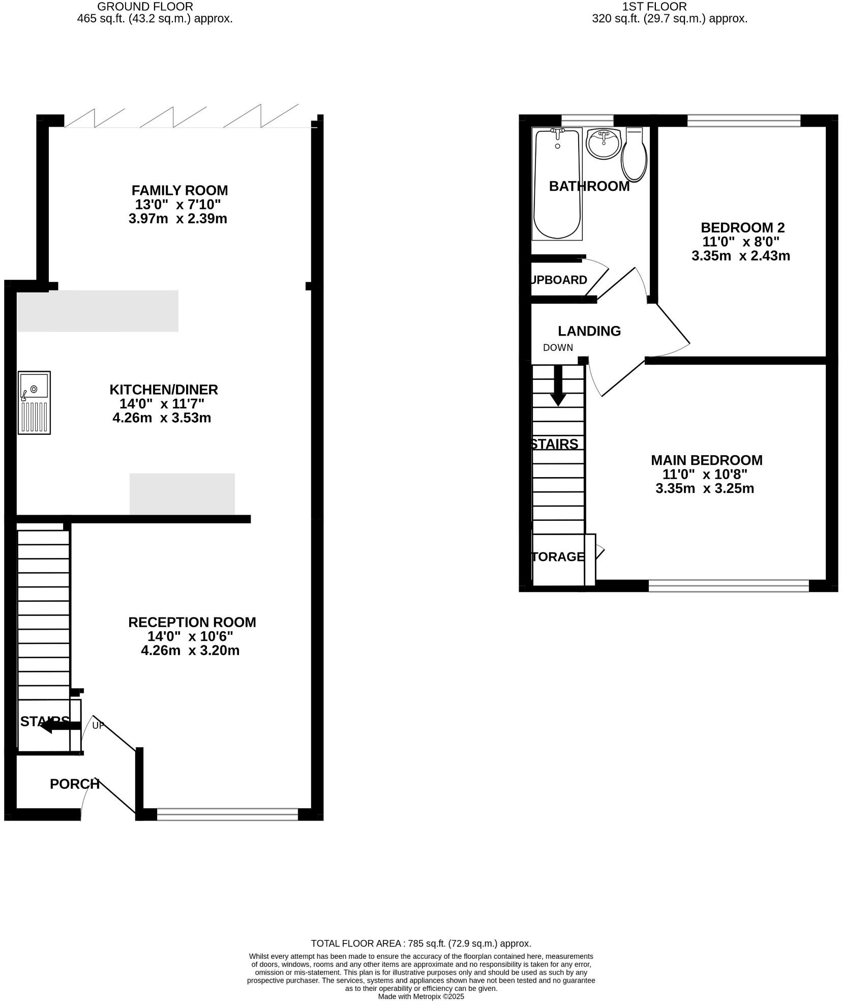
SUMMARY: Hatch Batten Estates are delighted to offer this spacious extended end of terrace house conveniently situated in close proximity to the Mid Kent Shopping Centre and the sought after Allington Primary School.
Property Oracle says ..
Therefore, we give this property 7 / 10. *Disclaimer: This is our option and does constitute a recommendation or financial advice. Do your own research. *
- Price
- 7
- Condition
- 8
- Location
- 7
- Land
- 7
- Bedrooms
- 2
- Bathrooms
- 1
The heatmap indicates the level of crime in the area. The color of the heatmap indicates the crime severity and recency.
Metrics Year-on-Year
- Average area value
- 444,370.00 £Decreased by 0.41 %
- Average area rental value
- 1,706.00 £/moIncreased by 21.86 %
- Est rental Yield
- 4.61 %Increased by 22.61 %
- Crime Rate
- 6.00 %Unchanged by 0.00 %
from 446,217.00 £
from 1,400.00 £/mo
from 3.76 %
from 6.00 %
Agent Activity
Hatch Batten Estates created the listing.
Nearby Schools
| Name | Type | Ofsted | Distance |
|---|---|---|---|
| Allington Primary School | Academy Converter | 0.38 KM | |
| Palace Wood Primary School | Community School | Good | 0.70 KM |
| The Maplesden Noakes School | Academy Converter | Good | 1.58 KM |
| Brunswick House Primary School | Community School | Good | 1.70 KM |
| St Francis' Catholic Primary School, Maidstone | Voluntary Aided School | Good | 1.72 KM |
Images
Nearby Streets
| Name | Average Price | Average Sqft | Distance |
|---|---|---|---|
| Beauelieu Walk | £ 0 | 0 | 0.00 KM |
| Newbury Avenue | £ 345,000 | 0 | 0.00 KM |
| Nursery Avenue | £ 583,333 | 0 | 0.00 KM |
| Woodpecker Close | £ 0 | 0 | 0.00 KM |
| Palmar Road | £ 550,000 | 0 | 0.00 KM |
Nearby Transport
| Name | NLC | TLC | Distance |
|---|---|---|---|
| Maidstone Barracks | 5237 | MDB | 2.14 KM |
| Barming | 5133 | BMG | 2.19 KM |
| Maidstone West | 5222 | MDW | 2.79 KM |
| Maidstone East | 5115 | MDE | 2.80 KM |
| Aylesford | 5162 | AYL | 3.83 KM |
Nearby Listings
| Address | Price | Type | Score | Distance |
|---|---|---|---|---|
| Kilndown Close,Allington ME16 | £ 340,000 | BUY | 7 / 10 | 0.00 KM |
| Castle Road, Allington, Maidstone ME16 | £ 450,000 | BUY | 7 / 10 | 0.10 KM |
| Hildenborough Crescent, Maidstone | £ 300,000 | BUY | 6 / 10 | 0.12 KM |
| Halstead Walk, Maidstone, ME16 | £ 300,000 | BUY | 7 / 10 | 0.13 KM |
| Halstead Walk, Maidstone | £ 300,000 | BUY | Unknown | 0.13 KM |
Nearby Properties
| Address | Price | Distance |
|---|---|---|
| 30 Kilndown Close | £ 184,000 | 0.00 KM |
| 1a Kilndown Close | £ 245,000 | 0.00 KM |
| 28 Kilndown Close | £ 165,000 | 0.00 KM |
| 46 Kilndown Close | £ 220,000 | 0.00 KM |
| 13 Kilndown Close | £ 410,000 | 0.00 KM |