Heritage Estates says ..
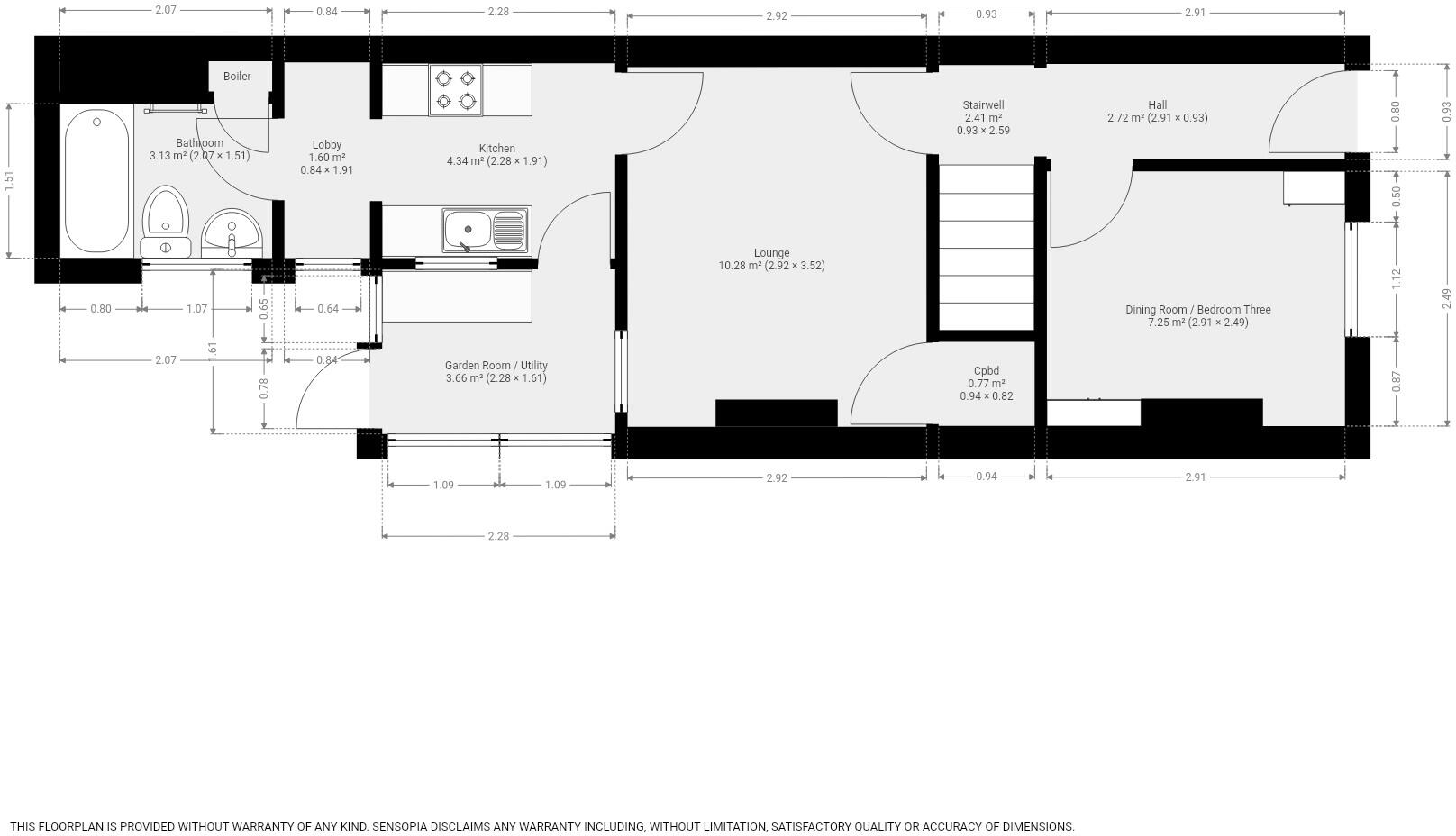
2 TO 3 BED PERIOD COTTAGE IN A QUIET POSITION FOR SALE VACANT FREEHOLD WITH NO CHAIN ROSHERVILLE PLAY PARK OPPOSITE Heritage Estates are delighted to offer for sale this period cottage tucked away at the end of Gordon Road allowing for a quiet position and a view over the park. (cont.)
Property Oracle says ..
This is a two-bedroom terraced house in Northfleet, Gravesham. The property appears to be in generally good condition, with a functional kitchen and bathroom, and freshly painted bedrooms. It features a rear garden, mostly paved. The location is convenient for families, with several schools nearby. While the property could benefit from some cosmetic upgrades, it presents a solid opportunity for first-time buyers or investors, especially given the reasonable price compared to the area average. The property retains some of its traditional features.
Therefore, we give this property 6 / 10. *Disclaimer: This is our option and does constitute a recommendation or financial advice. Do your own research. *
- Price
- 7
- Condition
- 7
- Location
- 7
- Land
- 6
- Bedrooms
- 2
- Bathrooms
- 1
- Sqft (est)
- 389.22
The heatmap indicates the level of crime in the area. The color of the heatmap indicates the crime severity and recency.
Metrics Year-on-Year
- Average area value
- 420,333.00 £Increased by 19.71 %
- Est sale value
- 420,357.60 £Increased by 143.24 %
- Average area rental value
- 1,320.00 £/moDecreased by 3.51 %
- Est letting value
- 1,167.66 £/moIncreased by 200.00 %
- Est rental Yield
- 3.77 %Decreased by 19.44 %
- Crime Rate
- 6.00 %Unchanged by 0.00 %
Agent Activity
Heritage Estates created the listing.
Nearby Schools
| Name | Type | Ofsted | Distance |
|---|---|---|---|
| Northfleet Nursery School | Local Authority Nursery School | Outstanding | 0.35 KM |
| Copperfield Academy | Academy Sponsor Led | Good | 0.45 KM |
| St Botolph'S Church Of England Primary School | Academy Converter | Good | 0.52 KM |
| Rosherville Church Of England Academy | Academy Sponsor Led | 0.59 KM | |
| Northfleet Technology College | Foundation School | Good | 0.91 KM |
Images
Nearby Streets
| Name | Average Price | Average Sqft | Distance |
|---|---|---|---|
| St Marks Road | £ 160,000 | 0 | 0.00 KM |
| Crete Hall Road | £ 339,739 | 0 | 0.00 KM |
| Watercress Way | £ 0 | 0 | 0.00 KM |
| Bus Lane | £ 0 | 0 | 0.00 KM |
| Geneive Road | £ 436,000 | 0 | 0.00 KM |
Nearby Transport
| Name | NLC | TLC | Distance |
|---|---|---|---|
| Gravesend | 5172 | GRV | 2.06 KM |
| Tilbury Town | 7462 | TIL | 2.59 KM |
| Northfleet | 5120 | NFL | 2.71 KM |
| Ebbsfleet International | 5566 | EBD | 3.02 KM |
| Swanscombe | 5156 | SWM | 4.38 KM |
Nearby Listings
| Address | Price | Type | Score | Distance |
|---|---|---|---|---|
| Gordon Road, Northfleet | £ 290,000 | BUY | 6 / 10 | 0.00 KM |
| Gordon Road, Northfleet, DA11 9DW | £ 260,000 | BUY | 5 / 10 | 0.06 KM |
| Rural Vale, Gravesend | £ 250,000 | BUY | 6 / 10 | 0.13 KM |
| Rural Vale, Northfleet, Kent, DA11 | £ 250,000 | BUY | 6 / 10 | 0.14 KM |
| 67 Rural Vale, Northfleet, Gravesend, DA11 9JL | £ 120,000 | BUY | 5 / 10 | 0.14 KM |
Nearby Properties
| Address | Price | Distance |
|---|---|---|
| 7 Mill Road | £ 240,000 | 0.05 KM |
| 1a Mill Road | £ 243,500 | 0.05 KM |
| 8 Mill Road | £ 220,000 | 0.05 KM |
| 6 Mill Road | £ 224,000 | 0.05 KM |
| 5 Mill Road | £ 141,500 | 0.05 KM |